Va propunem pentru achizitie fara comision o casa deosebita oferind toate cele necesare unei familii pretentioase (living foarte generos si sitlat, zona dedicata cu acces separat pentru bona/ menajera, dormitoare foarte spatioase, mansarda open space amenajata pentru jocuri/ petreceri, relaxare cu bucatarie proprie, baie si dormitor). Casa este localizata in Pipera, langa Bulevardul Pipera, aproape de intersectia cu Drumul Potcoavei.
Asa cum v-am obisnuit, toate ofertele Monga Imobiliare sunt fara comision din partea cumparatorului. Cauta Monga Imobiliare pentru a vizualiza portofoliul nostru variat de case si apartamente in Otopeni, Tunari, Balotesti, Corbeanca, Pipera si chiar nordul Bucurestiului.
Consideram ca punctele forte ale acestei proprietati sunt suprafetele generoase, compartimentarea bine gandita de actualii proprietari oferind toate functiile necesare pentru cei pretentiosi, dar si materialele de calitate alese de catre acestia. Cireasa de pe tort o reprezinta mansarda spatioasa amenajata ca spatiu de relaxare si petrecere.
Casa este construita in 2007 de catre actualii proprietari fara compromisuri in ceea ce priveste calitatea si renovata in mare parte in 2024.
Despre spatiu:
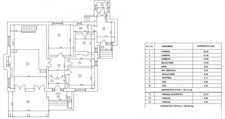
La parter accesul se face printr-un SAS urmat de un hol ce comunica cu baia, un birou, bucataria si zona de living dining de 58mp.
Bucataria comunnica mai departe printr-un hol cu o camera tehnica si un dormitor gandit pentru bona sau menajaera cu acces separat si baie proprie.
Zona de living - dining are doua niveluri de inaltime si comunica cu terasa partial inchisa si scara catre etaj.
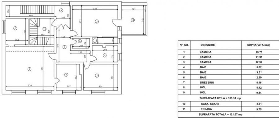
La etaj totul este gandit pentru un maxim de confort si functionalitate. Se ajunge intr-un hol care comunica catre o zona de dormitoare inchisa si scara catre mansarda (de asemenea, inchisa cu usa fata de hol). In acest fel se asigura nivelul maxim de liniste si intimitate chiar si atunci cand aveti invitati la mansarda.
In zona de dormitoare, se remarca dormitorul matrimonial de 30mp dotat cu dressing (spatios si ascuns) si baie proprie de 9 mp. Mai avem doua dormitoare si doua bai (una cu rol de toaleta si una cu rol de baie/dus). Unul din dormitoare este mai mare si dispune si de o terasa generoasa.
In cele din urma, mansarda este piesa de rezistenta a acestei case. Este foarte bine amenajata si pregatita ca spatiu de relaxare, avand bucatarie, baie si inca un dormitor.
Curtea este mai micuta, dar ofera spatiile necesare pentru relaxare (terasa mobilata, zona verde, spatiu de parcare pentru 4 masini)
Casa se vinde mobilata si utilata, cu exceptia mobilierului din Living-Dining. Acesta poate fi pastrat pentru un cost suplimentar.
Casa este construita si renovata de actualii proprietari cu elemente de design bine ales din gama Premium:
- parchet din lemn de stejar, ofera eleganta si durabilitate.
- ferestre generoase din lemn triplu stratificat cu geam rezistent la socuri
- piatra naturala Travertin
- semineu in living
- Jacuzzi in baia matrimoniala
- usi interioare din lemn triplu stratificat
- living si bucatarie mobilate modern in 2024 cu mobilier de calitate fabricat in Italia.
- termoizolatie exterioara de 10cm
- este conectata la toate utilitatile
- detine sistem de alarma si supraveghere
Daca esti foarte pretentios in ceea ce priveste spatiul de locuit, si iti doresti un loc ce nu lasa loc de compromis, te invitam sa vezi acest loc special si sa te convingi de cele enuntate mai sus.
Apeleaza cu incredere la Monga Imobiliare. Suntem alaturi de tine pana la finalizarea tranzactiei si te ajutam sa treci cu incredere si in cunostinta de cauza prin toti pasii necesari. Te putem ajuta in pregatirea documentelor, selectia notarului, obtinerea finantarii, si altele. Te asteptam sa ne contactezi.
Citește mai mult
Citește mai puțin
Aer condiționat
Centrală proprie
4 Parcări
Bine întreținut (Bună)
Sediul central - Timișoara
Bulevardul Victor Babeș nr. 2, 300230, Timișoara, România
Tel: +40.374.40.44.98 / Fax: +40.256.401.179
Email: suport@imobiliare.ro
Luni - Vineri 08:00 - 20:00
Punct de lucru - București: Iride Business Park, Bld. Dimitrie
Pompeiu 9-9A, Clădirea B2B,
020335, Sector 2, București, România
CONTACT
Sediul central - Timișoara
Bulevardul Victor Babeș nr. 2, 300230, Timișoara, România
Tel: +40.374.40.44.98 / Fax: +40.256.401.179
Email: suport@imobiliare.ro
Luni - Vineri 08:00 - 20:00
Punct de lucru - București: Iride Business Park, Bld. Dimitrie
Pompeiu 9-9A, Clădirea B2B,
020335, Sector 2, București, România
Sună acum și cere detalii sau programează o vizionare.
Cere detalii prin email
*
*
*
*
Stații autobuz
Gradinițe
Școli
Supermarket
Parcări
Parcuri
Terenuri sport
Spital
Restaurant
Cafenea
Bancă
Pipera Drumul Bisericii
aprox.
710 m
Echilibria 1
aprox.
395 m
Gradinita Zece
aprox.
958 m
Kindergarden
aprox.
1153 m
Echilibria 1
aprox.
1644 m
Scoala Nr.3 Voluntari
aprox.
757 m
Scoala Internationala Olga Gudynn
aprox.
850 m
Mark Twain
aprox.
858 m
Scoala Discovery
aprox.
923 m
British School of Bucharest
aprox.
1092 m
Gradinita Happy Univers
aprox.
1232 m
Happy Children Academy
aprox.
1710 m
Mark Twain International School
aprox.
1813 m
Carrefour Market Pipera
aprox.
157 m
Mega Image Pipera-Tunari
aprox.
533 m
Billa
aprox.
620 m
Mega Image Pipera
aprox.
1150 m
Lidl Pipera
aprox.
1589 m
Tia Supermarket Non-Stop
aprox.
1731 m
Pipera Plaza
aprox.
1815 m
Kaufland
aprox.
1856 m
Mega Image Pipera Liziera
aprox.
1903 m
Parcare
aprox.
1316 m
Parcare
aprox.
1320 m
Parcare
aprox.
1584 m
Parcare
aprox.
1610 m
Parcare
aprox.
1743 m
Parcare
aprox.
1825 m
Private Skatepark (en)
aprox.
597 m
Pipera
aprox.
809 m
Parcul de Interes public Pipera- oras VOLUNTARI
aprox.
812 m
residential kids park
aprox.
1445 m
Loc de joaca
aprox.
1464 m
spatiu verde
aprox.
1798 m
Teren sportiv
aprox.
928 m
Teren sportiv
aprox.
1046 m
Bio Medica Pipera
aprox.
272 m
BIO-MEDICA International S.A-Voluntari(cartierul Pipera) (en)
aprox.
273 m
EUROCLINIC Pipera
aprox.
1938 m
Zona Pensiunii Pipera(b-dul Pipera)
aprox.
245 m
Bodega Vraja Lacului
aprox.
731 m
Amvrosia Restaurant Grecesc
aprox.
811 m
Shanghai Garden (en)
aprox.
1211 m
Restaurant Tecadra
aprox.
1296 m
La Varu' din Pipera
aprox.
1491 m
cubic center
aprox.
1643 m
McDonald's
aprox.
1760 m
Santier In lucru. Restaurant MCDonald's
aprox.
1789 m
Q's Inn
aprox.
1884 m
Q's inn
aprox.
1966 m
Doncafe Brasserie
aprox.
1027 m
UniCredit Bank - Ag. Pipera
aprox.
272 m
Unicredit Tiriac Bank (en)
aprox.
282 m
Bancpost (en)
aprox.
355 m
BRD (en)
aprox.
368 m
BRD - Ag. Pipera-Tunari
aprox.
373 m
Banca Transilvania - Ag. Pipera
aprox.
579 m
Banca Transilvania (en)
aprox.
579 m
PIRAEUS BANK - sucursala Voluntari (en)
aprox.
1544 m
Înainte să pleci...
Ești sigur că ai văzut și aceste proprietăți?
790.000 €
Județul Ilfov, Voluntari
6 camere
275 mp
535 mp teren
1.340.000 €
Județul Ilfov, Voluntari
19 camere
629 mp
503 mp teren
699.000 €
București, Pipera
7 camere
370 mp
525 mp teren
700.000 €
Județul Ilfov, Voluntari
5 camere
207 mp
434 mp teren
780.000 €
Județul Ilfov, Voluntari
11 camere
580 mp
534 mp teren
699.000 €
București, Pipera
8 camere
370 mp
525 mp teren
Creează alertă
Salvează căutarea ca să primești pe email ultimele anunțuri publicate
Case individuale cu 4+ camere de vânzare în Voluntari, Județul Ilfov
Cere detalii prin email
*
*
*
*
Detaliile tale de contact vor fi partajate cu Monga
Preț total3.590.972 RON (704.277 €)
Costuri cu achiziția26.911 RON
Preț de achiziție3.564.061 RON
Costuri cu achiziția26.911 RON
Comision agenție Întreabă agenţia
Onorariu notarial21.565 RON
Taxă înscriere OCPI5.346 RON
Preț de achiziție3.564.061 RON
Preț locuință3.564.061 RON
TVA 0%Inclus în prețul cerut
Cost total570.948 RON (111.976 €)
Avans (15%)534.609 RON
Cost achitat în prima lună5.346 RON
Costuri cu achiziția30.993 RON
Cost achitat în prima lună5.346 RON
Comision analiză dosar
400 RON - 900 RON
Taxă evaluare imobil(până la)
900 RON
Rata lunară (variabilă)15.876 RON
Asigurare anuală imobil3.564 RON
Arhivă electronică102 RON
Poliță PAD130 RON
Asigurare de viață/lună Costul este variabil. În funcție de banca aleasă, procentul variază între 0.0259% și 0.035% din soldul creditului.
Costuri cu achiziția30.993 RON
Comision agenție Întreabă agenţia
Onorariu notarial21.565 RON
Taxă întabulare OCPI5.346 RON
Autentificare contract credit4.082 RON
Preț de achiziție3.564.061 RON
Preț locuință3.564.061 RON
TVA 0%Inclus în prețul cerut
Preț de achiziție3.564.061 RON
Preț locuință3.564.061 RON
TVA 0%
Inclus în prețul cerut
Avans minim2.957.304 RON
Credit pe 30 de ani606.757 RON
Cost achitat în prima lună
Taxa evaluare imobil(până la)
900 RON
Rata lunară (variabilă)4.263 RON
Depozit colateral12.789 RON
Comision de garantare FNGCIMM297 RON
Asigurare anuală imobil3.564 RON
Poliță PAD130 RON
Tarif arhivă electronică102 RON
Costuri adiționale3.704 RON + taxe notariale
Asigurare viață și complexă (opțională)Costul este variabil. În funcție de banca aleasă, procentul variază între 0.0259% și 0.035% din soldul creditului
Onorariu notarialconform tarif notarial
Taxă întabulare OCPI3.704 RON
i
Toate valorile de mai sus sunt estimative și nu reprezintă în mod obligatoriu costurile exacte pe care le veți primi de la companiile/instituțiile prin care veți încheia tranzacția.