REV2004789 Vila 4 Camere cu Teren 200 mp Voluntari de Vanzare

229.000 €

Voluntari, Județul Ilfov

Nr. cam.:
4
Sup. utilă:
124 mp
Sup. teren:
200 mp
Tip prop.:
Individuală
  • • Locație aproximativă
  • • Vizionare prin apel video

Descriere casă

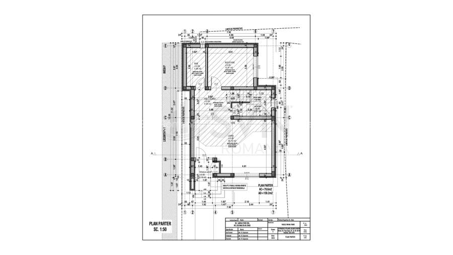
SVN Romania propune spre vanza o Vila P+1, cu amprenta la sol 79 mp, suprafata utila de 124 mp si totala de 159 mp, situata in orasul Voluntari, la cateva minute de Bucuresti (capatul tramvaiului 21). Terenul are o suprafata de 200 mp, este imprejmuit cu gard de beton, porti acces auto si poarta acces pietonal. Vila este compusa din: - La parter: living cu suprafata de 26 mp, bucatarie inchisa in suprafata utila de 13 mp, o baie de 5 mp si casa scarilor - La etaj: 3 dormitoare, baie, balcon si spatiu de depozitare Proprietatea este momentan la stadiul de finisaje interioare si se vinde finalizata la alb, lasand posibilitatea cumparatorului sa-si aleaga gresia, faianta, parchetul si culoare peretilor. Constructia este realizata din ziduri de BCA, pe fundatie de beton, stalpi de sustinere, centuri, placa intre parter si etaj, iar acoperisul cu tabla tip tigla. Izolatia este realizata din polistiren de 10 cm, peste care s-a aplicat tencuiala decorativa. Incalzirea se realizeaza cu ajutorul unei centrale pe gaze, prin pardoseala, la parter si pe calorifere, la etaj. In apropriere se regaseste o retea de transport in comun, unitati comerciale, de invatamant, bancare, de cult si de agrement. Pentru mai multe detalii, va rog sa ma contactati.
Citește mai mult Citește mai puțin
Grădină Calorifere Centrală proprie Încălzire prin pardoseală 1 Parcare

Detalii casă

ID anunț: X658013OS Copiat! 275364785 Copiat!
Actualizat în: 27 Martie 2026
Suprafață construită: 159 mp
Suprafață desfășurată: 159 mp
Nr. bucătării: 1
Nr. băi: 2
Nr. balcoane / Terase / Logii: 1
Nr. terase: 1
An construcție: 2025 (Finalizată)
Structură rezistență: BCA
Tip imobil: Casă/Vilă
Regim înălțime: P+1E

Utilități

Destinație
Rezidențial Birouri Birouri
Izolații termice
Exterior
Ferestre cu geam termopan
PVC
Alte spații utile
WC Serviciu
Facilități imobil
Acoperiș
Utilități
Gaze Telefon internațional Apă Canalizare CATV Curent
Internet
Cablu Fibră optică Wireless Dial-up
Comision
Standard

Vicii:

Fără vicii.

Disponibilitate proprietate:

data_properties.property_availability.Disponibil din 10/11/2025.

Puncte de interes

Mijloace transport
bus-station
statia cocorilor
Stații autobuz aprox. 424 m
bus-station
Pantelimon Sud
Stații autobuz aprox. 740 m
train-station
p.o. Pantelimon Sud
Stații tren aprox. 754 m
tram-station
Capat Pasaj Colentina linia:21
Stații tramvai aprox. 1723 m
Școală
school
Școala generală nr.1
Școli aprox. 80 m
school
Scoala Generala Nr. 42
Școli aprox. 584 m
kindergarten
Primaria veche
Gradinițe aprox. 1192 m
kindergarten
Gradinita nr. 1 Voluntari
Gradinițe aprox. 1512 m
Recreere
sports-ground
Teren sportiv
Terenuri sport aprox. 418 m
park
Parc
Parcuri aprox. 439 m
supermarket
Dragonul Rosu 8
Supermarket aprox. 723 m
mall
Dragonul Rosu 2
Mall aprox. 735 m

Detalii despre preț și costuri

Costuri cu achiziția

Fără credit
10.768 RON
Credit ipotecar
12.853 RON
Noua casă
1.308 RON+ taxe notariale

i

Costuri adiționale mai puțin știute la achiziție: taxe notariale, comisioane etc.

Proprietăți similare

Casă individuală cu 5 camere în Central
239.000 € + TVA
Județul Ilfov, Voluntari
5 camere
143 mp
150 mp teren
Casă individuală cu 8 camere în Central
250.000 €
Județul Ilfov, Voluntari
8 camere
259 mp
300 mp teren
Casă individuală cu 4 camere în Central
250.000 € + TVA
Județul Ilfov, Voluntari
4 camere
106 mp
100 mp teren

Detalii de contact

SVN Romania | Residentialist | Victoriei

Constantin Nicolae Associated Advisor

SVN Romania | Residentialist | Victoriei
PRO

Abonează-te la newsletter să fii primul care primește cele mai noi recomandări de proprietăți și sfaturi de la experți.

CONTACT

Creează alertă

Salvează căutarea ca să primești pe email ultimele anunțuri publicate

Case individuale cu 4+ camere de vânzare în Voluntari, Județul Ilfov