5

Inchiriere complex 3 case duplex Domnesti - Teghes, P+S, locuri de parcare

5.900 € + TVA / lună

Domnești, Județul Ilfov

Nr. cam.:
12
Sup. utilă:
315 mp
Sup. teren:
1.600 mp
Tip prop.:
Duplex
  • • Comision 0%
  • • Locație exactă

Descriere casă

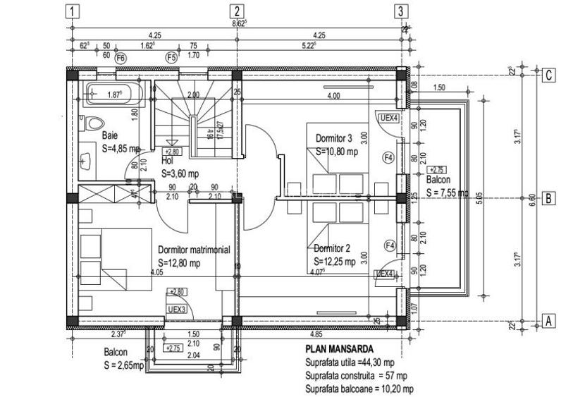
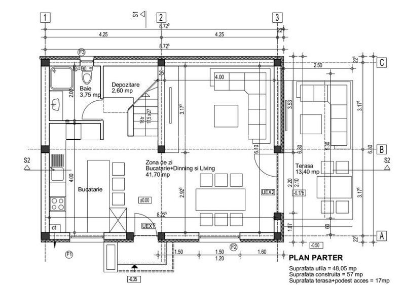
Pretabile pentru: 1.Cazare angajați / muncitori 2.Cămin pentru vârstnici 3.Cămin pentru persoane cu dizabilități 4.Centru de dezintoxicare/dezalcoolizare Detalii generale: - Număr case disponibile: 3 unități (regim de înălțime Parter /Parter + Subsol) - Suprafață utilă totală: aprox. 315 mp - Suprafață construită totală: aprox. 354 mp - 2 CASE au si DEMISOL, pretabil pentru depozitare - Curte comună spațioasă - Locuri de parcare: disponibile în dreptul fiecărei case Despre proprietate: Cele 3 unități fac parte dintr-un ansamblu rezidențial nou, într-o zonă aerisită, verde și liniștită – ideală pentru desfășurarea activităților sociale sau rezidențiale. Fiecare casă include: - 3–4 camere spațioase și luminoase - Terasă și acces la grădină - Compartimentare eficientă, potrivită pentru cazare sau activități de îngrijire - Finisaje moderne, cu vitraje mari pentru lumină naturală Avantaje suplimentare: - Zonă exclusiv de case - Locație liniștită, dar cu acces facil la București - Unități finalizate – disponibile imediat Se acceptă diverse tipuri de utilizare (rezidențial, social, medical) ? Locație: Teghes, județul Ilfov Acces facil din București: prin noul inel de centură, zonă Țegheș (Ilfov) Închiriere direct de la dezvoltator – fără comision
Citește mai mult Citește mai puțin
Acceptă animale de companie Nemobilat Curte comună Calorifere Centrală proprie 3 Parcări

Detalii casă

ID anunț: XE1G0100C Copiat! 965116 Copiat!
Actualizat în: 27 Aprilie 2026
Suprafață desfășurată: 354 mp
Nr. terase: 3
Suprafață terase: 51 mp
Front stradal: 12 m
Învelitoare acoperiș: Tabla
An construcție: 2022 (În construcție)
Structură rezistență: Beton
Regim înălțime: S+P
Perioadă închiriere: Termen lung

Utilități

Destinație
Rezidențial De vacanță
Pereți
Faianță Vopsea lavabilă
Podele
Gresie
Ușă intrare
Metal PVC
Uși interior
Panel
Izolații termice
Exterior
Ferestre cu geam termopan
PVC
Contorizare
Contor gaz
Alte spații utile
WC Serviciu
Facilități imobil
Acoperiș
Utilități
Curent Apă Fosa septică Centrală telefonică
Internet
Cablu Fibră optică
Amenajare străzi
Asfaltate Pietruite Mijloace de transport în comun Iluminat stradal
Comision
0%

Vicii:

Fara

Disponibilitate proprietate:

01.01.2023

Puncte de interes

Școală
school
Scoala Mare
Școli aprox. 1335 m
school
Scoala Mica
Școli aprox. 1366 m
Recreere
supermarket
Mega Image
Supermarket aprox. 1430 m

Proprietăți similare

Duplex cu 9 camere în Central
5.500 € / lună
Județul Ilfov, Voluntari
9 camere
450 mp
500 mp teren

Detalii de contact

ORLANDO RESIDENCE

ORLANDO RESIDENCE Administrator

ORLANDO RESIDENCE
PRO

Abonează-te la newsletter să fii primul care primește cele mai noi recomandări de proprietăți și sfaturi de la experți.

CONTACT

Creează alertă

Salvează căutarea ca să primești pe email ultimele anunțuri publicate

Duplexuri cu 4+ camere de închiriat în Domnești, Județul Ilfov