Vilă moderna cu 4 dormitoare, garaj, finisaje premium

5.000 € + TVA / lună

Iancu Nicolae, București

Nr. cam.:
6
Sup. utilă:
297,25 mp
Sup. teren:
445 mp
Tip prop.:
Duplex
  • • Locație aproximativă
  • • Vizionare prin apel video

Descriere casă

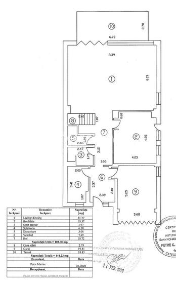
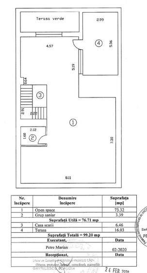
Situate in zona Pipera, in unul dintre cele mai mari si sigure complexe rezidentiale din zona, aceasta vila ofera profilul ideal al unei locuinte cosmopolite cu un design minimalist si modern cu finisaje de lux. A fost construita pe un teren de 445mp si are o suprafata utila 297mp/ 368mp(suprafata totala). La parter este zona de zi cu loc de luat masa, bucatarie inchisa, baie si spalatorie. La etajul 1 sunt 3 dormitoare fiecare cu baie proprie si dressing pentru dormitorul matrimonial. La mansarda este un spatiu deschis generos, dormitor, baie si o terasa de 16mp. Aceasta vila este aproape de Baneasa Shopping Center, se afla în apropierea facilitatilor de sanatate si wellness (piscina si spa), beneficiaza de locuri de joaca pentru copii si se invecineaza cu unitati de invatamant cum ar fi: Scoala Americana, British School, Scoala Franceza si invatamantul prescolar.
Citește mai mult Citește mai puțin
Nemobilat Grădină Curte Curte comună Aer condiționat Calorifere Centrală proprie Încălzire prin pardoseală 2 Parcări 1 Garaj Renovat

Detalii casă

ID anunț: X1UR1110I Copiat! 275490438 Copiat!
Actualizat în: 28 Aprilie 2026
Suprafață construită: 151 mp
Suprafață desfășurată: 368 mp
Nr. bucătării: 1
Nr. băi: 5
Nr. balcoane / Terase / Logii: 1
Nr. terase: 2
Front stradal: 10.0 m
Învelitoare acoperiș: Țiglă
An construcție: 2018 (Finalizată)
Structură rezistență: Beton
Tip imobil: Casă/Vilă
Regim înălțime: P+1E+M
Perioadă închiriere: Termen lung

Utilități

Jaluzele
Verticale
Pereți
Faianță Vopsea lavabilă
Podele
Gresie Parchet
Rulouri/Obloane
Aluminiu
Ușă intrare
Metal
Uși interior
Lemn
Izolații termice
Exterior
Ferestre cu geam termopan
Aluminiu
Contorizare
Apometre Contor căldură Contor gaz
Bucătărie
Mobilată Utilată
Electrocasnice
Aragaz Frigider Hotă Mașină de spălat Mașină spălat vase
Diverse
Scară interioară Sistem de alarmă Telecomandă poartă garaj
Alte spații utile
Dressing WC Serviciu
Facilități imobil
Acoperiș
Utilități
Curent Apă Canalizare CATV Gaze
Internet
Cablu
Servicii imobil
Pază
Amenajare străzi
Iluminat stradal Mijloace de transport în comun Asfaltate
Comision
standard

Vecinătăți:

German School

British School

Disponibilitate proprietate:

Imediat

Puncte de interes

Mijloace transport
bus-station
Jolie Ville Baneasa
Stații autobuz aprox. 882 m
bus-station
Statia Restaurant Baneasa, linia 148,301
Stații autobuz aprox. 922 m
bus-station
Statia Padurea Baneasa, linia 148, 301
Stații autobuz aprox. 1398 m
airport
Aeroportul Internațional Băneasa (Aurel Vlaicu) - LRBS (BBU)
Aeroporturi aprox. 1596 m
Școală
school
Mark Twain International School
Școli aprox. 1191 m
school
Ferma Liceului Viaceslav Harnaj
Școli aprox. 1520 m
kindergarten
Scoala Gimnaziala Little London
Gradinițe aprox. 1741 m
school
Academia de Politie
Școli aprox. 1823 m
Recreere
park
Parc
Parcuri aprox. 427 m
supermarket
Mega Image Jolie Ville
Supermarket aprox. 939 m
mall
Baneasa Shopping Center
Mall aprox. 1645 m
sports-ground
Teren sportiv
Terenuri sport aprox. 1692 m

Proprietăți similare

Duplex cu 7 camere în Iancu Nicolae
5.000 € + TVA / lună
București, Iancu Nicolae
7 camere
330 mp
400 mp teren
Duplex cu 4 camere în Pipera
4.500 € + TVA / lună
București, Pipera
4 camere
170 mp
375 mp teren
Duplex cu 6 camere în Băneasa
4.500 € / lună
București, Băneasa
6 camere
258 mp
260 mp teren

Detalii de contact

GOLDENKEY

Violeta Anghel Department Manager

4.83(8 review-uri)

GOLDENKEY
PRO

Abonează-te la newsletter să fii primul care primește cele mai noi recomandări de proprietăți și sfaturi de la experți.

CONTACT

Creează alertă

Salvează căutarea ca să primești pe email ultimele anunțuri publicate

Duplexuri cu 4+ camere de închiriat în zona Iancu Nicolae, Sector 1