3

Duplex 120 mp, teren 416 mp, zona usor accesibil spre Cluj, 10km

177.000 € + TVA

Apahida, Județul Cluj

Nr. cam.:
4
Sup. utilă:
129 mp
Sup. teren:
413 mp
Tip prop.:
Duplex
  • • Locație aproximativă

Descriere casă

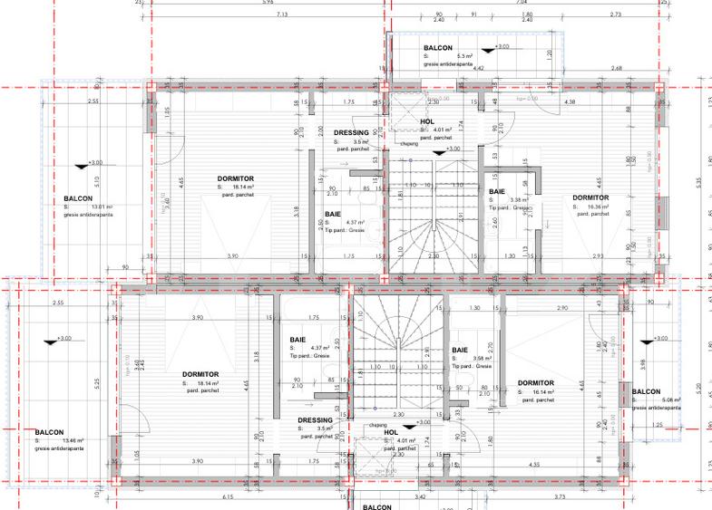
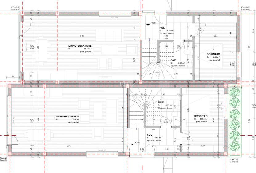
Descriere anunt: Blitz propune spre vanzare un duplex modern, cu suprafata utila de 120 mp, amplasat pe un teren de 416 mp, situat in zona foarte frumoasa langa Cluj , specific 10km. Acesta este ntr-un ansamblu rezidential nou, premium, ce beneficiaza de multiple accese catre Cluj-Napoca. Proprietatea este inteligent compartimentata astfel: Parter: living cu bucatarie open-space de 38 mp, dormitor, baie si hol. Etaj: dormitor matrimonial cu baie proprie, dressing si terasa, al doilea dormitor cu baie proprie si hol. Casa se preda la stadiul de semifinisat avansat, cu urmatoarele lucrari realizate: peretii gletuiti si vopsiti cu lavabil, izolatie exterioara cu vata bazaltica de 10 cm si tencuiala decorativa Sto, tamplarie PVC cu geam tripan Veka si glafuri din granit, acoperis izolat cu celuloza de 20 cm. O proprietate ideala pentru cei care cauta confort, spatiu si un cadru rezidential de calitate, aproape de oras, dar ferit de aglomeratie. Pentru mai multe detalii si programarea unei vizionari, nu ezitati sa ne contactati! Cod oferta / ID BLITZ: P152454
Citește mai mult Citește mai puțin
Nemobilat Încălzire prin pardoseală 2 Parcări 2 Parcări / Garaje / Parcări subterane Zonă rurală

Detalii casă

ID anunț: XFTI113J6 Copiat! 269641919 Copiat!
Actualizat în: 24 Februarie 2026
Nr. bucătării: 1
Nr. băi: 3
Nr. balcoane / Terase / Logii: 3
Front stradal: 10 m
An construcție: 2025 (La gri)
Structură rezistență: Cărămidă
Regim înălțime: P+1E

Utilități

Utilități
Curent Apă Canalizare Gaze
Comision
%

Disponibilitate proprietate:

imediat

Puncte de interes

Mijloace transport
bus-station
EVW Holding
Stații autobuz aprox. 1699 m
bus-station
Agro Transilvania
Stații autobuz aprox. 1725 m
bus-station
Halta Dezmir
Stații autobuz aprox. 1999 m
Școală
kindergarten
Gradinita
Gradinițe aprox. 918 m

Detalii despre preț și costuri

Costuri cu achiziția

Fără credit
10.252 RON
Credit ipotecar
12.273 RON
Noua casă
1.231 RON+ taxe notariale

i

Costuri adiționale mai puțin știute la achiziție: taxe notariale, comisioane etc.

Proprietăți recomandate

Detalii de contact

BLITZ

BLITZ ROMANIA

4.70(105 review-uri)

BLITZ
PRO

Abonează-te la newsletter să fii primul care primește cele mai noi recomandări de proprietăți și sfaturi de la experți.

CONTACT

Creează alertă

Salvează căutarea ca să primești pe email ultimele anunțuri publicate

Duplexuri cu 4+ camere de vânzare în Apahida, Județul Cluj