1

ANSAMBLU de 9 CASE insiruite zona POMPIERI!

185.000 €

Orașul Vechi, Baia Mare

Nr. cam.:
4
Sup. utilă:
160 mp
Sup. teren:
130 mp
Tip prop.:
Duplex
  • • Locație exactă

Descriere casă

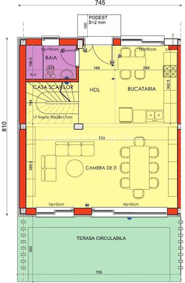
Agentia Imobilira PrimaCasa va ofera spre vanzare un ansamblu rezidential de 9 CASE INSIRUITE P+1+M situata la 600m de Centru Vechi Istoric, avand in apropiere : -Mijloace de transport in comun -Gradinita cu program prelungit nr. 8 -Scoala gimnaziala Octavian Goga -Zone comerciale (Penny Market, Kaufland, piata alimentara) -Restaurante; Fiecare parte are aprox. 198mp construiti si util aprox.160mp cu teren total de aprox.130mp inclus 2 locuri de parcare in fata casei. * Compartimentarea casa : Varianta 1: living, bucatarie, 3 dormitoare, 3 toalete, spatiu pentru hobby si terasa Varianta 2: living cu bucatarie open space, 4 dormitoare, 4 toalete, spatiu pentru hobby si terasa. Finisajele caselor : Casele se vand la stadiul de semifinisat pe interior, si finisat complet pe exterior (finisajele interioare se pot stabili de comun acord cu cumparatorul) Caramida de inalta calitate POROTHERM Termoizolatie Mansarda cu spuma poliuretanica celula deschisa Acoperis 2 VELUX/3 VELUX Centrala termica BOSCH, in toalete rame WC GROHE/GEBERIT Incalzire in pardoseala Fatada este placata cu caramida KLINKER, complet la parter si partial la etaj Termoizolatie exterioara cu polistiren AUSTROTHERM eps 10 cm Curtea va fi placata cu pavaj SEMMELROCK; Fiecare imobil dispune de terasa proprie in spatele casei, imprejmuita, amenajata si acoperita! Fiecare imobil dispune de 2 locuri de parcare in curtea interioara comuna *Accesul se face pe drumul comun, amenajat si dotat cu videointerfon, poarta automata, auto si pietonala! *Pentru achizitia prin credit bancar, va punem gratuit la dispozitie servicii de brokeraj, toate acestea pentru alegerea ofertei potrivite.
Citește mai mult Citește mai puțin
Calorifere Încălzire prin pardoseală 2 Parcări Bine întreținut (Bună)

Detalii casă

ID anunț: X5AP0106G Copiat! 256222259 Copiat!
Actualizat în: 20 Martie 2025
Suprafață construită: 198 mp
Suprafață desfășurată: 198 mp
Nr. bucătării: 1
Nr. băi: 3
Nr. terase: 1
Suprafață terase: 23 mp
Front stradal: 15 m
Învelitoare acoperiș: Țiglă
An construcție: 2025 (La gri)
Structură rezistență: Cărămidă
Regim înălțime: P+1E+M

Utilități

Destinație
Rezidențial
Pereți
Vopsea lavabilă
Izolații termice
Exterior
Ferestre cu geam termopan
PVC
Contorizare
Contor gaz
Utilități
Curent Apă Canalizare Gaze CATV Centrală telefonică
Amenajare străzi
Asfaltate Mijloace de transport în comun Iluminat stradal
Comision
1%

Certificat energetic:

Clasa energetică: B

Puncte de interes

Școală
school
Colegiul National Gheorghe Sincai
Școli aprox. 1349 m
school
Colegiul National Gheorghe Sincai
Școli aprox. 1395 m
school
Colegiul National Gheorghe Sincai
Școli aprox. 1409 m
school
Colegiul National Gheorghe Sincai
Școli aprox. 1441 m
Recreere
sports-ground
Teren sportiv
Terenuri sport aprox. 669 m
supermarket
Penny Market
Supermarket aprox. 936 m
cafe
Cafeneaua Noua
Cafenea aprox. 936 m
park
Parcul Tineretului
Parcuri aprox. 1372 m

Detalii despre preț și costuri

Costuri cu achiziția

Fără credit
18.675 RON
Credit ipotecar
20.573 RON
Noua casă
1.082 RON+ taxe notariale

i

Costuri adiționale mai puțin știute la achiziție: taxe notariale, comisioane etc.

Proprietăți recomandate

Detalii de contact

Abonează-te la newsletter să fii primul care primește cele mai noi recomandări de proprietăți și sfaturi de la experți.

CONTACT

Creează alertă

Salvează căutarea ca să primești pe email ultimele anunțuri publicate

Duplexuri cu 4+ camere de vânzare în zona Orașul Vechi, Baia Mare