Casa Individuala, Remetea Mare - Bucovat

138.899 €

Bucovăț (Remetea Mare), Județul Timiș

Nr. cam.:
3
Sup. utilă:
86 mp
Sup. teren:
290 mp
Tip prop.:
Duplex
  • • Locație aproximativă
  • • Vizionare prin apel video

Descriere casă

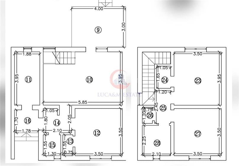
Va propunem spre vanzare o casa individuala, cu un design modern si compartimentare eficienta, situata in Bucovat – zona linistita, ideala pentru locuit. Compartimentare: - la parter: camera tehnica, hol, bucatarie, baie, living cu ieșire pe terasa; - la mansardă: 2 dormitoare, baie, dressing; Detalii constructie: Structura din beton armat Zidarie din caramida Constructie finalizata în 2024 Incalzire în pardoseala cu centrala proprie 2 locuri de parcare Utilitati disponibile: Curent electric Apa forata cu hidrofor Gaz Fosa septica ecologica cu drenaj Ideala pentru cupluri sau familii care isi doresc o locuinta eficienta, noua si confortabila, intr-un mediu linistit, cu acces rapid spre Timisoara. Contact: Pentru detalii suplimentare sau vizionari, sunati la numarul din anunt. Se vinde la pretul de 138 899 euro. Informatiile tehnice au caracter orientativ, acestea fiind preluate de la proprietar.
Citește mai mult Citește mai puțin
Aer condiționat Încălzire prin pardoseală 2 Parcări Zonă rurală

Detalii casă

ID anunț: XAOV110FL Copiat! 275457635 Copiat!
Actualizat în: 21 Aprilie 2026
Suprafață construită: 100 mp
Suprafață desfășurată: 100 mp
Nr. bucătării: 1
Nr. băi: 2
Nr. terase: 1
Nr. fronturi stradale: 1
Front stradal: 10 m
An construcție: 2024 (Finalizată)
Structură rezistență: Altele
Regim înălțime: P+1E+M

Utilități

Destinație
Rezidențial
Podele
Parchet Gresie
Uși interior
Lemn
Izolații termice
Exterior
Ferestre cu geam termopan
PVC
Contorizare
Apometre Contor gaz
Bucătărie
Utilată Mobilată
Diverse
Sistem de alarmă
Facilități imobil
Videointerfon
Utilități
Apă Curent Gaze Canalizare
Internet
Cablu Wireless
Amenajare străzi
Pietruite

Detalii despre preț și costuri

Costuri cu achiziția

Fără credit
Credit ipotecar
Noua casă

i

Costuri adiționale mai puțin știute la achiziție: taxe notariale, comisioane etc.

Insight premium disponibil după login

Proprietăți similare

Duplex cu 4 camere în Bucovăț (Remetea Mare)
135.000 €
Județul Timiș, Bucovăț (Remetea Mare)
4 camere
111 mp
280 mp teren
Duplex cu 4 camere în Bucovăț (Remetea Mare)
143.200 €
Județul Timiș, Bucovăț (Remetea Mare)
4 camere
118 mp
270 mp teren
Duplex cu 3 camere în Bucovăț (Remetea Mare)
134.999 €
Județul Timiș, Bucovăț (Remetea Mare)
3 camere
72 mp
544 mp teren

Detalii de contact

LUCA&M ESTATE

Horia Vadrariu Consultant Imobiliar

LUCA&M ESTATE
PRO

Abonează-te la newsletter să fii primul care primește cele mai noi recomandări de proprietăți și sfaturi de la experți.

Feedback apel

CONTACT

Creează alertă

Salvează căutarea ca să primești pe email ultimele anunțuri publicate

Duplexuri cu 3 camere de vânzare în Bucovăț (Remetea Mare), Județul Timiș