Casa 4 camere de vanzare in Chinteni

203.280 €

Chinteni, Județul Cluj

Nr. cam.:
4
Sup. utilă:
120 mp
Sup. teren:
300 mp
Tip prop.:
Duplex
  • • Locație aproximativă

Descriere casă

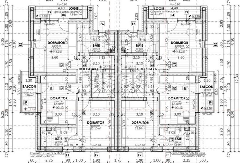
Casa cu 4 camere si teren in Chinteni! Va propunem spre vanzare o unitate duplex, situata intr-o zona aerisita cu panorama si acces facil spre Cluj Napoca. Constructia este din caramida, cu acoperis din tigla, edificata pe 2 niveluri, cu suprafata utila de 120 mp si urmatoarea compartimentare: Parter: - 1 living openspace; - 1 bucatarie; - 1 baie de serviciu; - 1 spatiu de depozitare; - 1 hol de acces; - 1 terasa. Etaj: - 1 dormitor matrimonial cu baie proprie; - 2 dormitoare; - 1 baie; - 2 balcoane. Casa se vinde la stadiul de semifinisat, cu peretii tencuiti si gletuiti, instalatii trase pe pozitii, sape turnate, ferestrele si usile exteriore sunt din PVC, iar la exterior peretii sunt izolati cu polistiren de 10 cm si finisati cu tencuiala decorativa. Confortul termic este asigurat de pompe de caldura si instalatie in pardosela. Terenul are suprafata de 300 mp fiind imprejmuit pe toate laturile, cu de gazon si 2 locuri de parcare. Imobilul dispune de toate utilitatile, iar pe acoperis exista instalate panouri fotovoltaice cu putere instalata de 5 KW, care acopera aproape in integralitate necesarul de energie. Casa se vinde de pe firma, la pretul afisat se adauga TVA conform legilor in vigoare. Pentru a programa o vizionare, asteptam sa ne contactati. Va stam cu drag la dispozitie. Echipa Napoca Imobiliare! ID oferta: 130810
Citește mai mult Citește mai puțin
Centrală proprie Încălzire prin pardoseală 2 Parcări Zonă de deal / munte Zonă rurală

Detalii casă

ID anunț: X57Q112MN Copiat! 275371521 Copiat!
Actualizat în: 01 Aprilie 2026
Tip tranzacție: De vânzare prin agent
Suprafață desfășurată: 160 mp
Nr. bucătării: 1
Nr. băi: 3
Nr. balcoane / Terase / Logii: 2
Nr. terase: 1
Front stradal: 17.0 m
Învelitoare acoperiș: Țiglă
An construcție: 2023
Modalitate de plată: Cash sau Credit

Utilități

Ușă intrare
PVC
Ferestre cu geam termopan
PVC
Utilități
Curent Apă Canalizare CATV
Internet
Cablu
Amenajare străzi
Iluminat stradal Asfaltate
Comision
standard

Disponibilitate proprietate:

Imediat

Puncte de interes

Mijloace transport
bus-station
M-Chinteni
Stații autobuz aprox. 306 m
bus-station
M-Chinteni V
Stații autobuz aprox. 306 m
bus-station
M-Chinteni E
Stații autobuz aprox. 311 m
bus-station
M-Chinteni Lac
Stații autobuz aprox. 311 m

Detalii despre preț și costuri

Costuri cu achiziția

Fără credit
Credit ipotecar
Noua casă

i

Costuri adiționale mai puțin știute la achiziție: taxe notariale, comisioane etc.

Acces la informații premium după autentificare
Login Gratuit

Proprietăți similare

Duplex cu 5 camere în Chinteni
179.685 €
Județul Cluj, Chinteni
5 camere
120 mp
350 mp teren
Duplex cu 4 camere în Tureni
182.000 €
Județul Cluj, Tureni
4 camere
120 mp
340 mp teren
Duplex cu 4 camere în Chinteni
151.250 €
Județul Cluj, Chinteni
4 camere
120 mp
200 mp teren

Detalii de contact

Napoca Imobiliare

Napoca Imobiliare Manager Agentie

5.00(3 review-uri)

Napoca Imobiliare
PRO

Abonează-te la newsletter să fii primul care primește cele mai noi recomandări de proprietăți și sfaturi de la experți.

CONTACT

Creează alertă

Salvează căutarea ca să primești pe email ultimele anunțuri publicate

Duplexuri cu 4+ camere de vânzare în Chinteni, Județul Cluj