Duplex finisat la Cheie cu panorama superba in Chinteni !

260.000 €

Chinteni, Județul Cluj

Nr. cam.:
4
Sup. utilă:
120 mp
Sup. teren:
250 mp
Tip prop.:
Duplex
  • • Locație aproximativă

Descriere casă

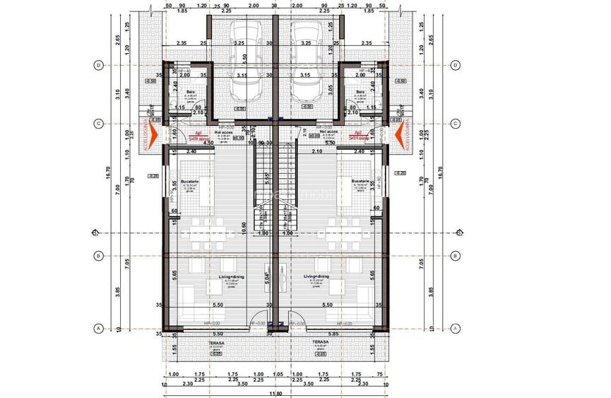
Duplex finisat la cheie, situat in Chinteni, intr-o zona linistita, alcatuita exclusiv din ansambluri de locuinte tip duplex, ideal pentru cei care isi doresc intimitate si confort, departe de agitatia orasului. Proprietatea beneficiaza de acces pe drum asfaltat, toate utilitatile si o panorama deosebita asupra zonei. Imobilul este dispus pe doua niveluri, parter si etaj si are o suprafata utila de 120 mp, fiind amplasat pe un teren de 250 mp. Compartimentarea este eficienta si bine gandita pentru a oferi functionalitate si spatiu generos. Parterul este conceput ca o zona de zi luminoasa si aerisita, unde livingul spatios se continua cu bucataria si ofera acces direct catre terasa si gradina, fiind locul ideal pentru relaxare sau socializare. La acest nivel se mai regasesc un hol, o baie si casa scarii. Etajul este destinat zonei de noapte si ofera trei dormitoare bine proportionate, dintre care dormitorul matrimonial dispune de baie proprie, asigurand un plus de intimitate. Pe langa aceasta, exista inca o baie ce deserveste celalalte 2 dormitoare, un hol si o terasa ce compleaza armonios compartimentarea acestui nivel. Locuinta se preda finisata la cheie, cu finisaje moderne precum gresie si faianta de actualitate, parchet de calitate, tamplarie PVC si sistem de incalzire in pardoseala cu centrala termica proprie, gradina amenajata. Fiecare unitate dispune de doua locuri de parcare, unul acoperit si unul neacoperit. Aceasta proprietate reprezinta o alegere excelenta pentru cei care cauta o locuinta moderna, intr-un cadru natural placut, dar cu acces facil catre oras. Vanzarea se face de pe persoana fizica, nu se aplica TVA. Pret 260.000 Eur
Citește mai mult Citește mai puțin
Grădină Centrală proprie Încălzire prin pardoseală 2 Parcări Zonă de deal / munte Zonă rurală

Detalii casă

ID anunț: X8I711073 Copiat! 275461764 Copiat!
Actualizat în: 23 Aprilie 2026
Suprafață construită: 70 mp
Suprafață desfășurată: 130 mp
Nr. bucătării: 1
Nr. băi: 2
Nr. balcoane / Terase / Logii: 1
Nr. terase: 1
Suprafață terase: 14 mp
Front stradal: 10.0 m
Învelitoare acoperiș: Tabla
An construcție: 2025
Structură rezistență: Cărămidă
Regim înălțime: P+1E

Utilități

Pereți
Faianță Vopsea lavabilă
Ușă intrare
PVC
Uși interior
Lemn
Contorizare
Apometre Contor gaz
Alte spații utile
WC Serviciu
Utilități
Curent Apă Canalizare CATV Gaze Telefon
Internet
Cablu
Amenajare străzi
Iluminat stradal Mijloace de transport în comun Asfaltate
Comision
standard

Disponibilitate proprietate:

Imediat

Puncte de interes

Mijloace transport
bus-station
M-Xamus V
Stații autobuz aprox. 707 m
bus-station
M-Xamus
Stații autobuz aprox. 707 m
bus-station
M-Xamus E
Stații autobuz aprox. 714 m
bus-station
M-Chinteni
Stații autobuz aprox. 906 m

Detalii despre preț și costuri

Costuri cu achiziția

Fără credit
Credit ipotecar
Noua casă

i

Costuri adiționale mai puțin știute la achiziție: taxe notariale, comisioane etc.

Insight premium disponibil după login

Proprietăți similare

Duplex cu 4 camere în Chinteni
240.000 €
Județul Cluj, Chinteni
4 camere
120 mp
250 mp teren
Duplex cu 4 camere în Chinteni
245.000 €
Județul Cluj, Chinteni
4 camere
140 mp
350 mp teren
Duplex cu 4 camere în Chinteni
240.000 €
Județul Cluj, Chinteni
4 camere
119 mp
250 mp teren

Detalii de contact

Impakt Imobiliare

Ovidiu Stetco Manager - Expert Imobiliar

4.61(6 review-uri)

Impakt Imobiliare
PRO

Abonează-te la newsletter să fii primul care primește cele mai noi recomandări de proprietăți și sfaturi de la experți.

CONTACT

Creează alertă

Salvează căutarea ca să primești pe email ultimele anunțuri publicate

Duplexuri cu 4+ camere de vânzare în Chinteni, Județul Cluj