3

Casa cuplata in zona accesibila/TVA INCLUS.

215.000 €

Chinteni, Județul Cluj

Nr. cam.:
5
Sup. utilă:
118 mp
Sup. teren:
352,5 mp
Tip prop.:
Duplex
  • • Locație aproximativă

Descriere casă

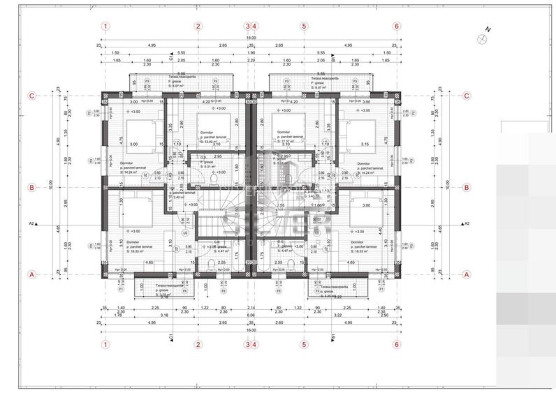
Silver Imobiliare ofera spre vanzare casa tip duplex in curs de construire, situata in prima parte a comunei Chinteni cu acces facil spre Cluj-Napoca si alte puncte de interes. Casa este construita pe o parcela de 705 mp, revenindui fiecarei unitati locative 352,5 mp , dispusa pe 2 niveluri , front de 17 m cu suprafata utila de 118 mp fiind compartimentata util, dupa cum urmeaza: P= living+bucatarie, dormitor/ birou, baie, terasa de 27.4 mp cu acces din living, hol, casa scarilor+spatiu depozitare dedesubt; E= 3 dormitoare, 2 bai, 2 balcoane, hol+casa scarilor( dormitorul principal beneficiaza de baie proprie, zona dressing si balcon) La nivel de finisaje casa se va preda la stadiul de semifinisat cu materiale de calitate superioara , dupa cum urmeaza: - fundatii stalpi si plansee din beton armat; - hidroizolatii cu membrana si polistiren; - zidarie din caramida de 25 cm/cemacon evoceramic; - termosistem cu polistiren de 15 cm/eps 80+tencuiala si piatra decorativa; - zidarie individuala in zona de alipire( doua randuri de caramida cu polistiren de 10 cm la mijloc) - acoperis cu tigla din beton tip Bramac; - pod circulabil placat cu scandura; - termoizolatie peste etaj cu spuma poliuretanica; - glafuri din granit; - geamuri si usi principale termoizolante din Pvc cu 3 foi de sticla/5 camere de tip Salamander; - pereti interiori tencuiti+1 strat de glet; - instalatiile sanitare si electrice trase pe pozitii; - sapa de egalizare; - curtea ingradita si amenajata cu pavaj si trotuare perimetrale; - sistem de incalzire este in pardoseala atat la parter cat si la etaj+centrala termica in condensare de tip Ariston; Casa va fi racordata la toate utilitatile necesare si contoare montate. PRETUL MENTIONAT IN ANUNT CONTINE TVA-UL DE 21%. Pentru alte detalii sau programarea unei vizionari apelari cu incredere!
Citește mai mult Citește mai puțin
Nemobilat Grădină Centrală proprie Încălzire prin pardoseală 2 Parcări Zonă de deal / munte Zonă rurală

Detalii casă

ID anunț: XF6T1102K Copiat! 275333865 Copiat!
Actualizat în: 19 Mai 2026
Tip tranzacție: De vânzare prin agent
Suprafață construită: 82 mp
Suprafață desfășurată: 163 mp
Nr. bucătării: 1
Nr. băi: 3
Nr. balcoane / Terase / Logii: 2
Nr. terase: 1
Suprafață terase: 27.4 mp
Front stradal: 17.0 m
Învelitoare acoperiș: Țiglă
An construcție: 2026 (În construcție)
Structură rezistență: Cărămidă
Regim înălțime: P+1E
Modalitate de plată: Cash sau Credit

Utilități

Ușă intrare
PVC
Izolații termice
Exterior
Ferestre cu geam termopan
PVC
Contorizare
Apometre Contor gaz
Utilități
Curent Apă Canalizare CATV Gaze Telefon
Internet
Cablu
Amenajare străzi
Iluminat stradal Mijloace de transport în comun Asfaltate
Comision
standard

Certificat energetic:

Clasa energetică: B

Disponibilitate proprietate:

09.2026

Puncte de interes

Mijloace transport
bus-station
M-Xamus V
Stații autobuz aprox. 539 m
bus-station
M-Xamus
Stații autobuz aprox. 539 m
bus-station
M-Xamus E
Stații autobuz aprox. 544 m
bus-station
M-Garden V
Stații autobuz aprox. 992 m

Istoricul prețurilor

Acces la informații premium după autentificare
Login Gratuit

Detalii despre preț și costuri

Costuri cu achiziția

Fără credit
Credit ipotecar
Noua casă

i

Costuri adiționale mai puțin știute la achiziție: taxe notariale, comisioane etc.

Acces la informații premium după autentificare
Login Gratuit

Proprietăți similare

Duplex cu 4 camere în Chinteni
195.000 €
Județul Cluj, Chinteni
4 camere
120 mp
250 mp teren
Duplex cu 4 camere în Chinteni
220.000 €
Județul Cluj, Chinteni
4 camere
120 mp
250 mp teren
Duplex cu 4 camere în Chinteni
195.000 €
Județul Cluj, Chinteni
4 camere
120 mp
480 mp teren

Detalii de contact

SILVER IMOBILIARE

Dorel Lacatus Senior Broker

SILVER IMOBILIARE
PRO

Abonează-te la newsletter să fii primul care primește cele mai noi recomandări de proprietăți și sfaturi de la experți.

CONTACT

Creează alertă

Salvează căutarea ca să primești pe email ultimele anunțuri publicate

Duplexuri cu 4+ camere de vânzare în Chinteni, Județul Cluj