Duplex 7 camere, 205 mp, 300mp teren, priveliste panoramica, Chinteni

229.000 €

Chinteni, Județul Cluj

Nr. cam.:
7
Sup. utilă:
205 mp
Sup. teren:
300 mp
Tip prop.:
Duplex
  • • Locație aproximativă

Descriere casă

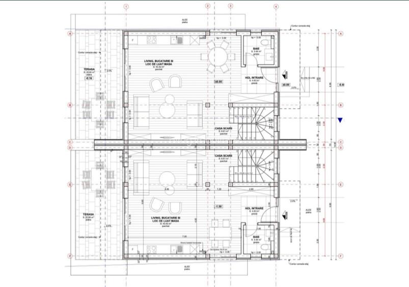
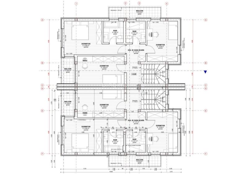
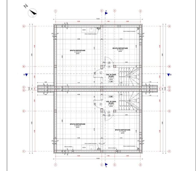
Va propunem spre vanzare casa tip duplex, S+P+E+Pod in suprafata utila de 181,64 mp + un pod, fiecare unitate pe o suprafata de 300mp teren, localizate in comuna Chinteni, zona rezidentiala de case , acces strada asfaltata cu toate utilitatile respectiv apa-canal , gaz , electricitate. Drumul este de minim 8m latime cu Șanturi laterale pentru colectarea apei din precipitatii. Proprietatea este situata aproape de mijloacele de transport in comun la 10-12 minute distanta de Auchan-Jysk de pe B-dul Muncii si 20 minute de centrul municipiului Cluj-Napoca. Fiecare unitate este compusa astfel: 1- SUBSOL- S utila 59,16 mp compus din hol+casa scarii + 2 spatii depozitare (destinatie dupa necesitati) 2-PARTER- S utila 60,26 mp compus din hol intrare ,baie ,casa scarii, living , Bucatarie si loc de luat masa. 3-ETAJ- S utila 62,22 mp compus din hol si casa scarii , 3 dormitoare (un dormitor matrimonial) , 2 bai ,balcon + Logie. 4. Suplimentar camera 24 mp amenajata la stadiul semifinisat in mansarda ce poate avea rol de birou sau loc depozitare suplimentar. Structura din beton conform proiect autorizat , caramida 25 cm + polistiren EPS 100 de 10 cm grosime la exterior , pereti interiori din caramida cu tencuiala si un strat de glet. Tamplarie din PVC cu 3 straturi de sticla culoare gri antracit.(izolare termica si fonica de ultima generatie) Incalzire in pardoseala inclusiv in bai. Instalatii sanitare electrice si termice executate si trase la pozitie. Sape finalizate . Amenajari exterior , parcari conform proiect autorizat. Se vor preda cu bransamentele pt utilitati executate si receptionate ( contoare la apa ,gaz , electric) Pentru informatii suplimentare sau vizionare nu ezitati sa ne contactati. Id extern: P4297
Citește mai mult Citește mai puțin
Grădină Curte Centrală proprie Încălzire prin pardoseală Beci 2 Parcări 2 Parcări / Garaje / Parcări subterane Zonă de deal / munte Zonă rurală

Detalii casă

ID anunț: XE7D110D1 Copiat! 195322600 Copiat!
Actualizat în: 02 Martie 2026
Suprafață construită: 250 mp
Nr. bucătării: 1
Nr. băi: 3
Nr. balcoane / Terase / Logii: 2
Front stradal: 10 m
An construcție: 2023 (La gri)
Structură rezistență: Cărămidă
Regim înălțime: S+P+1E

Utilități

Contorizare
Apometre Contor gaz
Alte spații utile
Spațiu depozitare
Utilități
Curent Apă Canalizare Gaze
Ușă intrare
Metal
Izolații termice
Exterior
Ferestre cu geam termopan
PVC
Comision
2%+TVA

Disponibilitate proprietate:

imediat

Puncte de interes

Mijloace transport
bus-station
M-Garden V
Stații autobuz aprox. 266 m
bus-station
M-Garden E
Stații autobuz aprox. 273 m
bus-station
M-Garden
Stații autobuz aprox. 273 m
bus-station
Catun Est
Stații autobuz aprox. 387 m

Detalii despre preț și costuri

Costuri cu achiziția

Fără credit
10.762 RON
Credit ipotecar
12.846 RON
Noua casă
1.307 RON+ taxe notariale

i

Costuri adiționale mai puțin știute la achiziție: taxe notariale, comisioane etc.

Proprietăți recomandate

Detalii de contact

Bling Imobiliare

Traian Hiruta Master Broker acreditat

Bling Imobiliare

Abonează-te la newsletter să fii primul care primește cele mai noi recomandări de proprietăți și sfaturi de la experți.

CONTACT

Creează alertă

Salvează căutarea ca să primești pe email ultimele anunțuri publicate

Duplexuri cu 4+ camere de vânzare în Chinteni, Județul Cluj