Va propunem spre vanzare duplex (disponibile 2 unitati) situat in cartierul Buna Ziua, într-o zona cu acces foarte bun, zona de case, zona retrasă de la trafic si cu panorama foarte frumoasă asupra orașului si aproape de viitorul parc de pe Mihai Romanu.
Duplexul are regimul de inaltime: P+ 1 Etaj + Etaj retras. Terenul total pe care este construita casa este in suprafata de 341mp (cca. 170 mp/unitate).
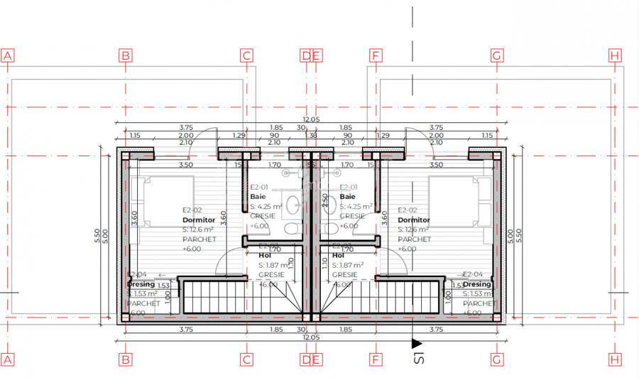
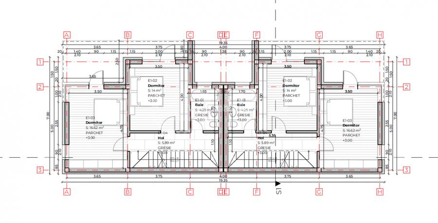
Compartimentarea celor 110 mp utili ai fiecarei unitati este gandita astfel:
- Parter: living + bucatarie, 1 baie, 1 hol
- Etaj: 2 dormitoare, 2 bai, 2 dressing, 1 balcon
- Etaj retras : 1 dormitor cu baie si dressing, 1 terasa mare
*Dispune de 2 locuri de parcare pentru fiecare unitate.
Proprietatea este ideala pentru locuinta unei familii. Duplexul se preda semifinisat la interior, pereți tencuiți și gletuiti la înaltă precizie cu materiale Baumit, cu toate instalatiile electrice, termice si sanitare trase pe pozitii, incalzire in pardoseala, pereti gletuiti si sape autonivelante, tamplarie PVC cu geam termopan. Exteriorul se preda complet finisat, iar curtea va fi amenajata si delimitata pentru fiecare unitate.
Zona foarte liniștită, dispune de toate utilitățile și asfalt. Mijloacele de transport în comun se afla la doar câteva minute distanta.
Pentru mai multe detalii sau programarea unei vizionari, nu ezitati sa ne contactati! Garantam castigul reciproc!
[ ID Proprietate: P10591 ]
Sediul central - Timișoara
Bulevardul Victor Babeș nr. 2, 300230, Timișoara, România
Tel: +40.374.40.44.98 / Fax: +40.256.401.179
Email: suport@imobiliare.ro
Luni - Vineri 08:00 - 20:00
Punct de lucru - București: Iride Business Park, Bld. Dimitrie
Pompeiu 9-9A, Clădirea B2B,
020335, Sector 2, București, România
CONTACT
Sediul central - Timișoara
Bulevardul Victor Babeș nr. 2, 300230, Timișoara, România
Tel: +40.374.40.44.98 / Fax: +40.256.401.179
Email: suport@imobiliare.ro
Luni - Vineri 08:00 - 20:00
Punct de lucru - București: Iride Business Park, Bld. Dimitrie
Pompeiu 9-9A, Clădirea B2B,
020335, Sector 2, București, România
Sună acum și cere detalii sau programează o vizionare.
Cere detalii prin email
*
*
*
*
Stații autobuz
Școli
Universități
Gradinițe
Supermarket
Parcări
Parcuri
Terenuri sport
Spital
Farmacie
Restaurant
Cafenea
Bar
Pub
Bancă
Dacia Service
aprox.
664 m
Statia Dacia Service, Linia 40
aprox.
670 m
Alsifcom
aprox.
687 m
Statia Alsifcom, Linia 40
aprox.
693 m
Drum Faget
aprox.
708 m
M-Aroma
aprox.
764 m
Statia Drum Faget, Linia 40
aprox.
787 m
Centrul Medical
aprox.
788 m
Compexit
aprox.
805 m
Statia Compl. Tempus, Linia 21
aprox.
828 m
Vitacom
aprox.
903 m
Statia Vitacom, Linia 21
aprox.
926 m
Vitacom Nord
aprox.
937 m
Electrogroup
aprox.
949 m
E. Ionesco
aprox.
1072 m
Liceul de Informatica Tiberiu Popoviciu
aprox.
1480 m
Liceul de Informatica "Tiberiu Popoviciu"
aprox.
1504 m
Cladirea C.I.A
aprox.
1853 m
Facultatea de Arhitectura si Urbanism
aprox.
1921 m
Facultatea Arte Plastice, Sectia Foto-Video
aprox.
1654 m
Cladirea Observator a Universitatii Tehnice din Cluj-Napoca
aprox.
1816 m
UT Facultatea de Constructii si Facultatea de Arhitectura si Urbanism
aprox.
1882 m
CFDP si Facultatea de Arhitectura si Urbanism
aprox.
1894 m
Facultatea de Arhitectura si Urbanism
aprox.
1914 m
Helen
aprox.
1885 m
Gradinita Liceului Waldorf
aprox.
1981 m
Baumax
aprox.
945 m
Lidl
aprox.
1128 m
Sigma Shopping Center
aprox.
1766 m
Lidl
aprox.
1772 m
Carrefour Express
aprox.
1870 m
Profi
aprox.
1951 m
Parcare
aprox.
538 m
Parcare
aprox.
656 m
Parcare
aprox.
737 m
Parcare
aprox.
778 m
Parcare
aprox.
832 m
Parcare
aprox.
865 m
Parcare Baumax
aprox.
923 m
Parcare Baumax
aprox.
1057 m
Parcare
aprox.
1062 m
Parcare privata
aprox.
1086 m
Parcare LIDL
aprox.
1088 m
Parcare
aprox.
1091 m
Parcare privata
aprox.
1116 m
Parcare pentru clienti
aprox.
1202 m
Parcare
aprox.
1411 m
Parc
aprox.
668 m
Parc
aprox.
1214 m
Parc
aprox.
1610 m
Parc
aprox.
1702 m
Parc
aprox.
1706 m
Parc
aprox.
1874 m
Cimitirul evreiesc
aprox.
1882 m
Parc
aprox.
1898 m
Parc
aprox.
1944 m
Teren sportiv
aprox.
830 m
Teren sportiv
aprox.
852 m
Teren sportiv
aprox.
1857 m
Cabinet de nefrologie si centru de dializa Fresenius
aprox.
857 m
Novogyn - Spital Privat de Obstetrica-Ginecologie
aprox.
1466 m
Centrul Medical de Balneofizioterapie si Recuperare Edelweiss
aprox.
1582 m
Centrul Medical Transilvania
aprox.
1979 m
Farmacia Observator
aprox.
1697 m
Farmacia Infofarm
aprox.
1936 m
Greenbox Pizza
aprox.
869 m
Da Vinci Ristorante
aprox.
1139 m
Da Vinci
aprox.
1143 m
Restaurant Aroma
aprox.
1176 m
Aroma
aprox.
1195 m
Restaurant Rod
aprox.
1222 m
Grand Hotel Italia
aprox.
1372 m
Crama Haiducilor
aprox.
1449 m
Athena
aprox.
1744 m
Cantina UTCN Observator
aprox.
1753 m
Athena
aprox.
1756 m
Subway
aprox.
1763 m
Salad Box
aprox.
1764 m
SEOUL - Korean Healty Food
aprox.
1770 m
Cantina Observator
aprox.
1770 m
Apartament 1
aprox.
1050 m
G94
aprox.
1803 m
The Gentlemen's Club
aprox.
1816 m
Caminul Zero
aprox.
1831 m
Phi 18
aprox.
1846 m
Hard Club
aprox.
1867 m
Mates Pub
aprox.
1873 m
Banca Transilvania
aprox.
1735 m
OTP Bank
aprox.
1738 m
BRD - Groupe Societe Generale
aprox.
1767 m
BRD
aprox.
1769 m
BRD - Groupe Societe Generale
aprox.
1829 m
BRD
aprox.
1843 m
EximBank
aprox.
1862 m
ING
aprox.
1992 m
Pe linia formată de străzile Bună Ziua și Fagului circulă autobuzul 21, care face legătura cu zonele Andrei Mureșanu și Centru (capătul acestuia fiind la Piața Mihai Viteazul). De asemenea, pe Strada Calea Turzii, care marchează granița cu Zorilor, circulă mai multe linii de transport public, printre care se numără autobuzele 40, 40S, 43B (ce face legătura cu zona Grigorescu), M11 și M12 (care pornesc de la Piața Timotei Cipariu, din Centru, și ajung în exteriorul orașului).
În ceea ce privește ciclul preșcolar, una dintre cele mai apropiate grădinițe pentru clujenii din Bună Ziua este "Poienița" (de pe Strada Alverna, nr. 63, chiar la granița cu zona Gheorgheni). Pentru ciclurile ulterioare de educație, de menționat ar fi Școala Gimnazială "Constantin Brâncuși", din Gheorgheni, dar și Liceul de Informatică "Tiberiu Popoviciu", din Zorilor. De asemenea, în Zorilor se găsesc și câteva prestigioase instituții de învățământ superior.
La fel ca în majoritatea cartierelor clujene, în Bună Ziua nu există nici mall, nici hipermarket "“ acest fapt este, de altfel, cât se poate de firesc, având în vedere că este vorba de o zonă aflată încă în plină dezvoltare. Cei care locuiesc aici au, însă, la dispoziție mai multe magazine de mici dimensiuni, printre care se numără și un Lidl (unitate comercială amplasată pe Strada Bună Ziua, nr. 82). O bună soluție în materie de cumpărături "“ alimentare, dar nu numai "“ este dată de proximitatea cartierului Gheorgheni, unde se află unul dintre cele mai reputate centre comerciale din Cluj-Napoca, anume Iulius Mall. Aici se găsesc atât numeroase magazine cu profil divers (de îmbrăcăminte, încălțăminte, electrocasnice etc.), cât și un hipermarket Auchan.
Pentru cei care au mașină, găsirea unui loc de parcare (fie el și permanent) nu ar trebui să reprezinte o problemă în Bună Ziua, având în vedere că acesta nu este un cartier aglomerat. Cumpărătorii de locuințe noi ar trebui să se intereseze, însă, la dezvoltator cu privire la achiziția unui loc de parcare adiacent ansamblului rezidențial.
Deși dispune de ample zone verzi (majoritatea pe terenurile încă neconstruite ale cartierului), Bună Ziua nu are, încă, parcuri publice de mari dimensiuni; cu toate acestea, cei care au copii pot spera să găsească un loc de joacă special amenajat pentru cei mici de către dezvoltatorii ansamblurilor mai mari din zonă. La capitolul facilități sportive, de menționat este faptul că, în preajma punctului unde se unesc Strada Bună Ziua și Strada Fagului se găsește un teren cu gazon sintetic. Locuitorii acestui cartier al Clujului pot beneficia și de oportunitățile oferite de zonele învecinate, o opțiune demnă de luat în calcul pe timp de weekend fiind o ieșire în pădurea Făget, din sudul orașului. Cartierul Gheorgheni dispune, de asemenea, de multiple variante la capitolul recreere "“ printre acestea se numără două complexuri sportive moderne, anume Baza Sportivă Napoca și Baza Sportivă Gheorgheni.
La capitolul sănătate, în Bună Ziua poți găsi câteva cabinete sau centre medicale particulare, de menționat fiind Centrul Medical Terra Med, cu profil generalist, dar și Centrul Dental Flash din apropiere, cu specializare în stomatologie. Paleta de servicii medicale disponibile în această zonă a Clujului este completată, iarăși, de facilitățile oferite de cartierele învecinate. Ca și Europa, Bună Ziua beneficiază de vecinătatea cu Zorilor, unde se găsesc o serie de unități medicale de stat, precum Clinica de Pediatrie IV, Spitalul Clinic de Boli Infecțioase, Clinica de Neurochirugie Cluj, Clinica de Endocrinologie, dar și Spitalul Clinic de Recuperare. Totodată, locuitorii cartierului pot ajunge cu relativă ușurință în Centru, unde se găsesc cele mai multe spitale din oraș.
La capitolul opțiuni gastronomice, zona Bună Ziua nu este, comparativ cu alte cartiere ale orașului de pe Someș, foarte bine deservită. De menționat ar fi, totuși, restaurantul "Da Vinci", ce dispune și de terasă, dar și restaurantul "Buongiorno "“ Cucina Fiorentina". Pentru mai multe opțiuni la acest capitol poți miza și pe oportunitățile disponibile în cartierele învecinate, precum Gheorgheni.
Dacă ai nevoie să efectuezi o operațiune bancară, trebuie să știi că zona Bună Ziua nu dispune de o sucursală bancară "“ motiv pentru care va trebui să te bazezi pe opțiunile oferite de cartierele învecinate. Spre exemplu, în Gheorgheni poate fi găsit un sediu Banca Transilvania, dar și două sucursale BCR, iar cealaltă, pe Bulevardul Nicolae Titulescu. Consultă harta și află unde sunt localizate și alte bănci sau ATM-uri în zona Bună Ziua:
Înainte să pleci...
Ești sigur că ai văzut și aceste proprietăți?
399.000 €
Cluj-Napoca, Bună Ziua
4 camere
110 mp
231 mp teren
399.000 €
Cluj-Napoca, Bună Ziua
4 camere
110 mp
231 mp teren
399.000 €
Cluj-Napoca, Bună Ziua
4 camere
110 mp
231 mp teren
Creează alertă
Salvează căutarea ca să primești pe email ultimele anunțuri publicate
Duplexuri cu 4+ camere de vânzare în zona Bună Ziua, Cluj-Napoca
Cere detalii prin email
*
*
*
*
Detaliile tale de contact vor fi partajate cu Win Imobiliare