Descoperă confortul unui cămin modern, perfect pentru tine și familia ta, situat într-una dintre cele mai apreciate zone din Cluj-Napoca – Dâmbul Rotund.
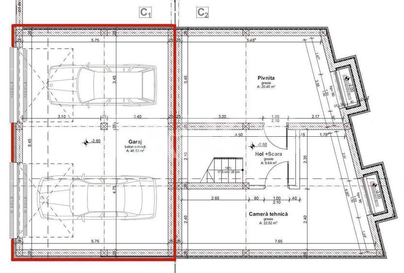
TABOO Imobiliare îți propune spre vânzare o casă cuplată, spațioasă și bine compartimentată, cu o panoramă deosebită asupra orașului. Proprietatea are o suprafață utilă de 156 mp și este amplasată pe un teren de 235 mp, la care se adaugă o cotă parte de 50 mp din drumul de acces. Imobilul este dispus pe trei niveluri: Subsol + Parter + Etaj.
Compartimentare:
Demisol: două garaje spațioase și spațiu de depozitare;
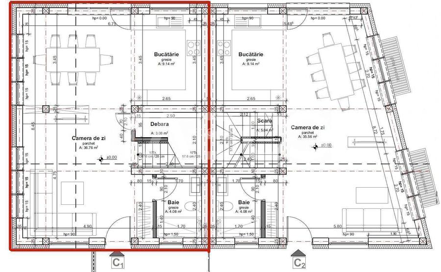
Parter: living generos cu bucătărie open-space și zonă de dining, debara, baie și terasă;
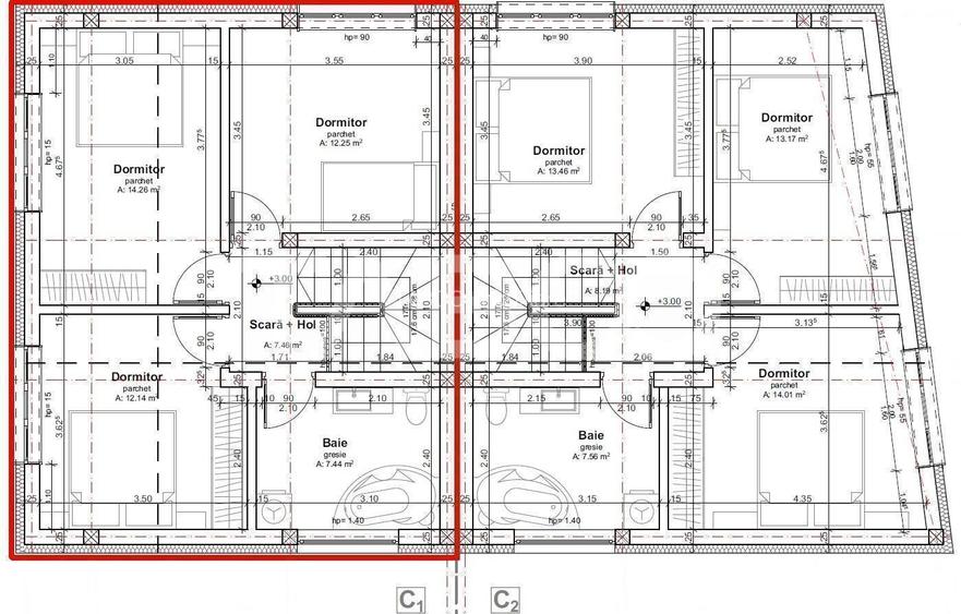
Mansardă înaltă: trei dormitoare luminoase, hol și o baie mare;
Locuința se predă la stadiul de semifinisat și beneficiază de dotări moderne:
încălzire în pardoseală;
centrală termică proprie;
tâmplărie PVC cu geamuri termopan (7 camere);
instalații electrice și sanitare trase pe poziție;
pereți finisați cu glet și vopsea lavabilă;
acoperiș din tablă;
curte amenajată.
Curtea liberă de aproximativ 185 mp oferă spațiu ideal pentru relaxare, loc de joacă pentru copii și două locuri de parcare.
Avantaje locație:
grădiniță privată la doar 50 m;
Școala Gimnazială Emil Isac la 700 m;
acces rapid către Gară (3 minute);
proximitate față de viitorul mall Rivus (7 minute);
în apropiere de instituții publice, bănci, facultăți și mijloace de transport.
Această proprietate reprezintă alegerea ideală pentru cei care își doresc un stil de viață modern, într-o zonă liniștită, dar bine conectată la facilitățile orașului.
Există posibilitatea de achiziție a ambelor unități locative.
Pentru mai multe detalii sau programarea unei vizionări, echipa TABOO Imobiliare îți stă la dispoziție!
Pret: 375.000€
Cod ofertă / ID: P26395
Sună-ne acum la numarul din anunt și află detalii despre această proprietate de vanzare din Cluj-Napoca, dar și despre alte proprietăți potrivite pentru tine.
Citește mai mult
Citește mai puțin
Nemobilat
Curte
Centrală proprie
Încălzire prin pardoseală
2 Parcări
2 Garaje
Bine întreținut (Bună)
Sediul central - Timișoara
Bulevardul Victor Babeș nr. 2, 300230, Timișoara, România
Tel: +40.374.40.44.98 / Fax: +40.256.401.179
Email: suport@imobiliare.ro
Luni - Vineri 08:00 - 20:00
Punct de lucru - București: Iride Business Park, Bld. Dimitrie
Pompeiu 9-9A, Clădirea B2B,
020335, Sector 2, București, România
CONTACT
Sediul central - Timișoara
Bulevardul Victor Babeș nr. 2, 300230, Timișoara, România
Tel: +40.374.40.44.98 / Fax: +40.256.401.179
Email: suport@imobiliare.ro
Luni - Vineri 08:00 - 20:00
Punct de lucru - București: Iride Business Park, Bld. Dimitrie
Pompeiu 9-9A, Clădirea B2B,
020335, Sector 2, București, România
Sună acum și cere detalii sau programează o vizionare.
Nu rata ocazia să afli mai multe!
Sună acum și cere detalii sau programează o vizionare.
Cere detalii prin email
*
*
*
*
Stații autobuz
Stații tren
Stații tramvai
Gradinițe
Școli
Universități
Supermarket
Parcări
Terenuri sport
Parcuri
Piețe publice
Farmacie
Spital
Restaurant
Bar
Cafenea
Bancă
Trandafirilor
aprox.
997 m
Fagaras
aprox.
1008 m
Statia Trandafirilor, Linia 31
aprox.
1008 m
Maramuresului
aprox.
1013 m
Statia Fagaras, Linia 31
aprox.
1019 m
Senina Nord
aprox.
1033 m
Senina Sud
aprox.
1051 m
Statia Senina, Linia 39
aprox.
1052 m
Autogara
aprox.
1085 m
Statia Autogara 2, Linia 31, 39
aprox.
1098 m
Autogara
aprox.
1192 m
Giordano Bruno
aprox.
1219 m
Statia Autogara 1, Linia 31, 39
aprox.
1233 m
Autogara Fany
aprox.
1233 m
Statia FIMARO, Linia 31
aprox.
1237 m
Gara Cluj-Napoca
aprox.
1695 m
Gara Noua / "Gara de scurt parcurs"
aprox.
1766 m
Statia P-ta Garii 2 TRV, Linia 100, 102, 31
aprox.
1720 m
Piata Garii
aprox.
1722 m
Piata Garii
aprox.
1762 m
Grăd.Neghinițăstr. 1
aprox.
687 m
Grăd.Neghiniță
aprox.
1020 m
Gradinita Neghinita
aprox.
1750 m
Grăd.Bambi str.5
aprox.
1865 m
Colegiul Național George Barițiu
aprox.
779 m
Scoala generala nr. 7 / Emil Isac
aprox.
806 m
Scoala Generala si Liceul Waldorf
aprox.
979 m
Școala de Agenți de Poliție "Septimiu Mureșan" Cluj Napoca
aprox.
1119 m
Grup Școlar Industrial Tehnofrig
aprox.
1760 m
Liceul Teologic Baptist "Emanuel"
aprox.
1942 m
Liceul Teologic Emanuel
aprox.
1956 m
Universitatea Crestina "Dimitrie Cantemir" Facultatea de Drept Cluj Napoca (en)
aprox.
1963 m
Lidl
aprox.
1848 m
Oncos
aprox.
1856 m
La Doi Pasi
aprox.
1937 m
Parcare
aprox.
1219 m
Parcare pentru clienti
aprox.
1486 m
Parcare
aprox.
1725 m
Parcare pentru clienti cu plata
aprox.
1807 m
Parcare
aprox.
1826 m
Parcare
aprox.
1841 m
Parcare
aprox.
1990 m
Parcare
aprox.
1994 m
Teren sportiv
aprox.
766 m
Teren sportiv
aprox.
770 m
Teren sportiv
aprox.
806 m
Teren sportiv
aprox.
1067 m
Teren sportiv
aprox.
1120 m
Fabrica de Sport
aprox.
1642 m
CFR 1907 Cluj
aprox.
1810 m
Parcul CFR
aprox.
1483 m
Parc
aprox.
1494 m
Parc
aprox.
1802 m
Piata Garii-RailwayStation Square (en)
aprox.
1718 m
Farmacia Catena
aprox.
1706 m
Farmacia Ducfarm
aprox.
1799 m
Farmacia Richter
aprox.
1831 m
Farmacie Veterinara
aprox.
1836 m
Salina Saltera
aprox.
1903 m
S.C. TERRA MED S.R.L.
aprox.
1966 m
Policlinica de copii nr III.
aprox.
1970 m
Pediatrie III
aprox.
1979 m
Restaurant
aprox.
1091 m
suson farm (en)
aprox.
1683 m
Restaurant Autoservire
aprox.
1699 m
Mama Manu
aprox.
1706 m
Simigerie
aprox.
1757 m
Pralina Fresh Fast-food
aprox.
1773 m
Autoservire Horea 89
aprox.
1790 m
Pizzeria Ciao
aprox.
1812 m
Ilinca
aprox.
1909 m
Restaurant Pensiune Junior
aprox.
1937 m
La Casa
aprox.
1942 m
Bar
aprox.
1694 m
Cafe Bar Horea 2
aprox.
1832 m
S.C. Ralu Denis
aprox.
1902 m
Vegas caffe
aprox.
1864 m
Banca Transilvania
aprox.
1054 m
Banca Transilvania
aprox.
1067 m
BRD
aprox.
1215 m
BRD
aprox.
1215 m
BRD
aprox.
1711 m
Banca Transilvania
aprox.
1807 m
CEC Bank
aprox.
1815 m
BCR
aprox.
1840 m
Raiffeisen Bank
aprox.
1876 m
Banca Transilvania
aprox.
1921 m
Printre principalele artere care străbat această zonă a Clujului se numără, în partea de sud, strada Septimiu Mureșan (aceasta merge, pe bună parte din lungimea sa, paralel cu râul Nadăș); în centrul cartierului se află Strada Dâmbul Rotund "“ de unde îi vine, de fapt, și numele; în nord, Strada Gheorghe Sion și Strada Viile Dâmbul Rotund marchează, practic, limita nordică a cartierului. Comparativ cu alte zone ale Clujului, Dâmbul Rotund este, pe alocuri, destul de deficitar în ceea ce privește infrastructura rutieră. Deși este deservit, ca și alte zone clujene, de o serie de mijloace de transport în comun, zona de nord a cartierului ar necesita extinderea liniilor parcurse de acestea. Dacă vrei să cumperi o proprietate aici, interesează-te, așadar, ce distanță ai de parcurs până la cele mai apropiate stații.
Dacă ești părinte "“ sau deocamdată doar îți dorești să devii "“, cu siguranță că, atunci când vine vorba de alegerea unei locuințe, un aspect important la care te gândești este reprezentat de oportunitățile de educație disponibile într-o zonă sau alta. În această privință, poți să stai liniștit: în Dâmbul Rotund se găsesc, ca și în celelalte subdiviziuni ale orașului de pe Someș, mai multe unități de învățământ. O școală cu tradiție din cartier este Școala Gimnazială "Emil Isac", situată chiar în apropiere de Strada Dâmbul Rotund, din zona centrală. În ceea ce privește oportunitățile de continuare a studiilor după liceu, de menționat este Școala de Agenți de Poliție "Septimiu Mureșan" "“ localizată în zona de sud a cartierului, dar dincolo de cursul râului Nadăș.
Ca și în Gruia, în Dâmbul Rotund nu există, momentan, un mall și nici un hipermarket (lucru cât se poate de firesc, de altfel, ținând cont de faptul că este vorba de un cartier mărginaș și cu o densitate a populației relativ redusă). Locuitorii acestei zone nu sunt, însă, lipsiți de alternative când vine vorba de cumpărături "“ astfel, pentru nevoile de zi cu zi există o serie de magazine de dimensiuni mai reduse, dintre care unele afiliate unor rețele internaționale. Chiar dacă nu strict între granițele cartierului, opțiuni există și pentru aceia care sunt pasionați de shopping. Fără prea mare efort, aceștia pot ajunge rapid în zona Centrală a orașului, unde pot vizita numeroasele magazine existente în materie de fashion (și nu numai).
Dacă ai "“ sau intenționezi să-ți achiziționezi "“ o mașină, parcarea nu ar trebui să reprezinte, în mod normal, o problemă, dată fiind densitatea redusă a populației din acest cartier. Dacă dorești, totuși, să închiriezi un spațiu al tău de la autoritățile locale, te poți interesa la sediul central al Primăriei Clujului (amplasat pe Strada Moților, nr. 3).
Spre deosebire de locuitorii altor zone ale Clujului, cei din Dâmbul Rotund nu au la dispoziție un parc în toată puterea cuvântului, cartierul fiind, în general, deficitar și la capitolul locuri de joacă pentru copii. Totuși, având în vedere multitudinea zonelor verzi, poți spera să găsești câteva trasee bune de plimbare. Dacă ești pasionat de sport, iar mersul pe jos și joggingul nu sunt suficiente pentru tine, în Dâmbul Rotund găsești o oportunitate importantă, cunoscută localnicilor sub numele "Fabrica de Sport". Amplasat în sudul cartierului, în fosta zonă industrială, acesta este considerat a fi unul dintre cele mai moderne complexuri sportive din oraș, fiind deschis atât amatorilor de fotbal, cât și celor de fitness, aerobic, kickboxing etc.
Dacă te gândești să te muți în Dâmbul Rotund, poate că vei fi dezamăgit să afli că aici nu există niciun spital de stat. Nu e cazul, însă, să te descurajezi: având în vedere proximitatea față de Centru, pentru serviciile medicale de urgență poți ajunge rapid la multitudinea de spitale care se găsesc în "inima" orașului: Spitalul Clinic Județean de Urgență Cluj-Napoca, Spitalul Clinic Municipal Cluj-Napoca, Spitalul Universitar C.F. Cluj-Napoca etc. Nu sunt de neglijat, desigur, nici cele câteva cabinete medicale particulare ce pot fi găsite în cartier "“ pe acest segment vei găsi atât câteva opțiuni în materie de medicină de familie, cât și în ceea ce privește anumite servicii medicale de specialitate (stomatologie, spre exemplu).
În afară de câteva fast food-uri de cartier, locuitorii cartierului Dâmbul Rotund beneficiază, în apropierea casei, și de câteva oportunități demne de luat în seamă la capitolul restaurante. De menționat este restaurantul "Stejarul", amplasat pe Strada Corneliu Coposu, nr. 95, ce dispune de terasă și oferă și servicii de livrare la domiciliu, dar și restaurantul "Fabrica", de pe Strada Tudor Vladimirescu, nr. 22, unde pot fi organizate și evenimente. Pentru a beneficia de o gamă mai largă de opțiuni pentru ieșirile în oraș cu prietenii, locuitorii acestui cartier au la dispoziție, desigur, și zona Centrală.
Dacă ai nevoie să efectuezi o operațiune bancară, trebuie să știi că strict între granițele acestui cartier nu prea ai opțiuni la acest capitol. Cu toate acestea, imediat sub limita sudică a cartierului, la granița dintre Gruia și zona Centrală (reprezentată de Strada Horea), se găsesc trei sucursale bancare: una din rețeaua BCR, o Banca Transilvania, alături de un sediu Raiffeisen Bank. Consultă harta și află unde sunt localizate și alte bănci sau ATM-uri în cartierul Dâmbul Rotund:
Înainte să pleci...
Ești sigur că ai văzut și aceste proprietăți?
410.000 €
Cluj-Napoca, Dâmbul Rotund
4 camere
170 mp
Duplex
359.000 €
Cluj-Napoca, Dâmbul Rotund
4 camere
195 mp
445 mp teren
410.000 €
Cluj-Napoca, Dâmbul Rotund
6 camere
170 mp
250 mp teren
Creează alertă
Salvează căutarea ca să primești pe email ultimele anunțuri publicate
Duplexuri cu 4+ camere de vânzare în zona Dâmbul Rotund, Cluj-Napoca
Cere detalii prin email
*
*
*
*
Detaliile tale de contact vor fi partajate cu Taboo Imobiliare
Preț total1.927.720 RON (378.095 €)
Costuri cu achiziția15.783 RON
Preț de achiziție1.911.937 RON
Costuri cu achiziția15.783 RON
Comision agenție Întreabă agenţia
Onorariu notarial12.915 RON
Taxă înscriere OCPI2.868 RON
Preț de achiziție1.911.937 RON
Preț locuință1.911.937 RON
TVA 0%Inclus în prețul cerut
Cost total308.973 RON (60.600 €)
Avans (15%)286.791 RON
Cost achitat în prima lună3.694 RON
Costuri cu achiziția18.488 RON
Cost achitat în prima lună3.694 RON
Comision analiză dosar
400 RON - 900 RON
Taxă evaluare imobil(până la)
900 RON
Rata lunară (variabilă)8.517 RON
Asigurare anuală imobil1.912 RON
Arhivă electronică102 RON
Poliță PAD130 RON
Asigurare de viață/lună Costul este variabil. În funcție de banca aleasă, procentul variază între 0.0259% și 0.035% din soldul creditului.
Costuri cu achiziția18.488 RON
Comision agenție Întreabă agenţia
Onorariu notarial12.915 RON
Taxă întabulare OCPI2.868 RON
Autentificare contract credit2.705 RON
Preț de achiziție1.911.937 RON
Preț locuință1.911.937 RON
TVA 0%Inclus în prețul cerut
Preț de achiziție1.911.937 RON
Preț locuință1.911.937 RON
TVA 0%
Inclus în prețul cerut
Avans minim1.305.216 RON
Credit pe 30 de ani606.722 RON
Cost achitat în prima lună
Taxa evaluare imobil(până la)
900 RON
Rata lunară (variabilă)4.263 RON
Depozit colateral12.789 RON
Comision de garantare FNGCIMM159 RON
Asigurare anuală imobil1.912 RON
Poliță PAD130 RON
Tarif arhivă electronică102 RON
Costuri adiționale2.052 RON + taxe notariale
Asigurare viață și complexă (opțională)Costul este variabil. În funcție de banca aleasă, procentul variază între 0.0259% și 0.035% din soldul creditului
Onorariu notarialconform tarif notarial
Taxă întabulare OCPI2.052 RON
i
Toate valorile de mai sus sunt estimative și nu reprezintă în mod obligatoriu costurile exacte pe care le veți primi de la companiile/instituțiile prin care veți încheia tranzacția.