Duplex cu 445 mp teren!
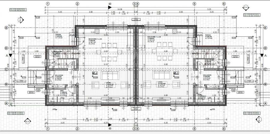
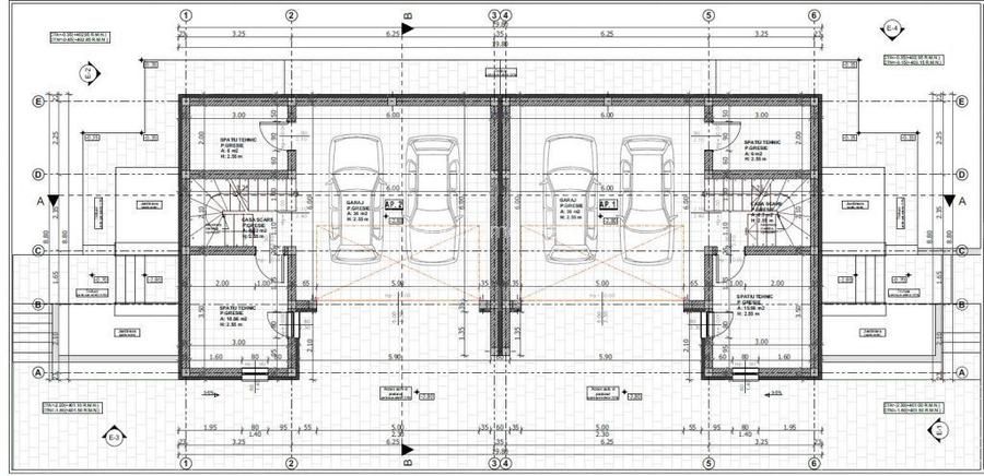
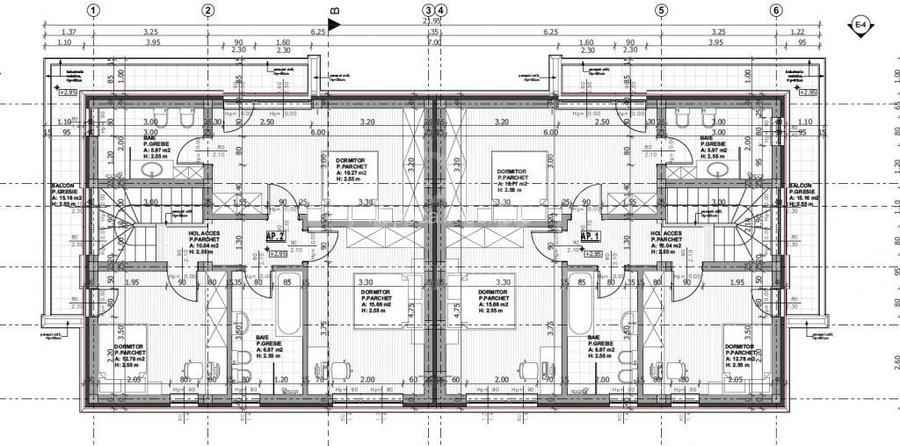
Imobilul este dispus pe 3 niveluri: S + P + E, avand o suprafata individuala utila de 195 mp, plus terasa acoperita de 7,3 mp si balcoane in suprafata de 15 mp. Unitatile sunt separate intre ele prin pereti dubli (25cm).
Compartimentarea este urmatoarea:
• Demisol: Garaj pentru 2 masini, 2 spatii tehnice
• Parter: Terasa, Hol acces, Bucatarie, Baie, Living cu loc de luat masa
• Etaj: Dormitor de matrimoniu cu baie proprie, 2 Dormitoare, Baie, balcon cu priveliste inspre oras + pod utilizabil.
Structura imobilului va fi din zidarie de caramida de 25 cm, polistiren de 15 cm, tamplarie termoizolanta, geamuri termopan cu 7 camere.
Unitate locativa se va preda la stadiul de semifinisat avand centrala termica proprie, incalzire prin pardoseala pe toate zonele, instalatiile electrice si sanitare trase pe pozitie, acoperis din tigla, iar exteriorul amenajat. Imobilul va corespunde standardelor NZEB.
Suprafata de teren aferenta este de 445 mp(incluzand amprenta casei).
Termene de finalizare:
Stadiu de rosu: decembrie 2025
Extrase CF individuale: septembrie 2026
Pentru mai multe detalii despre aceasta proprietate, contactati-ne cat mai repede pentru a putea stabili o vizionare.
Echipa Napoca Imobiliare
ID oferta: 155764
Sediul central - Timișoara
Bulevardul Victor Babeș nr. 2, 300230, Timișoara, România
Tel: +40.374.40.44.98 / Fax: +40.256.401.179
Email: suport@imobiliare.ro
Luni - Vineri 08:00 - 20:00
Punct de lucru - București: Iride Business Park, Bld. Dimitrie
Pompeiu 9-9A, Clădirea B2B,
020335, Sector 2, București, România
CONTACT
Sediul central - Timișoara
Bulevardul Victor Babeș nr. 2, 300230, Timișoara, România
Tel: +40.374.40.44.98 / Fax: +40.256.401.179
Email: suport@imobiliare.ro
Luni - Vineri 08:00 - 20:00
Punct de lucru - București: Iride Business Park, Bld. Dimitrie
Pompeiu 9-9A, Clădirea B2B,
020335, Sector 2, București, România
Sună acum și cere detalii sau programează o vizionare.
Cere detalii prin email
*
*
*
*
Stații autobuz
Gradinițe
Școli
Supermarket
Parcări
Parcuri
Terenuri sport
Restaurant
Bancă
Livezeni
aprox.
1148 m
Statia FIMARO, Linia 31
aprox.
1151 m
Soarelui
aprox.
1177 m
Tudor Vladimirescu Nord
aprox.
1184 m
Statia T.Vladimirescu, Linia 31
aprox.
1194 m
Tudor Vladimirescu Sud
aprox.
1216 m
Statia T.Vladimirescu 2, Linia 31
aprox.
1237 m
Statia Calea Baciului, Linia 31
aprox.
1310 m
Statia Fagaras, Linia 31
aprox.
1321 m
Fagaras
aprox.
1324 m
Valea Seaca
aprox.
1338 m
Trandafirilor
aprox.
1398 m
Statia Trandafirilor, Linia 31
aprox.
1405 m
Statia Calea Baciului 2, Linia 31
aprox.
1428 m
Calea Baciului
aprox.
1434 m
Gradinita Neghinita
aprox.
1098 m
Grăd.Neghinițăstr. 1
aprox.
1138 m
Grăd.Neghinițăstr. 2
aprox.
1443 m
Grăd.Neghiniță
aprox.
1546 m
Școala de Agenți de Poliție "Septimiu Mureșan" Cluj Napoca
aprox.
1395 m
Colegiul Național George Barițiu
aprox.
1427 m
Scoala generala nr. 7 / Emil Isac
aprox.
1495 m
Scoala Generala si Liceul Waldorf
aprox.
1590 m
Lidl
aprox.
1239 m
Parcare pentru clienti cu plata
aprox.
1192 m
Parcare pentru clienti cu plata
aprox.
1709 m
Parcare
aprox.
1749 m
Parcare
aprox.
1818 m
Parcare
aprox.
1825 m
Parcare pentru clienti
aprox.
1874 m
Parc
aprox.
1158 m
Parcul CFR
aprox.
1800 m
Parc
aprox.
1839 m
Pădurea Orașului (Lomb)
aprox.
1861 m
Muzeul Etnografic Cluj (en)
aprox.
1871 m
Fabrica de Sport
aprox.
1401 m
Teren sportiv
aprox.
1406 m
Teren sportiv
aprox.
1420 m
Teren sportiv
aprox.
1451 m
Teren sportiv
aprox.
1468 m
Teren sportiv
aprox.
1495 m
suson farm (en)
aprox.
777 m
Ilinca
aprox.
1256 m
Restaurant
aprox.
1286 m
Hotel Panorama (en)
aprox.
1647 m
La Casa
aprox.
1904 m
Pralina
aprox.
1941 m
Banca Transilvania
aprox.
1737 m
Banca Transilvania
aprox.
1740 m
BRD
aprox.
1855 m
BRD
aprox.
1855 m
Printre principalele artere care străbat această zonă a Clujului se numără, în partea de sud, strada Septimiu Mureșan (aceasta merge, pe bună parte din lungimea sa, paralel cu râul Nadăș); în centrul cartierului se află Strada Dâmbul Rotund "“ de unde îi vine, de fapt, și numele; în nord, Strada Gheorghe Sion și Strada Viile Dâmbul Rotund marchează, practic, limita nordică a cartierului. Comparativ cu alte zone ale Clujului, Dâmbul Rotund este, pe alocuri, destul de deficitar în ceea ce privește infrastructura rutieră. Deși este deservit, ca și alte zone clujene, de o serie de mijloace de transport în comun, zona de nord a cartierului ar necesita extinderea liniilor parcurse de acestea. Dacă vrei să cumperi o proprietate aici, interesează-te, așadar, ce distanță ai de parcurs până la cele mai apropiate stații.
Dacă ești părinte "“ sau deocamdată doar îți dorești să devii "“, cu siguranță că, atunci când vine vorba de alegerea unei locuințe, un aspect important la care te gândești este reprezentat de oportunitățile de educație disponibile într-o zonă sau alta. În această privință, poți să stai liniștit: în Dâmbul Rotund se găsesc, ca și în celelalte subdiviziuni ale orașului de pe Someș, mai multe unități de învățământ. O școală cu tradiție din cartier este Școala Gimnazială "Emil Isac", situată chiar în apropiere de Strada Dâmbul Rotund, din zona centrală. În ceea ce privește oportunitățile de continuare a studiilor după liceu, de menționat este Școala de Agenți de Poliție "Septimiu Mureșan" "“ localizată în zona de sud a cartierului, dar dincolo de cursul râului Nadăș.
Ca și în Gruia, în Dâmbul Rotund nu există, momentan, un mall și nici un hipermarket (lucru cât se poate de firesc, de altfel, ținând cont de faptul că este vorba de un cartier mărginaș și cu o densitate a populației relativ redusă). Locuitorii acestei zone nu sunt, însă, lipsiți de alternative când vine vorba de cumpărături "“ astfel, pentru nevoile de zi cu zi există o serie de magazine de dimensiuni mai reduse, dintre care unele afiliate unor rețele internaționale. Chiar dacă nu strict între granițele cartierului, opțiuni există și pentru aceia care sunt pasionați de shopping. Fără prea mare efort, aceștia pot ajunge rapid în zona Centrală a orașului, unde pot vizita numeroasele magazine existente în materie de fashion (și nu numai).
Dacă ai "“ sau intenționezi să-ți achiziționezi "“ o mașină, parcarea nu ar trebui să reprezinte, în mod normal, o problemă, dată fiind densitatea redusă a populației din acest cartier. Dacă dorești, totuși, să închiriezi un spațiu al tău de la autoritățile locale, te poți interesa la sediul central al Primăriei Clujului (amplasat pe Strada Moților, nr. 3).
Spre deosebire de locuitorii altor zone ale Clujului, cei din Dâmbul Rotund nu au la dispoziție un parc în toată puterea cuvântului, cartierul fiind, în general, deficitar și la capitolul locuri de joacă pentru copii. Totuși, având în vedere multitudinea zonelor verzi, poți spera să găsești câteva trasee bune de plimbare. Dacă ești pasionat de sport, iar mersul pe jos și joggingul nu sunt suficiente pentru tine, în Dâmbul Rotund găsești o oportunitate importantă, cunoscută localnicilor sub numele "Fabrica de Sport". Amplasat în sudul cartierului, în fosta zonă industrială, acesta este considerat a fi unul dintre cele mai moderne complexuri sportive din oraș, fiind deschis atât amatorilor de fotbal, cât și celor de fitness, aerobic, kickboxing etc.
În afară de câteva fast food-uri de cartier, locuitorii cartierului Dâmbul Rotund beneficiază, în apropierea casei, și de câteva oportunități demne de luat în seamă la capitolul restaurante. De menționat este restaurantul "Stejarul", amplasat pe Strada Corneliu Coposu, nr. 95, ce dispune de terasă și oferă și servicii de livrare la domiciliu, dar și restaurantul "Fabrica", de pe Strada Tudor Vladimirescu, nr. 22, unde pot fi organizate și evenimente. Pentru a beneficia de o gamă mai largă de opțiuni pentru ieșirile în oraș cu prietenii, locuitorii acestui cartier au la dispoziție, desigur, și zona Centrală.
Dacă ai nevoie să efectuezi o operațiune bancară, trebuie să știi că strict între granițele acestui cartier nu prea ai opțiuni la acest capitol. Cu toate acestea, imediat sub limita sudică a cartierului, la granița dintre Gruia și zona Centrală (reprezentată de Strada Horea), se găsesc trei sucursale bancare: una din rețeaua BCR, o Banca Transilvania, alături de un sediu Raiffeisen Bank. Consultă harta și află unde sunt localizate și alte bănci sau ATM-uri în cartierul Dâmbul Rotund:
Înainte să pleci...
Ești sigur că ai văzut și aceste proprietăți?
350.000 €
Cluj-Napoca, Dâmbul Rotund
4 camere
127 mp
164 mp teren
361.788 €
298.999 € +TVA
Cluj-Napoca, Dâmbul Rotund
5 camere
244 mp
131 mp teren
362.879 €
299.900 € +TVA
Cluj-Napoca, Dâmbul Rotund
5 camere
229 mp
250 mp teren
Creează alertă
Salvează căutarea ca să primești pe email ultimele anunțuri publicate
Duplexuri cu 4+ camere de vânzare în zona Dâmbul Rotund, Cluj-Napoca
Cere detalii prin email
*
*
*
*
Detaliile tale de contact vor fi partajate cu Napoca Imobiliare