WAXUS IMOBILIARE vă propune spre vânzare un duplex în construcție, situat în Dâmbul Rotund, într-un ansamblu rezidențial nou, cu acces rapid către centrul orașului.
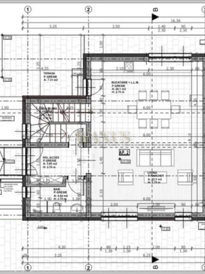
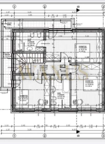
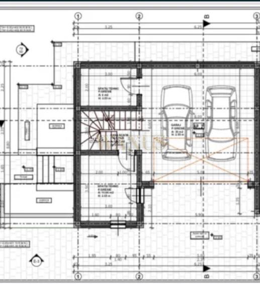
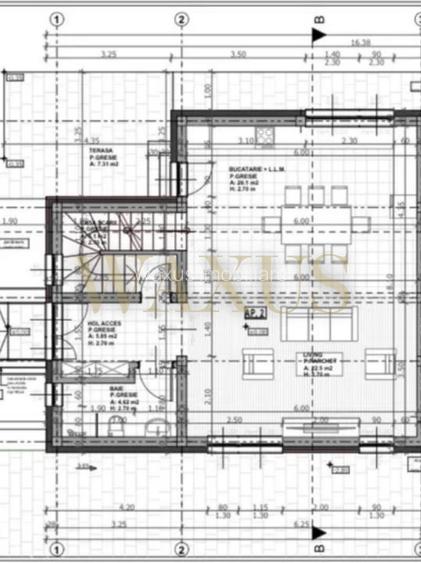
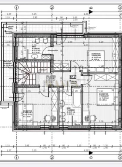
Fiecare unitate are o suprafață utilă de 195 mp, la care se adaugă o terasă acoperită de 7,3 mp și balcoane în suprafață de 15 mp, fiind dispusă pe S+P+E. Compartimentarea este eficientă și bine gândită. La demisol se regăsesc garajul pentru 2 mașini și spațiile tehnice. La parter se află livingul cu zonă de dining, bucătăria, baia, holul și terasa. La etaj sunt dormitorul matrimonial cu baie proprie, două dormitoare, o baie și balcon cu priveliște spre oraș, plus pod utilizabil.
Construcția este realizată din cărămidă de 25 cm, izolație de 15 cm și tâmplărie termoizolantă cu 7 camere. Imobilul se predă la stadiul de semifinisat, cu încălzire în pardoseală, centrală proprie, instalații electrice și sanitare trase pe poziție și exterior amenajat, respectând standardele NZEB.
Suprafața terenului este de 180 mp pentru Corpul 1 și 445 mp pentru Corpul 2, la care se adaugă drum comun de acces.
Prețurile sunt de 319.000 euro pentru Corpul 1 și 359.000 euro pentru Corpul 2.
Termenul de finalizare este vara anului 2026, iar extrasele CF individuale vor fi disponibile în septembrie 2026.
ID EXTERN: P154974
Citește mai mult
Citește mai puțin
Nemobilat
Centrală proprie
Încălzire prin pardoseală
1 Parcare
Bine întreținut (Bună)
Sediul central - Timișoara
Bulevardul Victor Babeș nr. 2, 300230, Timișoara, România
Tel: +40.374.40.44.98 / Fax: +40.256.401.179
Email: suport@imobiliare.ro
Luni - Vineri 08:00 - 20:00
Punct de lucru - București: Iride Business Park, Bld. Dimitrie
Pompeiu 9-9A, Clădirea B2B,
020335, Sector 2, București, România
CONTACT
Sediul central - Timișoara
Bulevardul Victor Babeș nr. 2, 300230, Timișoara, România
Tel: +40.374.40.44.98 / Fax: +40.256.401.179
Email: suport@imobiliare.ro
Luni - Vineri 08:00 - 20:00
Punct de lucru - București: Iride Business Park, Bld. Dimitrie
Pompeiu 9-9A, Clădirea B2B,
020335, Sector 2, București, România
Sună acum și cere detalii sau programează o vizionare.
Nu rata ocazia să afli mai multe!
Sună acum și cere detalii sau programează o vizionare.
Cere detalii prin email
*
*
*
*
Stații autobuz
Gradinițe
Școli
Supermarket
Parcări
Parcuri
Terenuri sport
Farmacie
Restaurant
Cafenea
Bar
Bancă
Tudor Vladimirescu Nord
aprox.
706 m
Statia T.Vladimirescu, Linia 31
aprox.
707 m
Livezeni
aprox.
713 m
Statia FIMARO, Linia 31
aprox.
717 m
Tudor Vladimirescu Sud
aprox.
727 m
Statia T.Vladimirescu 2, Linia 31
aprox.
741 m
Soarelui
aprox.
744 m
Statia Calea Baciului, Linia 31
aprox.
958 m
Valea Seaca
aprox.
990 m
Statia Fagaras, Linia 31
aprox.
1037 m
Fagaras
aprox.
1047 m
Statia Calea Baciului 2, Linia 31
aprox.
1092 m
Bariera CFR Nord
aprox.
1097 m
Calea Baciului
aprox.
1098 m
Bariera CFR
aprox.
1109 m
Gradinita Neghinita
aprox.
673 m
Grăd.Neghinițăstr. 1
aprox.
983 m
Grăd.Neghinițăstr. 2
aprox.
1096 m
Grăd.Neghiniță
aprox.
1342 m
Grăd.Bambi str.5
aprox.
1792 m
Școala de Agenți de Poliție "Septimiu Mureșan" Cluj Napoca
aprox.
1084 m
Colegiul Național George Barițiu
aprox.
1315 m
Scoala generala nr. 7 / Emil Isac
aprox.
1398 m
Scoala Generala si Liceul Waldorf
aprox.
1430 m
Liceul Teologic Baptist "Emanuel"
aprox.
1877 m
Liceul Teologic Emanuel
aprox.
1896 m
Scoala Speciala pentru Deficienti de Auz Nr. 2
aprox.
1979 m
Lidl
aprox.
791 m
Parcare pentru clienti cu plata
aprox.
746 m
Parcare
aprox.
1243 m
Parcare
aprox.
1320 m
Parcare pentru clienti cu plata
aprox.
1412 m
Parcare pentru clienti
aprox.
1585 m
Parcare
aprox.
1623 m
Parcare privata
aprox.
1871 m
Parcare
aprox.
1877 m
Parcare privata
aprox.
1889 m
Parcare privata
aprox.
1899 m
Parcare privata
aprox.
1933 m
Parcare pentru clienti
aprox.
1947 m
Parcare
aprox.
1949 m
Parcare privata
aprox.
1965 m
Parcare privata
aprox.
1990 m
Parc
aprox.
729 m
Muzeul Etnografic Cluj (en)
aprox.
1371 m
Parcul CFR
aprox.
1459 m
Parc
aprox.
1508 m
Parc
aprox.
1909 m
Parc
aprox.
1933 m
Fabrica de Sport
aprox.
904 m
Teren sportiv
aprox.
1117 m
Teren sportiv
aprox.
1125 m
Teren sportiv
aprox.
1359 m
Teren sportiv
aprox.
1381 m
Teren sportiv
aprox.
1398 m
CFR 1907 Cluj
aprox.
1807 m
Farmacia Panaceea
aprox.
1999 m
Ilinca
aprox.
835 m
suson farm (en)
aprox.
899 m
Restaurant
aprox.
956 m
Hotel Panorama (en)
aprox.
1349 m
La Casa
aprox.
1554 m
Pralina
aprox.
1612 m
Vila Lupsa
aprox.
1880 m
Terasa "Hoia"
aprox.
1901 m
Sunset Hill Rosetti
aprox.
1904 m
Cantina Hoia
aprox.
1912 m
Bookla
aprox.
1971 m
Las Vegas Caffe
aprox.
1981 m
Banca Transilvania
aprox.
1600 m
Banca Transilvania
aprox.
1604 m
BRD
aprox.
1682 m
BRD
aprox.
1682 m
BT
aprox.
1905 m
Banca Transilvania
aprox.
2000 m
Printre principalele artere care străbat această zonă a Clujului se numără, în partea de sud, strada Septimiu Mureșan (aceasta merge, pe bună parte din lungimea sa, paralel cu râul Nadăș); în centrul cartierului se află Strada Dâmbul Rotund "“ de unde îi vine, de fapt, și numele; în nord, Strada Gheorghe Sion și Strada Viile Dâmbul Rotund marchează, practic, limita nordică a cartierului. Comparativ cu alte zone ale Clujului, Dâmbul Rotund este, pe alocuri, destul de deficitar în ceea ce privește infrastructura rutieră. Deși este deservit, ca și alte zone clujene, de o serie de mijloace de transport în comun, zona de nord a cartierului ar necesita extinderea liniilor parcurse de acestea. Dacă vrei să cumperi o proprietate aici, interesează-te, așadar, ce distanță ai de parcurs până la cele mai apropiate stații.
Dacă ești părinte "“ sau deocamdată doar îți dorești să devii "“, cu siguranță că, atunci când vine vorba de alegerea unei locuințe, un aspect important la care te gândești este reprezentat de oportunitățile de educație disponibile într-o zonă sau alta. În această privință, poți să stai liniștit: în Dâmbul Rotund se găsesc, ca și în celelalte subdiviziuni ale orașului de pe Someș, mai multe unități de învățământ. O școală cu tradiție din cartier este Școala Gimnazială "Emil Isac", situată chiar în apropiere de Strada Dâmbul Rotund, din zona centrală. În ceea ce privește oportunitățile de continuare a studiilor după liceu, de menționat este Școala de Agenți de Poliție "Septimiu Mureșan" "“ localizată în zona de sud a cartierului, dar dincolo de cursul râului Nadăș.
Ca și în Gruia, în Dâmbul Rotund nu există, momentan, un mall și nici un hipermarket (lucru cât se poate de firesc, de altfel, ținând cont de faptul că este vorba de un cartier mărginaș și cu o densitate a populației relativ redusă). Locuitorii acestei zone nu sunt, însă, lipsiți de alternative când vine vorba de cumpărături "“ astfel, pentru nevoile de zi cu zi există o serie de magazine de dimensiuni mai reduse, dintre care unele afiliate unor rețele internaționale. Chiar dacă nu strict între granițele cartierului, opțiuni există și pentru aceia care sunt pasionați de shopping. Fără prea mare efort, aceștia pot ajunge rapid în zona Centrală a orașului, unde pot vizita numeroasele magazine existente în materie de fashion (și nu numai).
Dacă ai "“ sau intenționezi să-ți achiziționezi "“ o mașină, parcarea nu ar trebui să reprezinte, în mod normal, o problemă, dată fiind densitatea redusă a populației din acest cartier. Dacă dorești, totuși, să închiriezi un spațiu al tău de la autoritățile locale, te poți interesa la sediul central al Primăriei Clujului (amplasat pe Strada Moților, nr. 3).
Spre deosebire de locuitorii altor zone ale Clujului, cei din Dâmbul Rotund nu au la dispoziție un parc în toată puterea cuvântului, cartierul fiind, în general, deficitar și la capitolul locuri de joacă pentru copii. Totuși, având în vedere multitudinea zonelor verzi, poți spera să găsești câteva trasee bune de plimbare. Dacă ești pasionat de sport, iar mersul pe jos și joggingul nu sunt suficiente pentru tine, în Dâmbul Rotund găsești o oportunitate importantă, cunoscută localnicilor sub numele "Fabrica de Sport". Amplasat în sudul cartierului, în fosta zonă industrială, acesta este considerat a fi unul dintre cele mai moderne complexuri sportive din oraș, fiind deschis atât amatorilor de fotbal, cât și celor de fitness, aerobic, kickboxing etc.
Dacă te gândești să te muți în Dâmbul Rotund, poate că vei fi dezamăgit să afli că aici nu există niciun spital de stat. Nu e cazul, însă, să te descurajezi: având în vedere proximitatea față de Centru, pentru serviciile medicale de urgență poți ajunge rapid la multitudinea de spitale care se găsesc în "inima" orașului: Spitalul Clinic Județean de Urgență Cluj-Napoca, Spitalul Clinic Municipal Cluj-Napoca, Spitalul Universitar C.F. Cluj-Napoca etc. Nu sunt de neglijat, desigur, nici cele câteva cabinete medicale particulare ce pot fi găsite în cartier "“ pe acest segment vei găsi atât câteva opțiuni în materie de medicină de familie, cât și în ceea ce privește anumite servicii medicale de specialitate (stomatologie, spre exemplu).
În afară de câteva fast food-uri de cartier, locuitorii cartierului Dâmbul Rotund beneficiază, în apropierea casei, și de câteva oportunități demne de luat în seamă la capitolul restaurante. De menționat este restaurantul "Stejarul", amplasat pe Strada Corneliu Coposu, nr. 95, ce dispune de terasă și oferă și servicii de livrare la domiciliu, dar și restaurantul "Fabrica", de pe Strada Tudor Vladimirescu, nr. 22, unde pot fi organizate și evenimente. Pentru a beneficia de o gamă mai largă de opțiuni pentru ieșirile în oraș cu prietenii, locuitorii acestui cartier au la dispoziție, desigur, și zona Centrală.
Dacă ai nevoie să efectuezi o operațiune bancară, trebuie să știi că strict între granițele acestui cartier nu prea ai opțiuni la acest capitol. Cu toate acestea, imediat sub limita sudică a cartierului, la granița dintre Gruia și zona Centrală (reprezentată de Strada Horea), se găsesc trei sucursale bancare: una din rețeaua BCR, o Banca Transilvania, alături de un sediu Raiffeisen Bank. Consultă harta și află unde sunt localizate și alte bănci sau ATM-uri în cartierul Dâmbul Rotund:
Înainte să pleci...
Ești sigur că ai văzut și aceste proprietăți?
339.990 €
Cluj-Napoca, Dâmbul Rotund
4 camere
166 mp
260 mp teren
349.999 €
Cluj-Napoca, Dâmbul Rotund
4 camere
156 mp
235 mp teren
330.000 €
Cluj-Napoca, Dâmbul Rotund
4 camere
140 mp
300 mp teren
Creează alertă
Salvează căutarea ca să primești pe email ultimele anunțuri publicate
Duplexuri cu 4+ camere de vânzare în zona Dâmbul Rotund, Cluj-Napoca
Cere detalii prin email
*
*
*
*
Detaliile tale de contact vor fi partajate cu Waxus Imobiliare