Blitz va propune o oportunitate rara: casa tip duplex aflata in faza de proiect, oferind viitorului proprietar posibilitatea de a aduce modificari si personalizari inca din faza de constructie. Situata intr-o zona exclusiv rezidentiala din Dambul Rotund, cu strazi asfaltate si acces rapid spre centrul orasului, proprietatea beneficiaza de o panorama spectaculoasa asupra orasului.
Imobilul face parte dintr-un ansamblu modern de case si este construit la cele mai noi standarde NZEB (Nearly Zero Energy Building), ceea ce inseamna un consum de energie extrem de redus, confort termic sporit, izolatie eficienta si costuri de intretinere minime pe termen lung.
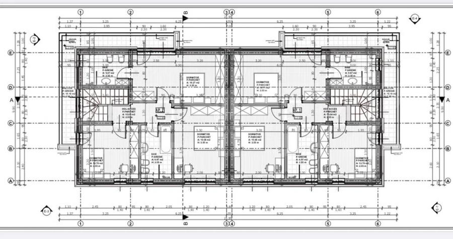
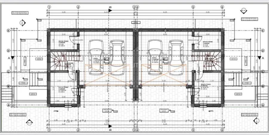
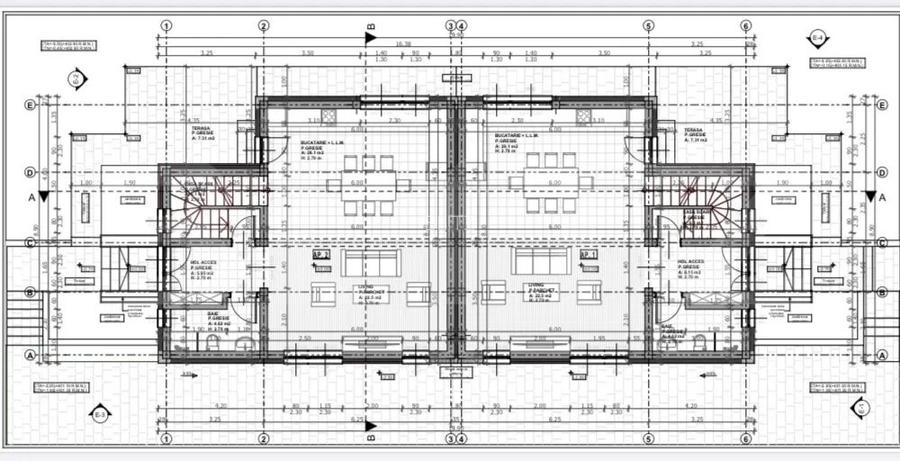
Date tehnice:
-Suprafata utila: 195 mp + terasa acoperita de 7,3 mp + balcoane 15 mp
-Teren: 445 mp aferent acestei unitati
-Regim de inaltime: S + P + E
-Separare completa intre unitati prin pereti dubli de 25 cm
Compartimentare inteligenta:
-Demisol: Garaj generos pentru 2 autoturisme, 2 spatii tehnice
-Parter: Hol, bucatarie, baie, living cu zona de dining, acces la terasa
-Etaj: Dormitor matrimonial cu baie proprie, doua dormitoare secundare, baie comuna, balcon cu priveliste panoramica
-Pod utilizabil
Dotari si finisaje (predare semifinisat):
-Zidarie din caramida de 25 cm si izolatie exterioara cu polistiren de 15 cm
-Tamplarie performanta cu geamuri termopan (7 camere)
-Incalzire in pardoseala pe toate nivelurile, centrala termica proprie pe gaz
-Instalatii electrice si sanitare trase pe pozitie
-Acoperis din tigla, fatada exterioara complet amenajata
Pret Corp 2 (teren 445 mp): 375.000 euro
Termen estimat de finalizare: august 2026
Casa isi asteapta viitorul proprietar la vizionare.
Cod oferta / ID BLITZ: P146799
Sediul central - Timișoara
Bulevardul Victor Babeș nr. 2, 300230, Timișoara, România
Tel: +40.374.40.44.98 / Fax: +40.256.401.179
Email: suport@imobiliare.ro
Luni - Vineri 08:00 - 20:00
Punct de lucru - București: Iride Business Park, Bld. Dimitrie
Pompeiu 9-9A, Clădirea B2B,
020335, Sector 2, București, România
CONTACT
Sediul central - Timișoara
Bulevardul Victor Babeș nr. 2, 300230, Timișoara, România
Tel: +40.374.40.44.98 / Fax: +40.256.401.179
Email: suport@imobiliare.ro
Luni - Vineri 08:00 - 20:00
Punct de lucru - București: Iride Business Park, Bld. Dimitrie
Pompeiu 9-9A, Clădirea B2B,
020335, Sector 2, București, România
Sună acum și cere detalii sau programează o vizionare.
Cere detalii prin email
*
*
*
*
Stații autobuz
Gradinițe
Școli
Universități
Supermarket
Parcări
Parcuri
Terenuri sport
Farmacie
Spital
Restaurant
Pub
Bar
Cafenea
Bancă
Tudor Vladimirescu Nord
aprox.
113 m
Statia T.Vladimirescu, Linia 31
aprox.
161 m
Tudor Vladimirescu Sud
aprox.
167 m
Statia T.Vladimirescu 2, Linia 31
aprox.
229 m
Statia Calea Baciului, Linia 31
aprox.
399 m
Valea Seaca
aprox.
425 m
Statia Calea Baciului 2, Linia 31
aprox.
517 m
Calea Baciului
aprox.
524 m
Cartier Baciu
aprox.
651 m
Statia TETAROM , Linia 37
aprox.
687 m
Statia Cartier Baciu, Linia 31
aprox.
690 m
Bariera CFR Nord
aprox.
747 m
Jupiter
aprox.
756 m
Cartier Baciu
aprox.
756 m
Bariera CFR
aprox.
760 m
Gradinita Neghinita
aprox.
154 m
Grăd.Neghinițăstr. 2
aprox.
498 m
Grăd.Mica Sirenă2
aprox.
1395 m
Grăd.Neghinițăstr. 1
aprox.
1497 m
Grăd.Mica Sirenă
aprox.
1714 m
FasTracKids Cluj-Napoca
aprox.
1727 m
Grăd.Neghiniță
aprox.
1736 m
Gradinita Mica Sirena
aprox.
1738 m
Grăd.Bambi str.5
aprox.
1824 m
Grăd.Mica Sirenă1
aprox.
1928 m
Gradinita Steluta Fermecata
aprox.
1989 m
Școala de Agenți de Poliție "Septimiu Mureșan" Cluj Napoca
aprox.
1371 m
Scoala Generala nr.15
aprox.
1617 m
Liceul Teoretic Onisifor Ghibu
aprox.
1617 m
Liceul Teoretic Onisifor Ghibu
aprox.
1711 m
Colegiul Național George Barițiu
aprox.
1819 m
Scoala Generala si Liceul Waldorf
aprox.
1865 m
Scoala Speciala pentru Deficienti de Auz Nr. 2
aprox.
1879 m
Liceul Teologic Baptist "Emanuel"
aprox.
1898 m
Scoala generala nr. 7 / Emil Isac
aprox.
1905 m
Liceul Teologic Emanuel
aprox.
1916 m
Institutul de cercetari in chimie Raluca Ripan
aprox.
1838 m
Lidl
aprox.
49 m
OUTLET
aprox.
1688 m
Parcare pentru clienti cu plata
aprox.
48 m
Parcare
aprox.
724 m
Parcare
aprox.
830 m
Parcare pentru clienti cu plata
aprox.
840 m
Parcare pentru clienti
aprox.
1002 m
Parcare privata
aprox.
1403 m
Parcare privata
aprox.
1406 m
Parcare privata
aprox.
1407 m
Parcare privata
aprox.
1408 m
Parcare privata
aprox.
1428 m
Parcare
aprox.
1445 m
Parcare privata
aprox.
1455 m
Parcare
aprox.
1489 m
Parcare
aprox.
1505 m
Parcare
aprox.
1512 m
Parc
aprox.
115 m
Muzeul Etnografic Cluj (en)
aprox.
737 m
Parc
aprox.
1358 m
Parc
aprox.
1494 m
Parc
aprox.
1524 m
Parc
aprox.
1531 m
Parc
aprox.
1589 m
Parc
aprox.
1594 m
Părculeț
aprox.
1600 m
Parcul CFR
aprox.
1611 m
Parc
aprox.
1617 m
Parc
aprox.
1622 m
Parc
aprox.
1641 m
Parc
aprox.
1644 m
Parc
aprox.
1671 m
Fabrica de Sport
aprox.
663 m
Teren sportiv
aprox.
1409 m
Teren sportiv
aprox.
1451 m
Teren sportiv
aprox.
1583 m
Teren sportiv
aprox.
1684 m
Teren sportiv
aprox.
1860 m
Teren sportiv
aprox.
1875 m
CFR 1907 Cluj
aprox.
1886 m
Teren sportiv
aprox.
1901 m
Teren sportiv
aprox.
1905 m
Teren sportiv
aprox.
1976 m
Farmacia Panaceea
aprox.
1423 m
Farmacia Grigorescu
aprox.
1652 m
Farmacia Herba
aprox.
1847 m
Viva
aprox.
1946 m
Ropharma
aprox.
1996 m
Policlinica Grigorescu
aprox.
1647 m
Spitalul Clinic de Urgenta pentru copii Cluj-Napoca Neonatologie-prematuri
aprox.
1999 m
Ilinca
aprox.
156 m
Hotel Panorama (en)
aprox.
787 m
La Casa
aprox.
884 m
Pralina
aprox.
967 m
suson farm (en)
aprox.
1150 m
Restaurant
aprox.
1244 m
Terasa "Hoia"
aprox.
1428 m
Cantina Hoia
aprox.
1438 m
Pizzeria Mamma Mia (en)
aprox.
1484 m
La Luca
aprox.
1638 m
Casa Vikingilor
aprox.
1687 m
Vila Lupsa
aprox.
1707 m
Sunset Hill Rosetti
aprox.
1709 m
Restaurant Lugano
aprox.
1726 m
Fair - Play
aprox.
1809 m
Infinity Games
aprox.
1492 m
Infinity Games
aprox.
1918 m
Admiral
aprox.
1517 m
Las Vegas Caffe
aprox.
1605 m
Geo & Andi
aprox.
1624 m
Infinity Games
aprox.
1688 m
Royal cafe
aprox.
1519 m
Bookla
aprox.
1737 m
PLAN Cafe
aprox.
1775 m
BT
aprox.
1407 m
Banca Transilvania
aprox.
1421 m
BCR
aprox.
1995 m
ING
aprox.
1995 m
Millenium Bank
aprox.
1997 m
Printre principalele artere care străbat această zonă a Clujului se numără, în partea de sud, strada Septimiu Mureșan (aceasta merge, pe bună parte din lungimea sa, paralel cu râul Nadăș); în centrul cartierului se află Strada Dâmbul Rotund "“ de unde îi vine, de fapt, și numele; în nord, Strada Gheorghe Sion și Strada Viile Dâmbul Rotund marchează, practic, limita nordică a cartierului. Comparativ cu alte zone ale Clujului, Dâmbul Rotund este, pe alocuri, destul de deficitar în ceea ce privește infrastructura rutieră. Deși este deservit, ca și alte zone clujene, de o serie de mijloace de transport în comun, zona de nord a cartierului ar necesita extinderea liniilor parcurse de acestea. Dacă vrei să cumperi o proprietate aici, interesează-te, așadar, ce distanță ai de parcurs până la cele mai apropiate stații.
Dacă ești părinte "“ sau deocamdată doar îți dorești să devii "“, cu siguranță că, atunci când vine vorba de alegerea unei locuințe, un aspect important la care te gândești este reprezentat de oportunitățile de educație disponibile într-o zonă sau alta. În această privință, poți să stai liniștit: în Dâmbul Rotund se găsesc, ca și în celelalte subdiviziuni ale orașului de pe Someș, mai multe unități de învățământ. O școală cu tradiție din cartier este Școala Gimnazială "Emil Isac", situată chiar în apropiere de Strada Dâmbul Rotund, din zona centrală. În ceea ce privește oportunitățile de continuare a studiilor după liceu, de menționat este Școala de Agenți de Poliție "Septimiu Mureșan" "“ localizată în zona de sud a cartierului, dar dincolo de cursul râului Nadăș.
Ca și în Gruia, în Dâmbul Rotund nu există, momentan, un mall și nici un hipermarket (lucru cât se poate de firesc, de altfel, ținând cont de faptul că este vorba de un cartier mărginaș și cu o densitate a populației relativ redusă). Locuitorii acestei zone nu sunt, însă, lipsiți de alternative când vine vorba de cumpărături "“ astfel, pentru nevoile de zi cu zi există o serie de magazine de dimensiuni mai reduse, dintre care unele afiliate unor rețele internaționale. Chiar dacă nu strict între granițele cartierului, opțiuni există și pentru aceia care sunt pasionați de shopping. Fără prea mare efort, aceștia pot ajunge rapid în zona Centrală a orașului, unde pot vizita numeroasele magazine existente în materie de fashion (și nu numai).
Dacă ai "“ sau intenționezi să-ți achiziționezi "“ o mașină, parcarea nu ar trebui să reprezinte, în mod normal, o problemă, dată fiind densitatea redusă a populației din acest cartier. Dacă dorești, totuși, să închiriezi un spațiu al tău de la autoritățile locale, te poți interesa la sediul central al Primăriei Clujului (amplasat pe Strada Moților, nr. 3).
Spre deosebire de locuitorii altor zone ale Clujului, cei din Dâmbul Rotund nu au la dispoziție un parc în toată puterea cuvântului, cartierul fiind, în general, deficitar și la capitolul locuri de joacă pentru copii. Totuși, având în vedere multitudinea zonelor verzi, poți spera să găsești câteva trasee bune de plimbare. Dacă ești pasionat de sport, iar mersul pe jos și joggingul nu sunt suficiente pentru tine, în Dâmbul Rotund găsești o oportunitate importantă, cunoscută localnicilor sub numele "Fabrica de Sport". Amplasat în sudul cartierului, în fosta zonă industrială, acesta este considerat a fi unul dintre cele mai moderne complexuri sportive din oraș, fiind deschis atât amatorilor de fotbal, cât și celor de fitness, aerobic, kickboxing etc.
Dacă te gândești să te muți în Dâmbul Rotund, poate că vei fi dezamăgit să afli că aici nu există niciun spital de stat. Nu e cazul, însă, să te descurajezi: având în vedere proximitatea față de Centru, pentru serviciile medicale de urgență poți ajunge rapid la multitudinea de spitale care se găsesc în "inima" orașului: Spitalul Clinic Județean de Urgență Cluj-Napoca, Spitalul Clinic Municipal Cluj-Napoca, Spitalul Universitar C.F. Cluj-Napoca etc. Nu sunt de neglijat, desigur, nici cele câteva cabinete medicale particulare ce pot fi găsite în cartier "“ pe acest segment vei găsi atât câteva opțiuni în materie de medicină de familie, cât și în ceea ce privește anumite servicii medicale de specialitate (stomatologie, spre exemplu).
În afară de câteva fast food-uri de cartier, locuitorii cartierului Dâmbul Rotund beneficiază, în apropierea casei, și de câteva oportunități demne de luat în seamă la capitolul restaurante. De menționat este restaurantul "Stejarul", amplasat pe Strada Corneliu Coposu, nr. 95, ce dispune de terasă și oferă și servicii de livrare la domiciliu, dar și restaurantul "Fabrica", de pe Strada Tudor Vladimirescu, nr. 22, unde pot fi organizate și evenimente. Pentru a beneficia de o gamă mai largă de opțiuni pentru ieșirile în oraș cu prietenii, locuitorii acestui cartier au la dispoziție, desigur, și zona Centrală.
Dacă ai nevoie să efectuezi o operațiune bancară, trebuie să știi că strict între granițele acestui cartier nu prea ai opțiuni la acest capitol. Cu toate acestea, imediat sub limita sudică a cartierului, la granița dintre Gruia și zona Centrală (reprezentată de Strada Horea), se găsesc trei sucursale bancare: una din rețeaua BCR, o Banca Transilvania, alături de un sediu Raiffeisen Bank. Consultă harta și află unde sunt localizate și alte bănci sau ATM-uri în cartierul Dâmbul Rotund:
Înainte să pleci...
Ești sigur că ai văzut și aceste proprietăți?
369.999 €
Cluj-Napoca, Dâmbul Rotund
4 camere
156 mp
235 mp teren
365.000 €
Cluj-Napoca, Dâmbul Rotund
4 camere
166 mp
260 mp teren
195.000 €
Județul Cluj, Chinteni
3 camere
150 mp
700 mp teren
199.000 €
Județul Cluj, Luna de Sus
5 camere
130 mp
400 mp teren
349.000 €
Cluj-Napoca, Dâmbul Rotund
5 camere
210 mp
247 mp teren
169.000 €
Județul Cluj, Gilău
4 camere
100 mp
350 mp teren
Creează alertă
Salvează căutarea ca să primești pe email ultimele anunțuri publicate
Duplexuri cu 4+ camere de vânzare în zona Dâmbul Rotund, Cluj-Napoca
Cere detalii prin email
*
*
*
*
Detaliile tale de contact vor fi partajate cu Blitz
Preț total1.843.859 RON (361.988 €)
Costuri cu achiziția15.221 RON
Preț de achiziție1.828.638 RON
Costuri cu achiziția15.221 RON
Comision agenție Întreabă agenţia
Onorariu notarial12.478 RON
Taxă înscriere OCPI2.743 RON
Preț de achiziție1.828.638 RON
Preț locuință1.828.638 RON
TVA 0%Inclus în prețul cerut
Cost total295.764 RON (58.064 €)
Avans (15%)274.296 RON
Cost achitat în prima lună3.611 RON
Costuri cu achiziția17.857 RON
Cost achitat în prima lună3.611 RON
Comision analiză dosar
400 RON - 900 RON
Taxă evaluare imobil(până la)
900 RON
Rata lunară (variabilă)8.146 RON
Asigurare anuală imobil1.829 RON
Arhivă electronică102 RON
Poliță PAD130 RON
Asigurare de viață/lună Costul este variabil. În funcție de banca aleasă, procentul variază între 0.0259% și 0.035% din soldul creditului.
Costuri cu achiziția17.857 RON
Comision agenție Întreabă agenţia
Onorariu notarial12.478 RON
Taxă întabulare OCPI2.743 RON
Autentificare contract credit2.636 RON
Preț de achiziție1.828.638 RON
Preț locuință1.828.638 RON
TVA 0%Inclus în prețul cerut
Preț de achiziție1.828.638 RON
Preț locuință1.828.638 RON
TVA 0%
Inclus în prețul cerut
Avans minim1.222.488 RON
Credit pe 30 de ani606.150 RON
Cost achitat în prima lună
Taxa evaluare imobil(până la)
900 RON
Rata lunară (variabilă)4.259 RON
Depozit colateral12.777 RON
Comision de garantare FNGCIMM152 RON
Asigurare anuală imobil1.829 RON
Poliță PAD130 RON
Tarif arhivă electronică102 RON
Costuri adiționale1.969 RON + taxe notariale
Asigurare viață și complexă (opțională)Costul este variabil. În funcție de banca aleasă, procentul variază între 0.0259% și 0.035% din soldul creditului
Onorariu notarialconform tarif notarial
Taxă întabulare OCPI1.969 RON
i
Toate valorile de mai sus sunt estimative și nu reprezintă în mod obligatoriu costurile exacte pe care le veți primi de la companiile/instituțiile prin care veți încheia tranzacția.