Unitate locativa cu priveliste panoramica spre oras!
Va propunem spre vanzare o unitate locativa dintr-un duplex, situata in cartierul Grigorescu, una dintre zonele rezidentiale panoramice ale orasului. Imobilul este desfasurat pe doua niveluri, avand o suprafata utila de 245 mp si terase cu suprafata toata de 240 mp, excelent compartimentata astfel:
Parterul impresioneaza printr-un living generos open-space cu bucatarie, cu o suprafata totala de 100 mp, ideal pentru momentele de relaxare in familie sau socializare cu prietenii, avand acces direct pe terasa spatioasa de 117 mp, ce ofera o panorama superba asupra orasului. Tot la parter regasim o baie si casa scarii.
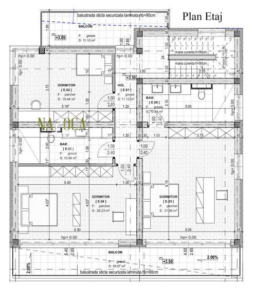
Etajul este dedicat zonei de noapte si ofera doua dormitoare spatioase, deservite de o baie, si un dormitor matrimonial cu baie proprie si dressing. Toate dormitoarele beneficiaza de acces pe balcoane, oferind lumina naturala si privelisti deosebite.
Accesul pe terasa circulabila de pe acoperis, cu o suprafata impresionanta de 120 mp, se face direct din casa scarii, creand un spatiu ideal pentru relaxare, zona de lounge sau chiar gradina suspendata.
Imobilul detine doua locuri de parcare in subteran, precum si spatiu pentru biciclete sau depozitare, acoperind astfel toate nevoile unei familii moderne.
Constructia este realizata din caramida, cu izolatie exterioara de 150 mm, terase hidroizolate, si se preda la stadiul de semifinisat, avand toate instalatiile sanitare si electrice trase pe pozitii, pereti tencuiti si gletuiti. Sistemul de incalzire este cu centrala termica proprie si incalzire prin pardoseala pentru un confort termic ridicat.
Exteriorul imobilului va fi complet finisat: alei pietonale, rampa garaj amenajata, decorativa in culori moderne, gard si porti de acces.
Proprietatea este libera de sarcini, iar predarea este estimata pentru vara anului 2025.
O alegere ideala pentru cei care cauta o locuinta spatioasa, moderna, cu privelisti spectaculoase si acces rapid catre centrul orasului!
Pentru mai multe detalii sau pentru a programa o vizionare, nu ezitati sa ne contactati!
Echipa Napoca Imobiliare
ID oferta: 151403
Sediul central - Timișoara
Bulevardul Victor Babeș nr. 2, 300230, Timișoara, România
Tel: +40.374.40.44.98 / Fax: +40.256.401.179
Email: suport@imobiliare.ro
Luni - Vineri 08:00 - 20:00
Punct de lucru - București: Iride Business Park, Bld. Dimitrie
Pompeiu 9-9A, Clădirea B2B,
020335, Sector 2, București, România
CONTACT
Sediul central - Timișoara
Bulevardul Victor Babeș nr. 2, 300230, Timișoara, România
Tel: +40.374.40.44.98 / Fax: +40.256.401.179
Email: suport@imobiliare.ro
Luni - Vineri 08:00 - 20:00
Punct de lucru - București: Iride Business Park, Bld. Dimitrie
Pompeiu 9-9A, Clădirea B2B,
020335, Sector 2, București, România
Spitalul Clinic de Urgenta pentru copii Cluj-Napoca Neonatologie-prematuri
aprox.
362 m
Policlinica Grigorescu
aprox.
964 m
Cabinet medical universitar
aprox.
1305 m
Clădirea Spitalului de Urgență nefinalizata
aprox.
1808 m
Viva
aprox.
524 m
Ropharma
aprox.
640 m
Viscum
aprox.
670 m
Farmacia Herba
aprox.
769 m
Farmacia Grigorescu
aprox.
1117 m
Farmacia Panaceea
aprox.
1270 m
Cynara
aprox.
1336 m
Donna
aprox.
1379 m
Cariatida Drogherie
aprox.
1383 m
Galenus 2
aprox.
1610 m
Catena
aprox.
1712 m
Farmacia Salvie
aprox.
1860 m
Help Net
aprox.
1891 m
Farmacia Europa
aprox.
1902 m
Farmacia Richter
aprox.
1926 m
Marul de Aur
aprox.
407 m
Admiral
aprox.
758 m
Infinity Games
aprox.
1198 m
Geo & Andi
aprox.
1504 m
Cotton Club
aprox.
1868 m
Las Vegas Caffe
aprox.
1875 m
PLAN Cafe
aprox.
434 m
Royal cafe
aprox.
736 m
Bistro
aprox.
1771 m
bike44
aprox.
1810 m
Infinity Games
aprox.
492 m
Seven
aprox.
690 m
Infinity Games
aprox.
801 m
Uni Sports Bar
aprox.
1702 m
La Luca
aprox.
642 m
Restaurant Disco SUN
aprox.
730 m
Restaurant/disco "Sun"
aprox.
741 m
Pizzeria Mamma Mia (en)
aprox.
769 m
Casa Vikingilor
aprox.
1191 m
Boema
aprox.
1200 m
Restaurant Boema
aprox.
1213 m
Restaurant Ianis
aprox.
1294 m
Nobori Plopilor
aprox.
1304 m
Restaurant Sophia
aprox.
1310 m
Gradina de Vara Pedas
aprox.
1376 m
Restaurant & Pizza Daniel Berar
aprox.
1389 m
Restaurant Boierul
aprox.
1420 m
Restaurant "Sinaia"
aprox.
1425 m
Restaurant Sinaia
aprox.
1441 m
ING
aprox.
573 m
Banca Transilvania
aprox.
630 m
Millenium Bank
aprox.
633 m
BRD
aprox.
644 m
BRS, Banca Transilvania, BCR, UPC
aprox.
647 m
BCR
aprox.
647 m
CEC Bank
aprox.
656 m
Raiffeisen Bank
aprox.
1216 m
Banca Transilvania
aprox.
1263 m
Raiffeisen Bank
aprox.
1310 m
Bancpost
aprox.
1316 m
BRD
aprox.
1317 m
OTP Bank
aprox.
1317 m
BCR
aprox.
1319 m
ING
aprox.
1340 m
Strada Donath este una dintre principalele artere din Grigorescu, străbătându-l, de la sud-vest la est, până la limita cu Gruia "“ după care se continuă cu Strada General Eremia Grigorescu. Alte artere importante sunt și Bulevardul 1 Decembrie 1918, dar și Strada Octavian Goga (în partea de est). Ca și locuitorii din alte zone ale Clujului, cei din Grigorescu au la dispoziție o varietate de mijloace de transport în comun, menite să facă legătura atât între diferite puncte din interiorul cartierului, cât și cu alte zone ale orașului.
Nu vei avea prea mari dificultăți în găsirea unei grădinițe pentru micuțul tău (sau micuții tăi), fie că înclini spre instituțiile de stat sau particulare "“ din cea din urmă categorie de menționat sunt Grădinița "Țăndărică", dar și Grădinița "Patricia". În zonă ai destule opțiuni și în materie de școli și licee, cum ar fi Liceul Teoretic "Onisifor Ghibu". La capitolul instituții de învățământ superior, în Grigorescu se găsește Facultatea de Știința și Ingineria Mediului, parte din Universitatea "Babeș-Bolyai" din Cluj-Napoca. Ca oportunitate de cercetare în domeniul fizicii, în apropiere se află și Institutul Național de Cercetare-Dezvoltare pentru Tehnologii Izotopice și Moleculare (INCDTIM) Cluj-Napoca România.
La fel ca în majoritatea cartierelor clujene, în Grigorescu nu se găsește un mall propriu-zis; pasionații de shopping pot ajunge, însă, cu ușurință, în Plopilor "“ unde, aproape de granița cu Mănășturul și de cea cu Centrul, se află centrul comercial Platinia Shopping Center. În afară de numeroasele supermarketuri din cartier, atât locale, cât și afiliate unor rețele internaționale, în zonă se află și un hipermarket Cora. Amplasat pe Bulevardul 1 Decembrie 1918, aproape de granița cu Plopilor, acesta reprezintă o bună destinație de cumpărături pe segmentul produselor alimentare, băuturi, cosmetice etc.
Pentru cei care au mașină proprie, parcarea "liberă" nu reprezintă neapărat o problemă în cartierul Grigorescu. Cei care vor, totuși, să aibă un loc de parcare închiriat, cu toate actele în regulă, se pot interesa în această privință la sediul Primăriei de cartier, de pe Strada Alexandru Vlahuță, nr. 46-47.
Spre deosebire de alte zone ale Clujului, Grigorescu nu oferă foarte multe opțiuni în materie de parcuri amenajate. Câteva opțiuni ar fi Parcul "14 iulie", din zona de est a cartierului, dar și Parcul "La Butuci" și Parcul "Grigorescu". Tot lângă Canalul Someșului Mic se află și Plaja Grigorescu, special amenajată pentru locuitorii cartierului (și nu numai), ce poate fi o destinație perfectă de weekend pe timp de vară. Pentru cei pasionați de sport, în apropiere se află și un teren sintetic de fotbal, în cadrul Cotton Club. Nu în ultimul rând, o variantă de recreere la sfârșit de săptămână este și Muzeul Etnografic "Romulus Vuia" - chiar dacă acesta este amplasat dincolo de Strada Nicolae Pătrașcu.
În ceea ce privește serviciile medicale de stat din Grigorescu, pe strada Donath nr. 170 se găsește Spitalul Clinic de Copii Cluj-Napoca, Secția Prematuri. Datorită localizării sale favorabile, cartierul oferă un acces rapid și către multitudinea de spitale de stat existente în zona centrală a orașului, cum ar fi Spitalul Clinic Județean de Urgență Cluj-Napoca sau Spitalul Universitar C.F. Cluj-Napoca. În cartier există, desigur, și instituții medicale particulare "“ printre acestea se numără Policlinica Grigorescu, de pe Strada Ștefan Mora, nr. 1. Aceasta include un laborator de analize medicale și dispune de specializări în cardiologie, dermato-venerologie, endocrinologie, obstetrică-ginecologie, ORL, pediatrie, diabet zaharat, nutriție și boli metabolice.
În afară de câteva fast food-uri de cartier, locuitorii cartierului Grigorescu au la dispoziție, în cadrul acestuia, și alte câteva oportunități interesante la capitolul gastronomie. Printre acestea se numără restaurantul "Casa Vikingilor", amplasat pe Strada Alexandru Vhlahuță, nr. 41A, ce oferă și servicii de livrare la domiciliu, dar și restaurantul "Sinaia", de pe Bulevardul 1 Decembrie 1918. Pentru a beneficia de o gamă mai largă de opțiuni pentru ieșirile în oraș cu prietenii, poți vizita, desigur, și cartierele învecinate.
Dacă ai nevoie să efectuezi o operațiune bancară, te vei bucura să afli că acest cartier al Clujului este destul de bine deservit la acest capitol. Astfel, pe Strada Fântânele (nr. 7) vei găsi un sediu CEC Bank; în imediata apropiere a acestuia vei găsi alte două sucursale bancare, una din rețeaua Banca Transilvania, iar cealaltă, din rețeaua BCR. Consultă harta și află unde sunt localizate și alte bănci sau ATM-uri în cartierul Grigorescu:
Înainte să pleci...
Ești sigur că ai văzut și aceste proprietăți?
580.000 €
Cluj-Napoca, Andrei Mureșanu
5 camere
225 mp
355 mp teren
576.000 €
Cluj-Napoca, Bună Ziua
4 camere
137 mp
258 mp teren
585.000 €
Cluj-Napoca, Europa
4 camere
136 mp
310 mp teren
Creează alertă
Salvează căutarea ca să primești pe email ultimele anunțuri publicate
Duplexuri cu 4+ camere de vânzare în zona Grigorescu, Cluj-Napoca
Cere detalii prin email
*
*
*
*
Detaliile tale de contact vor fi partajate cu Napoca Imobiliare