2

Parte duplex, 161 mp, Iris zona Auchan!

320.000 €

Iris, Cluj-Napoca

Nr. cam.:
4
Sup. utilă:
161 mp
Tip prop.:
Duplex
  • • Locație aproximativă

Descriere casă

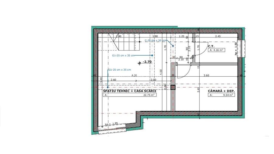
Tudoria ofera spre vanzare parte duplex cu suprafata utila de 161 mp edificata in zona Auchan Iris. Unitatea locativa este compartimentata astfel: S - 36,45 mp compusi din camera tehnica, camara + spatiu depozitare, spatiu tehnic + casa scarii; P - 61,09 mp compusi din camera de zi, bucatarie + sufragerie, baie, sas, hol si casa scarii; M - 63,50 mp compusi din 3 dormitoare, 2 bai, hol si casa scarii. Ansamblul matrimonial este prevazut cu dressing si baie proprie. Locuinta va fi predata la stadiul semifinisat, cu instalatii pe pozitii, sapa turnata, centrala termica proprie si incalzire in pardoseala. Subsolul este construit integral din beton, iar parterul si mansarda din caramida. Proprietatea se afla in imediata vecinatate a statiei de mijloace de transport in comun si in proximitatea supermarket-ului. Pentru informatii suplimentare sau pentru stabilirea unei vizionari nu ezitati sa ne contactati la numerele de telefon afisate.
Citește mai mult Citește mai puțin
Nemobilat Centrală proprie Încălzire prin pardoseală Beci 2 Parcări Bine întreținut (Bună)

Detalii casă

ID anunț: X9E00101J Copiat! 236521784 Copiat!
Actualizat în: 27 Februarie 2026
Suprafață construită: 70 mp
Suprafață desfășurată: 200 mp
Nr. bucătării: 1
Nr. băi: 3
Front stradal: 10 m
Învelitoare acoperiș: Tabla
An construcție: 2024 (În construcție)
Structură rezistență: Cărămidă
Regim înălțime: S+P+1E+M

Utilități

Destinație
Rezidențial
Ușă intrare
Metal
Izolații termice
Exterior
Ferestre cu geam termopan
PVC
Contorizare
Apometre Contor gaz
Diverse
Scară interioară Senzor de fum
Alte spații utile
Spațiu depozitare Dressing WC Serviciu
Facilități imobil
Acoperiș
Utilități
Curent Apă Canalizare CATV
Internet
Cablu
Amenajare străzi
Mijloace de transport în comun Iluminat stradal Asfaltate
Comision
1,5%

Certificat energetic:

Clasa energetică: B

Vicii:

Nu sunt

Disponibilitate proprietate:

Octombrie 2024

Puncte de interes

Mijloace transport
bus-station
Statia Pometului, Linia 39
Stații autobuz aprox. 144 m
bus-station
Pometului Vest
Stații autobuz aprox. 147 m
tram-station
Orasului Sud
Stații tramvai aprox. 1059 m
tram-station
Statia Oasului 1 TRV, Linia 100, 102, 26, 39
Stații tramvai aprox. 1071 m
Școală
school
Scoala Generala Nr. 1
Școli aprox. 209 m
kindergarten
Grăd.Floare de iris
Gradinițe aprox. 1189 m
school
Grup Școlar Aurel Vlaicu
Școli aprox. 1613 m
kindergarten
Grăd.Floare de iris str. 1 corp A+B
Gradinițe aprox. 1871 m
Recreere
supermarket
Auchan Iris
Supermarket aprox. 1090 m
park
Junior Residence Park
Parcuri aprox. 1618 m
park
Parc
Parcuri aprox. 1732 m
park
Karl Liebknecht Plazza (en)
Parcuri aprox. 1837 m

Detalii despre preț și costuri

Costuri cu achiziția

Fără credit
38.336 RON
Credit ipotecar
40.807 RON
Noua casă
1.770 RON+ taxe notariale

i

Costuri adiționale mai puțin știute la achiziție: taxe notariale, comisioane etc.

Proprietăți recomandate

Detalii de contact

Abonează-te la newsletter să fii primul care primește cele mai noi recomandări de proprietăți și sfaturi de la experți.

CONTACT

Creează alertă

Salvează căutarea ca să primești pe email ultimele anunțuri publicate

Duplexuri cu 4+ camere de vânzare în zona Iris, Cluj-Napoca