6

Casa tip duplex cu panorama deosebita !

330.000 €

Iris, Cluj-Napoca

Nr. cam.:
4
Sup. utilă:
129 mp
Sup. teren:
300 mp
Tip prop.:
Duplex
  • • Locație aproximativă

Descriere casă

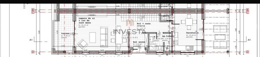
Casă spațioasă și modernă, semifinisată, într-o zonă nouă din Cluj Va prezentam spre vanzare duplex in incartierul Iris, zona Voronet cu o suprafață utilă generoasă de 120 mp, amplasată pe un teren de 300 mp complet împrejmuit și delimitat, ideală pentru o familie care caută confort și funcționalitate. Compartimentare practică și modernă: Parter: -camera de zi + loc de luat masa cu acces pe terasa; -bucatarie separata cu acces in curte; -1 hoc; -1 baie; Etaj: -3 dormitoare; -1 baie; -1 dressing. Demisol: -1 garaj pentru 1 masina; Incalzirea se realieaza cu centrala termica proprie prin pardoseala. Se preda la stadiul semifinisat cu: -Pereți gletuiți și șapă autonivelantă -Geamuri termopan de calitate superioară -Instalații electrice și sanitare trase pe poziții -usa la intrare PVC Construcție durabilă din cărămidă, izolată termic la exterior, pentru un plus de eficiență energetică și confort pe tot parcursul anului. Această locuință reprezintă o oportunitate excelentă pentru cei care își doresc un cămin generos, într-o zonă liniștită și modernă din Cluj, în plină dezvoltare. Contactează-ne pentru mai multe detalii sau pentru a programa o vizionare!
Citește mai mult Citește mai puțin
Nemobilat Grădină Încălzire prin pardoseală 1 Parcare 1 Garaj

Detalii casă

ID anunț: XFOB1102G Copiat! 262686430 Copiat!
Actualizat în: 23 Ianuarie 2026
Suprafață construită: 88 mp
Suprafață desfășurată: 160 mp
Nr. bucătării: 1
Nr. băi: 2
Nr. balcoane / Terase / Logii: 2
Nr. terase: 1
Învelitoare acoperiș: Tabla
An construcție: 2022 (Finalizată)
Structură rezistență: Cărămidă
Regim înălțime: S+P+1E

Utilități

Ușă intrare
PVC
Izolații termice
Exterior
Ferestre cu geam termopan
PVC
Diverse
Scară interioară Telecomandă poartă garaj
Utilități
Curent Apă Canalizare CATV Gaze Telefon
Internet
Cablu
Amenajare străzi
Iluminat stradal Mijloace de transport în comun Asfaltate
Comision
standard

Disponibilitate proprietate:

Imediat

Puncte de interes

Mijloace transport
bus-station
UNIMET Nord
Stații autobuz aprox. 1431 m
tram-station
Disp. Tram CUG
Stații tramvai aprox. 1438 m
tram-station
Statia UNIMET 1 TRV, Linia 100, 102, 23
Stații tramvai aprox. 1440 m
bus-station
UNIMET Sud
Stații autobuz aprox. 1453 m
Școală
university
Facultatea de Ingineria Materialelor si a Mediului
Universități aprox. 1835 m
university
UT Facultatea de Mecanica
Universități aprox. 1842 m
Recreere
restaurant
Cantina Facultatea de Mecanica
Restaurant aprox. 1876 m

Detalii despre preț și costuri

Costuri cu achiziția

Fără credit
Credit ipotecar
Noua casă

i

Costuri adiționale mai puțin știute la achiziție: taxe notariale, comisioane etc.

Insight premium disponibil după login

Proprietăți similare

Duplex cu 4 camere în Iris
305.000 € + TVA
Cluj-Napoca, Iris
4 camere
136 mp
300 mp teren
Duplex cu 4 camere în Iris
310.000 € + TVA
Cluj-Napoca, Iris
4 camere
175 mp
211 mp teren
Duplex cu 4 camere în Iris
300.000 €
Cluj-Napoca, Iris
4 camere
162 mp
250 mp teren

Detalii de contact

INVESTA IMOBILIARE

Catalin Lupoian Consultant Imobiliar

4.83(4 review-uri)

INVESTA IMOBILIARE
PRO

Abonează-te la newsletter să fii primul care primește cele mai noi recomandări de proprietăți și sfaturi de la experți.

CONTACT

Creează alertă

Salvează căutarea ca să primești pe email ultimele anunțuri publicate

Duplexuri cu 4+ camere de vânzare în zona Iris, Cluj-Napoca