1

Unitate duplex | 185.5 mp utili | 450 mp teren | panorama | Voronet

385.000 €

Iris, Cluj-Napoca

Nr. cam.:
5
Sup. utilă:
185,5 mp
Sup. teren:
450 mp
Tip prop.:
Duplex
  • • Locație aproximativă

Descriere casă

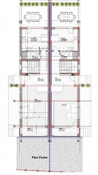
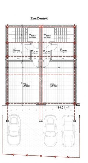
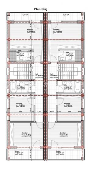
Va propunem spre vanzare o casa tip duplex situata intr-una dintre cele mai apreciate zone rezidentiale private din Cluj-Napoca – Cartierul Voronet. Proprietatea se remarca prin spatiu generos, compartimentare eficienta si o panorama deosebita asupra orasului, fiind ideala pentru o familie care cauta confort, intimitate si un stil de viata modern. Casa are o suprafata utila de 185,5 mp si este amplasata pe un teren de 450 mp, cu o curte libera de peste 390 mp. Imobilul este dispus pe patru niveluri: demisol, parter, etaj si etaj retras, oferind o organizare clara intre zona de zi si cea de noapte. Compartimentarea include 5 camere si 4 bai, cu zone de zi luminoase, dormitor matrimonial cu baie proprie si dressing, precum si multiple spatii exterioare perfecte pentru relaxare. Proprietatea beneficiaza de un balcon de 5 mp, 3 terase insumand 28 mp si 2 terase rooftop de aproximativ 32 mp, cu privelisti spectaculoase asupra orasului si imprejurimilor. In plus, casa dispune de 2 locuri de parcare si un garaj cu acces direct in interior, un detaliu important pentru confortul zilnic. Expunerea sudica asigura lumina naturala pe tot parcursul zilei. Cartierul Voronet este recunoscut pentru infrastructura moderna, strazi asfaltate, toate utilitatile disponibile, acces facil la mijloacele de transport in comun si legatura rapida cu orasul. Zona ofera un cadru linistit, aerisit, cu mult verde, fiind ideala pentru familii. Termenul estimat de finalizare este August 2026. ID intern: AV7697 Aceasta casa duplex din Cluj-Napoca reprezinta o oportunitate rara pentru cei care cauta spatiu, calitate si o locatie premium.
Citește mai mult Citește mai puțin
Nemobilat Curte Centrală proprie Încălzire prin pardoseală 2 Parcări 1 Garaj Bine întreținut (Bună)

Detalii casă

ID anunț: XCPV11072 Copiat! 274521420 Copiat!
Actualizat în: 02 Mai 2026
Tip tranzacție: De vânzare prin agent
Suprafață construită: 232 mp
Nr. bucătării: 1
Nr. băi: 4
Nr. balcoane / Terase / Logii: 2
Nr. terase: 3
Suprafață terase: 55 mp
An construcție: 2026 (În construcție)
Structură rezistență: Cărămidă
Regim înălțime: P+2E
Modalitate de plată: Cash sau Credit

Utilități

Ușă intrare
Metal
Izolații termice
Exterior
Ferestre cu geam termopan
Aluminiu PVC
Contorizare
Apometre Contor gaz
Utilități
Curent Apă Canalizare Gaze
Internet
Fibră optică
Amenajare străzi
Asfaltate Iluminat stradal
Comision
2%

Puncte de interes

Mijloace transport
bus-station
UNIMET Nord
Stații autobuz aprox. 1351 m
tram-station
Statia UNIMET 1 TRV, Linia 100, 102, 23
Stații tramvai aprox. 1358 m
tram-station
UNIMET Sud
Stații tramvai aprox. 1363 m
bus-station
UNIMET Sud
Stații autobuz aprox. 1372 m
Școală
university
Facultatea de Ingineria Materialelor si a Mediului
Universități aprox. 1740 m
university
UT Facultatea de Mecanica
Universități aprox. 1747 m
Recreere
restaurant
Cantina Facultatea de Mecanica
Restaurant aprox. 1781 m

Detalii despre preț și costuri

Costuri cu achiziția

Fără credit
Credit ipotecar
Noua casă

i

Costuri adiționale mai puțin știute la achiziție: taxe notariale, comisioane etc.

Acces la informații premium după autentificare
Login Gratuit

Proprietăți similare

Duplex cu 4 camere în Iris
349.999 €
Cluj-Napoca, Iris
4 camere
113 mp
200 mp teren
Duplex cu 4 camere în Iris
380.000 €
Cluj-Napoca, Iris
4 camere
115,5 mp
233 mp teren
Duplex cu 5 camere în Iris
360.000 €
Cluj-Napoca, Iris
5 camere
186 mp
252 mp teren

Detalii de contact

Abonează-te la newsletter să fii primul care primește cele mai noi recomandări de proprietăți și sfaturi de la experți.

CONTACT

Creează alertă

Salvează căutarea ca să primești pe email ultimele anunțuri publicate

Duplexuri cu 4+ camere de vânzare în zona Iris, Cluj-Napoca