0 % Comision la cumparare !
Va propunem spre vanzare casa tip duplex, 5 camere, 160mp utili, doua locuri de parcare, teren 523mp din care 375 mp liber, amplasata pe o strada de case, retrasa de la trafic, dar in acelasi timp aproape de mijloacele de transport in comun, cartierul Manastur.
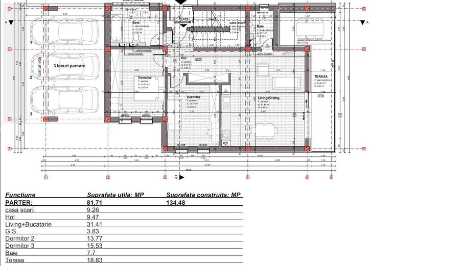
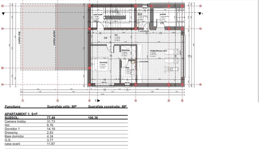
Proprietatea este dispusa D+P, beneficiaza de o suprafata utila de 160 mp incluzand demisolul si parterul, cu teren in proprietate de 523mp.
Este compartimentata astfel:
Demisol: camera de zi, baie, dormitor, casa scarii, terasa, curte
Parter: living cu bucatarie, doua dormitoare, doua bai, terasa
Casa se vinde la stadiul de semifinisat cu urmatoarele dotari:
-zidarie caramida, izolatie exterioara de 20 cm, planseuri de beton armat
centrala cu boiler incorporat Viessman și cu aplicație pe telefon cu incalzire prin pardoseala Rehau
-geamuri tamplarie pvc cu 3 sticle si 7 camere Rehau Synego
-pereti interiori tencuiti si gletuiti
-instalatii trase pe pozitii, sape turnate
-exterior finalizat complet, curtea amenajata, pavaj Elis
-Hidroizolații Bauder ( Germania) -10 ani garanție cu certificat.
- Termosistem STO ( Germania) 18-20 cm EPS 80
Clasa energetica B.
Proprietate intabulata cu CF, posibilitate achizitie credit.
Citește mai mult
Citește mai puțin
Curte
Centrală proprie
Încălzire prin pardoseală
2 Parcări
Sediul central - Timișoara
Bulevardul Victor Babeș nr. 2, 300230, Timișoara, România
Tel: +40.374.40.44.98 / Fax: +40.256.401.179
Email: suport@imobiliare.ro
Luni - Vineri 08:00 - 20:00
Punct de lucru - București: Iride Business Park, Bld. Dimitrie
Pompeiu 9-9A, Clădirea B2B,
020335, Sector 2, București, România
CONTACT
Sediul central - Timișoara
Bulevardul Victor Babeș nr. 2, 300230, Timișoara, România
Tel: +40.374.40.44.98 / Fax: +40.256.401.179
Email: suport@imobiliare.ro
Luni - Vineri 08:00 - 20:00
Punct de lucru - București: Iride Business Park, Bld. Dimitrie
Pompeiu 9-9A, Clădirea B2B,
020335, Sector 2, București, România
Sună acum și cere detalii sau programează o vizionare.
Cere detalii prin email
*
*
*
*
Stații autobuz
Stații tramvai
Școli
Gradinițe
Supermarket
Parcări
Terenuri sport
Parcuri
Spital
Farmacie
Pub
Restaurant
Bar
Bancă
Edgar Quinet Vest
aprox.
321 m
19
aprox.
336 m
Grigore Antipa Vest
aprox.
549 m
Grigore Antipa Est
aprox.
553 m
Eugen Lovinescu Est
aprox.
973 m
Eugen Lovinescu Vest
aprox.
995 m
Varianta Zorilor
aprox.
1135 m
Balea
aprox.
1343 m
Balea Vest
aprox.
1402 m
Balea Est
aprox.
1412 m
L. Matis
aprox.
1445 m
Vidraru
aprox.
1448 m
L.Matis
aprox.
1453 m
N. Steinhardt
aprox.
1485 m
Luminii
aprox.
1488 m
Parang
aprox.
1882 m
Minerva
aprox.
1897 m
Ravasului
aprox.
1980 m
Liceul Edmond Nicolau
aprox.
1137 m
Liceul Teologic Adventist
aprox.
1193 m
Liceul Waldorf
aprox.
1361 m
Scoala Generala Nr. 3
aprox.
1507 m
Scoala Constantin Brancoveanu
aprox.
1517 m
Școala Liviu Rebreanu / Liceul Liviu Rebreanu
aprox.
1594 m
Scoala Liviu Rebreanu
aprox.
1594 m
Colegiul Tehnic Edmond Nicolau
aprox.
1792 m
Liceul Teologic Adventist Maranatha
aprox.
1978 m
Grăd.Buburuzastr.1
aprox.
1359 m
Gradinita Liceului Waldorf
aprox.
1415 m
Gradinita Speciala
aprox.
1420 m
Grăd.Universul copiilor
aprox.
1443 m
Gradinita Buburuza
aprox.
1538 m
Grăd.Buburuza
aprox.
1540 m
Gradinita cu orar prelungit nr. 72
aprox.
1706 m
Grăd.Academia piticilor
aprox.
1737 m
Grăd.Rază de soare str. 2
aprox.
1811 m
Helen
aprox.
1845 m
Lidl
aprox.
1199 m
Olimpia
aprox.
1262 m
Profi
aprox.
1275 m
La doi Pasi
aprox.
1321 m
Complex Nora
aprox.
1341 m
NONstop
aprox.
1544 m
Winmarkt
aprox.
1757 m
Carrefour Market
aprox.
1787 m
Profi
aprox.
1865 m
Billa
aprox.
1895 m
Oncos
aprox.
1895 m
Baumax
aprox.
1969 m
Profi
aprox.
2000 m
Parcare
aprox.
1192 m
Parcare privata
aprox.
1403 m
Parcare privata
aprox.
1420 m
Parcare
aprox.
1483 m
Parcare privata
aprox.
1522 m
Parcare privata
aprox.
1538 m
Parcare privata
aprox.
1546 m
Parcare privata
aprox.
1555 m
Parcare privata
aprox.
1570 m
Parcare
aprox.
1571 m
Parcare
aprox.
1571 m
Parcare privata
aprox.
1582 m
Parcare privata
aprox.
1587 m
Parcare privata
aprox.
1601 m
parcare
aprox.
1672 m
Teren sportiv
aprox.
1101 m
Teren sportiv
aprox.
1392 m
Teren sportiv
aprox.
1520 m
Teren sportiv
aprox.
1557 m
Teren sportiv
aprox.
1849 m
Teren sportiv
aprox.
1890 m
Teren sportiv
aprox.
1892 m
Parc
aprox.
1234 m
Parc
aprox.
1299 m
Parc
aprox.
1402 m
Parc Mehedinti
aprox.
1463 m
Teren de joaca Manastur nr.1
aprox.
1503 m
Parc
aprox.
1509 m
pădurea Făget-Manăștur (Galicer)
aprox.
1628 m
Parc
aprox.
1707 m
Parc
aprox.
1738 m
Valea Ploșcoș/Pleșca (cunoscuta si ca zona "Sf. Ion") (en)
aprox.
1741 m
Parc
aprox.
1786 m
Parc
aprox.
1792 m
Parc
aprox.
1848 m
Parc
aprox.
1875 m
Parc
aprox.
1908 m
Farmacie
aprox.
1329 m
Cabinet de nefrologie si centru de dializa Fresenius
aprox.
1783 m
Smile Dental Clinic
aprox.
1855 m
Medical Cor
aprox.
1871 m
Cabinetul Medical Zormed
aprox.
1903 m
Clinica Bendis
aprox.
1984 m
Farmacia Balanis
aprox.
1723 m
Farmacia Viva
aprox.
1817 m
Farmacia Richter
aprox.
1823 m
Dona
aprox.
1829 m
Catena
aprox.
1835 m
Farmacia Europa
aprox.
1854 m
Help Net
aprox.
1888 m
Farmacia Infofarm
aprox.
1892 m
Farmacia Veroli
aprox.
1905 m
Farmacia Zorilor
aprox.
1908 m
Farmacie
aprox.
1910 m
Bendis Pharma
aprox.
1979 m
Old Pub
aprox.
1253 m
La Tina Bistro Manastur
aprox.
1283 m
Restaurant Faget Izvor
aprox.
1669 m
Fast-Food "Big Lunch" (en)
aprox.
1802 m
Zucca
aprox.
1833 m
McDonald's
aprox.
1855 m
Vila Rosa
aprox.
1873 m
Silva terrace (en)
aprox.
1883 m
Silva
aprox.
1888 m
Pizzeria Azzuro
aprox.
1920 m
Restaurant Perla
aprox.
1921 m
Restaurant Pensiunea Serena
aprox.
1949 m
Valahia
aprox.
1973 m
Restaurant Valahia
aprox.
1995 m
Cafe Bar
aprox.
1448 m
G94
aprox.
1843 m
BRD
aprox.
1234 m
Banca Transilvania
aprox.
1333 m
Raiffeisen Bank
aprox.
1807 m
Banca Comerciala Carpatica
aprox.
1817 m
UniCredit
aprox.
1822 m
Banca Transilvania
aprox.
1822 m
Alpha Bank
aprox.
1829 m
BCR
aprox.
1832 m
CEC Bank
aprox.
1839 m
Banca Romaneasca
aprox.
1847 m
Alpha Bank
aprox.
1850 m
OTP Bank
aprox.
1850 m
Millenium Bank
aprox.
1854 m
Piraeus Bank
aprox.
1854 m
Intesa Sanpaolo Bank
aprox.
1855 m
Una dintre principalele artere care străbate Mănășturul, pe direcția vest "“ nord-est, este Strada Primăverii; acesteia i se adaugă și Strada Câmpului și Strada Frunzișului, ambele pe direcția nord "“ sud-est. Cartierul este deservit de numeroase linii de transport în comun (atât autobuze, cât și troleibuze și tramvaie), menite să facă legătura cu celelalte zone ale orașului "“ și în mod special cu centrul.
Cartierul Mănăștur reprezintă o bună alegere pe termen lung din punctul de vedere al oportunităților de educație. În primă fază, în această zonă a orașului vei găsi numeroase grădinițe, atât de stat, cât și particulare. Ulterior, aici vei putea alege între numeroase școli (primare și gimnaziale), dar și licee. Pentru cei interesați, cartierul oferă și opțiuni în materie de învățământ superior. Este vorba, în primul rând, de Universitatea de Științe Agricole și Medicină Veterinară din Cluj-Napoca, amplasată în extrema de nord-est a cartierului, aproape de granița cu Plopilor. De menționat este și Universitatea "Bogdan Vodă", al cărei sediu se găsește pe strada Grigore Alexandrescu .
În ciuda faptului că poate fi considerat cel mai mare cartier al Clujului, în Mănăștur nu se găsește niciun mall propriu-zis. Cu toate acestea, de aici se poate ajunge cu ușurință atât la mallul Vivo!, din Florești, cât și la Platinia Shopping Center (amplasat în Plopilor, însă foarte aproape de granița cu Mănășturul și Centrul). În interiorul cartierului, o destinație mai apropiată de cumpărături poate fi centrul comercial Winmarkt Cluj (fostul "Big" Mănăștur), atât pe partea de fashion și cosmetice, cât și în materie de mobilă și electrocasnice. Tot aici se află și un Carrefour Market, o farmacie Sensiblu, precum și o sală de fitness. Alte opțiuni ar fi centrele comerciale Sirena (din apropierea stației Clabucet) și Flora (din vecinătatea pieței cu același nume). În Mănăștur se găsește și un hipermarket Kaufland (în zona Câmpului), alături de numeroase supermarketuri "“ dintre care unele afiliate unor rețele internaționale, precum Lidl, Profi sau Billa. Locuitorii acestei zone beneficiază și de câteva piețe amenajate, precum Flora sau Ion Meșter.
Pentru cei care au mașină, găsirea unui loc de parcare stabil în cartier poate fi o problemă "“ asta mai ales în zonele mai intens circulate și unde se află blocuri cu multe etaje. Dacă vrei să eviți situațiile neplăcute odată mutat aici, poți închiria un loc de parcare de la autoritățile locale (cererile pot fi depuse la Primăria de cartier, de pe Strada Ion Meșter, nr. 10).
Dacă ești pasionat de sport, te vei bucura să afli că în Mănăștur se află cea mai mare bază sportivă din Cluj-Napoca, anume Baza Sportivă "Unirea". Amplasat la marginea vestică a cartierului, un alt important spațiu de agrement este cunoscut sub denumirea "La terenuri". În ciuda amenajării sale deficitare, această zonă continuă să fie frecventată, îndeosebi în weekend, de către cei pasionați de activități în aer liber. Tot în Mănăștur găsești și parcurile "Colina" sau "Primăverii", cel din urmă fiind folosit și pentru organizarea unor evenimente culturale. Cartierul oferă și avantajul unui acces rapid către pădurea Făget "“ care poate fi destinația perfectă pentru o ieșire de weekend.
Dacă te gândești să te muți în Mănăștur, e bine să știi că strict în interiorul acestuia nu vei găsi, din păcate, niciun spital de stat "“ ceea ce nu înseamnă, însă, că vei duce lipsă de opțiuni în materie de servicii medicale. Asta pentru că locuitorii cartierului pot ajunge cu ușurință în zona centrală, unde vor avea acces la o serie de asemenea unități medicale. Un astfel de exemplu este Spitalul Clinic Județean de Urgență Cluj-Napoca, care este deschis 24 de ore din 24 "“ la fel ca și Spitalul Clinic Municipal Cluj-Napoca. De menționat sunt și Spitalul Universitar C.F. Cluj-Napoca, Spitalul de Pediatrie, Spitalul Clinic de Boli Infecțioase Cluj-Napoca, Spitalul de Pneumologie "Leon Daniello", dar și Spitalul Clinic de Recuperare Cluj-Napoca. În cartierul Mănăștur "“ sau în imediata sa apropiere "“ vei găsi, de asemenea, și o serie de clinici private, cum ar fi Medstar, Synevo, Union Medical, Centrul Medical Medexpert sau Centrul Medical "Jamgossian".
La capitolul gastronomie, locuitorii cartierului Mănăștur au la dispoziție, în proximitatea casei, și alte câteva variante demne de luat în seamă. Printre acestea se numără restaurantul "Casa Piraților", amplasat pe Strada Răvașului, nr. 16 (acesta dispune de terasă și oferă și servicii de livrare la domiciliu), dar și restaurantul "Valahia", de pe Strada Govora, nr. 27. În afară de restaurante, în această zonă a Clujului se mai găsesc, desigur, și o serie de fast food-uri, inclusiv o unitate McDonald's (pe Strada Primăverii, nr. 74). Alte opțiuni interesante pentru a lua masa în oraș oferă, desigur, și zona centrală.
La capitolul bănci și ATM-uri, este de așteptat ca această zonă a orașului să fie destul de bine deservită, date fiind dimensiunile sale. Spre exemplu, într-un areal destul de restrâns, anume în apropiere de intersecția dintre Strada Primăverii și Strada Izlazului, vei putea găsi patru sedii de bănci, anume un BRD și un BCR, alături de o sucursală Banca Românească și una a Băncii Transilvania. Consultă harta și află unde sunt localizate și alte bănci sau ATM-uri în cartierul Mănăștur:
Înainte să pleci...
Ești sigur că ai văzut și aceste proprietăți?
370.000 €
Cluj-Napoca, Mănăștur
4 camere
150 mp
80 mp teren
450.000 €
Cluj-Napoca, Mănăștur
5 camere
159,2 mp
357 mp teren
450.000 €
Cluj-Napoca, Mănăștur
5 camere
160 mp
523 mp teren
398.500 €
Cluj-Napoca, Mănăștur
5 camere
164 mp
210 mp teren
350.000 €
Cluj-Napoca, Mănăștur
4 camere
140 mp
600 mp teren
446.000 €
Cluj-Napoca, Mănăștur
5 camere
160 mp
357 mp teren
Creează alertă
Salvează căutarea ca să primești pe email ultimele anunțuri publicate
Duplexuri cu 3 camere de vânzare în zona Mănăștur, Cluj-Napoca
Cere detalii prin email
*
*
*
*
Detaliile tale de contact vor fi partajate cu Habitas Imobiliare
Preț total2.310.690 RON (453.601 €)
Costuri cu achiziția18.345 RON
Preț de achiziție2.292.345 RON
Costuri cu achiziția18.345 RON
Comision agenție Întreabă agenţia
Onorariu notarial14.906 RON
Taxă înscriere OCPI3.439 RON
Preț de achiziție2.292.345 RON
Preț locuință2.292.345 RON
TVA 0%Inclus în prețul cerut
Cost total369.293 RON (72.494 €)
Avans (15%)343.852 RON
Cost achitat în prima lună4.074 RON
Costuri cu achiziția21.367 RON
Cost achitat în prima lună4.074 RON
Comision analiză dosar
400 RON - 900 RON
Taxă evaluare imobil(până la)
900 RON
Rata lunară (variabilă)10.211 RON
Asigurare anuală imobil2.292 RON
Arhivă electronică102 RON
Poliță PAD130 RON
Asigurare de viață/lună Costul este variabil. În funcție de banca aleasă, procentul variază între 0.0259% și 0.035% din soldul creditului.
Costuri cu achiziția21.367 RON
Comision agenție Întreabă agenţia
Onorariu notarial14.906 RON
Taxă întabulare OCPI3.439 RON
Autentificare contract credit3.022 RON
Preț de achiziție2.292.345 RON
Preț locuință2.292.345 RON
TVA 0%Inclus în prețul cerut
Preț de achiziție2.292.345 RON
Preț locuință2.292.345 RON
TVA 0%
Inclus în prețul cerut
Avans minim1.686.147 RON
Credit pe 30 de ani606.198 RON
Cost achitat în prima lună
Taxa evaluare imobil(până la)
900 RON
Rata lunară (variabilă)4.259 RON
Depozit colateral12.777 RON
Comision de garantare FNGCIMM191 RON
Asigurare anuală imobil2.292 RON
Poliță PAD130 RON
Tarif arhivă electronică102 RON
Costuri adiționale2.432 RON + taxe notariale
Asigurare viață și complexă (opțională)Costul este variabil. În funcție de banca aleasă, procentul variază între 0.0259% și 0.035% din soldul creditului
Onorariu notarialconform tarif notarial
Taxă întabulare OCPI2.432 RON
i
Toate valorile de mai sus sunt estimative și nu reprezintă în mod obligatoriu costurile exacte pe care le veți primi de la companiile/instituțiile prin care veți încheia tranzacția.