Duplex in zona strazii Campului!
Va oferim spre vanzare o casa de tip duplex situata intr-o zona linistita, exclusiv de case a cartierului Manastur, in zona strazii Campului cu acces facil spre punctele de interes!
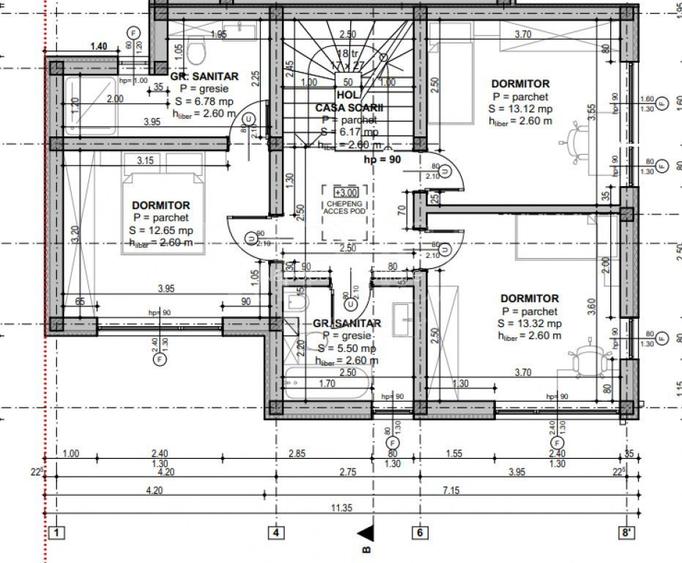
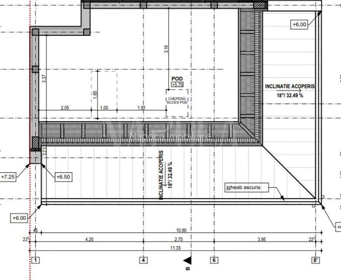
Imobilul are o suprafata utila de 158 mp dispusa pe 3 niveluri, respectiv P+E+Pod cu urmatoarea compartimentare:
Parter:
- hol acces;
- baie;
- bucatarie;
- living + dinning;
- spatiu tehnic;
- terasa cu acees atat din living cat si bucatarie.
Etaj:
- hol + casa scarilor;
- 1 dormitor matriomonial cu baie proprie;
- 2 dormitoare;
- 1 bai.
Pod:
- spatiu de depozitare.
La nivel de finisaje imobilul se va preda la stadiul de semifinisat pe interior si finisat la exterior, dupa cum urmeaza:
- fundatii, stalpi si plansee din beton armat;
- hidroizolatii cu polistiren si membrana;
- zidarie din caramida de 25 cm;
- termosistem cu politriren de 15 cm + tencuiala decorativa;
- acoperis din tabla faltuita;
- pereti interiori tencuiti + 2 straturi de glet;
- instalatiile sanitare si electrice trase pe pozitii;
- sapa egalizatoare;
- geamuri si usi principale termoizolante din PVC cu 2 foi de sticla, 5 camere profil REHAU;
- curtea amenajata cu trotuare perimetrale, pavaj si gazon;
- sistem de incalzire in pardoseala la fiecare nivel cu centrala termica in condensare de tip Viessmann + precablare automatizare.
Terenul aferent casei are o suprafata de aproximativ 300 mp pe care sunt amenajate 2 parcari exterioare!
Imobilul beneficiaza de toate utilitatile necesare si se vinde de pe persoana fizica, nefiind afectata de TVA!
Pentru mai multe detalii, vizionari si oferte de pret, nu ezitati sa ne contactati!
Cu drag, echipa Napoca Imobiliare!
ID oferta: 145349
Sediul central - Timișoara
Bulevardul Victor Babeș nr. 2, 300230, Timișoara, România
Tel: +40.374.40.44.98 / Fax: +40.256.401.179
Email: suport@imobiliare.ro
Luni - Vineri 08:00 - 20:00
Punct de lucru - București: Iride Business Park, Bld. Dimitrie
Pompeiu 9-9A, Clădirea B2B,
020335, Sector 2, București, România
CONTACT
Sediul central - Timișoara
Bulevardul Victor Babeș nr. 2, 300230, Timișoara, România
Tel: +40.374.40.44.98 / Fax: +40.256.401.179
Email: suport@imobiliare.ro
Luni - Vineri 08:00 - 20:00
Punct de lucru - București: Iride Business Park, Bld. Dimitrie
Pompeiu 9-9A, Clădirea B2B,
020335, Sector 2, București, România
Sună acum și cere detalii sau programează o vizionare.
Cere detalii prin email
*
*
*
*
Stații autobuz
Stații tramvai
Școli
Gradinițe
Universități
Supermarket
Parcări
Terenuri sport
Parcuri
Farmacie
Spital
Pub
Bar
Restaurant
Cafenea
Bancă
Grigore Antipa Est
aprox.
232 m
Grigore Antipa Vest
aprox.
237 m
19
aprox.
559 m
Edgar Quinet Vest
aprox.
573 m
Varianta Zorilor
aprox.
765 m
Eugen Lovinescu Est
aprox.
800 m
Eugen Lovinescu Vest
aprox.
823 m
L. Matis
aprox.
938 m
L.Matis
aprox.
960 m
N. Steinhardt
aprox.
989 m
N. Steinhardt
aprox.
992 m
V. Stoica
aprox.
994 m
Luminii
aprox.
1089 m
E. Ionesco
aprox.
1092 m
Statia Post Zorilor, Linia 46, 50
aprox.
1189 m
Parang
aprox.
1939 m
Minerva
aprox.
1961 m
Statia Gr. Alexandrescu, Linia 6
aprox.
1994 m
Liceul Waldorf
aprox.
907 m
Liceul Edmond Nicolau
aprox.
1068 m
Liceul Teologic Adventist
aprox.
1141 m
Școala Liviu Rebreanu / Liceul Liviu Rebreanu
aprox.
1515 m
Scoala Liviu Rebreanu
aprox.
1515 m
Scoala Generala Nr. 3
aprox.
1549 m
Scoala Constantin Brancoveanu
aprox.
1557 m
Colegiul Tehnic Edmond Nicolau
aprox.
1632 m
Scoala Generala nr. 10 / Școala Radu Stanca
aprox.
1636 m
Liceul de informatica Tiberiu Popovici
aprox.
1636 m
Liceul Teologic Adventist Maranatha
aprox.
1846 m
Liceul Teoretic Eugen Pora
aprox.
1988 m
Gradinita Liceului Waldorf
aprox.
948 m
Grăd.Buburuzastr.1
aprox.
1284 m
Helen
aprox.
1361 m
Grăd.Universul copiilor
aprox.
1369 m
Gradinita Speciala
aprox.
1429 m
Gradinita Buburuza
aprox.
1465 m
Grăd.Buburuza
aprox.
1469 m
Grăd.Rază de soare str. 2
aprox.
1707 m
Gradinita "Zana Zorilor" (nr. 58)
aprox.
1768 m
Grăd.Academia piticilor
aprox.
1817 m
Gradinita cu orar prelungit nr. 72
aprox.
1842 m
Grăd.Universul copiilor str.1
aprox.
1898 m
Grăd.Zâna Zorilor
aprox.
1904 m
UT Facultatea de Constructii si Facultatea de Arhitectura si Urbanism
aprox.
1831 m
CFDP si Facultatea de Arhitectura si Urbanism
aprox.
1876 m
USAMV Cluj-Napoca
aprox.
1937 m
Lidl
aprox.
774 m
Olimpia
aprox.
1239 m
Profi
aprox.
1252 m
Profi
aprox.
1388 m
La doi Pasi
aprox.
1410 m
Complex Nora
aprox.
1440 m
Baumax
aprox.
1458 m
Billa
aprox.
1473 m
Oncos
aprox.
1492 m
NONstop
aprox.
1504 m
Carrefour Express
aprox.
1592 m
Winmarkt
aprox.
1698 m
Carrefour Market
aprox.
1722 m
Profi
aprox.
1742 m
Profi
aprox.
1950 m
Parcare
aprox.
758 m
Parcare privata
aprox.
971 m
Parcare privata
aprox.
986 m
Parcare
aprox.
1030 m
Parcare privata
aprox.
1082 m
Parcare privata
aprox.
1087 m
Parcare privata
aprox.
1103 m
Parcare privata
aprox.
1125 m
Parcare privata
aprox.
1137 m
Parcare privata
aprox.
1144 m
Parcare privata
aprox.
1161 m
Parcare privata
aprox.
1163 m
parcare
aprox.
1253 m
Parcare Baumax
aprox.
1339 m
Parcare Profi
aprox.
1377 m
Teren sportiv
aprox.
1033 m
Teren sportiv
aprox.
1486 m
Teren sportiv
aprox.
1529 m
Teren sportiv
aprox.
1562 m
Teren sportiv
aprox.
1566 m
Teren sportiv
aprox.
1580 m
Teren sportiv
aprox.
1581 m
Teren sportiv
aprox.
1694 m
Teren sportiv
aprox.
1941 m
Teren sportiv
aprox.
1968 m
Parc
aprox.
1113 m
Parc
aprox.
1253 m
Parc
aprox.
1279 m
Parc
aprox.
1291 m
Parc
aprox.
1321 m
Parc
aprox.
1404 m
Parc
aprox.
1445 m
Parc
aprox.
1459 m
Parc
aprox.
1471 m
Parc
aprox.
1546 m
Parc
aprox.
1546 m
Parc
aprox.
1588 m
Parc Mehedinti
aprox.
1596 m
Teren de joaca Manastur nr.1
aprox.
1628 m
Parc
aprox.
1669 m
Farmacia Balanis
aprox.
1273 m
Farmacia Infofarm
aprox.
1413 m
Dona
aprox.
1430 m
Catena
aprox.
1433 m
Farmacie
aprox.
1479 m
Farmacia Veroli
aprox.
1484 m
Farmacia Zorilor
aprox.
1500 m
Bendis Pharma
aprox.
1525 m
Ortoprofil
aprox.
1557 m
Farmacia Viva
aprox.
1870 m
Farmacia Europa
aprox.
1871 m
Help Net
aprox.
1873 m
Farmacia Richter
aprox.
1897 m
Cabinet de nefrologie si centru de dializa Fresenius
aprox.
1305 m
Farmacie
aprox.
1422 m
Smile Dental Clinic
aprox.
1466 m
Medical Cor
aprox.
1480 m
Cabinetul Medical Zormed
aprox.
1508 m
Clinica Bendis
aprox.
1532 m
Spitalul de Recuperare
aprox.
1585 m
Centrul Medical Transilvania
aprox.
1615 m
Ronda Medical
aprox.
1839 m
Centrul Medical de Balneofizioterapie si Recuperare Edelweiss
aprox.
1895 m
Old Pub
aprox.
1236 m
Mates Pub
aprox.
1624 m
G94
aprox.
1350 m
Cafe Bar
aprox.
1382 m
The Gentlemen's Club
aprox.
1660 m
La Tina Bistro Manastur
aprox.
1414 m
Zucca
aprox.
1450 m
Pizzeria Azzuro
aprox.
1489 m
Restaurant Perla
aprox.
1512 m
Vila Rosa
aprox.
1674 m
Fast-Food "Big Lunch" (en)
aprox.
1739 m
Valahia
aprox.
1752 m
Restaurant Valahia
aprox.
1781 m
Silva terrace (en)
aprox.
1879 m
Silva
aprox.
1882 m
Restaurant Rod
aprox.
1905 m
McDonald's
aprox.
1925 m
Restaurant Pensiunea Serena
aprox.
1949 m
Greenbox Pizza
aprox.
1985 m
Apartament 1
aprox.
1752 m
BRD
aprox.
1237 m
Banca Transilvania
aprox.
1428 m
Alpha Bank
aprox.
1430 m
CEC Bank
aprox.
1453 m
Intesa Sanpaolo Bank
aprox.
1468 m
Banca Transilvania
aprox.
1469 m
BCR
aprox.
1491 m
Raiffaisen Bank
aprox.
1500 m
BRD
aprox.
1565 m
ING
aprox.
1573 m
EximBank
aprox.
1650 m
BRD - Groupe Societe Generale
aprox.
1682 m
BRD
aprox.
1687 m
Banca Transilvania
aprox.
1786 m
UniCredit
aprox.
1796 m
Una dintre principalele artere care străbate Mănășturul, pe direcția vest "“ nord-est, este Strada Primăverii; acesteia i se adaugă și Strada Câmpului și Strada Frunzișului, ambele pe direcția nord "“ sud-est. Cartierul este deservit de numeroase linii de transport în comun (atât autobuze, cât și troleibuze și tramvaie), menite să facă legătura cu celelalte zone ale orașului "“ și în mod special cu centrul.
Cartierul Mănăștur reprezintă o bună alegere pe termen lung din punctul de vedere al oportunităților de educație. În primă fază, în această zonă a orașului vei găsi numeroase grădinițe, atât de stat, cât și particulare. Ulterior, aici vei putea alege între numeroase școli (primare și gimnaziale), dar și licee. Pentru cei interesați, cartierul oferă și opțiuni în materie de învățământ superior. Este vorba, în primul rând, de Universitatea de Științe Agricole și Medicină Veterinară din Cluj-Napoca, amplasată în extrema de nord-est a cartierului, aproape de granița cu Plopilor. De menționat este și Universitatea "Bogdan Vodă", al cărei sediu se găsește pe strada Grigore Alexandrescu .
În ciuda faptului că poate fi considerat cel mai mare cartier al Clujului, în Mănăștur nu se găsește niciun mall propriu-zis. Cu toate acestea, de aici se poate ajunge cu ușurință atât la mallul Vivo!, din Florești, cât și la Platinia Shopping Center (amplasat în Plopilor, însă foarte aproape de granița cu Mănășturul și Centrul). În interiorul cartierului, o destinație mai apropiată de cumpărături poate fi centrul comercial Winmarkt Cluj (fostul "Big" Mănăștur), atât pe partea de fashion și cosmetice, cât și în materie de mobilă și electrocasnice. Tot aici se află și un Carrefour Market, o farmacie Sensiblu, precum și o sală de fitness. Alte opțiuni ar fi centrele comerciale Sirena (din apropierea stației Clabucet) și Flora (din vecinătatea pieței cu același nume). În Mănăștur se găsește și un hipermarket Kaufland (în zona Câmpului), alături de numeroase supermarketuri "“ dintre care unele afiliate unor rețele internaționale, precum Lidl, Profi sau Billa. Locuitorii acestei zone beneficiază și de câteva piețe amenajate, precum Flora sau Ion Meșter.
Pentru cei care au mașină, găsirea unui loc de parcare stabil în cartier poate fi o problemă "“ asta mai ales în zonele mai intens circulate și unde se află blocuri cu multe etaje. Dacă vrei să eviți situațiile neplăcute odată mutat aici, poți închiria un loc de parcare de la autoritățile locale (cererile pot fi depuse la Primăria de cartier, de pe Strada Ion Meșter, nr. 10).
Dacă ești pasionat de sport, te vei bucura să afli că în Mănăștur se află cea mai mare bază sportivă din Cluj-Napoca, anume Baza Sportivă "Unirea". Amplasat la marginea vestică a cartierului, un alt important spațiu de agrement este cunoscut sub denumirea "La terenuri". În ciuda amenajării sale deficitare, această zonă continuă să fie frecventată, îndeosebi în weekend, de către cei pasionați de activități în aer liber. Tot în Mănăștur găsești și parcurile "Colina" sau "Primăverii", cel din urmă fiind folosit și pentru organizarea unor evenimente culturale. Cartierul oferă și avantajul unui acces rapid către pădurea Făget "“ care poate fi destinația perfectă pentru o ieșire de weekend.
Dacă te gândești să te muți în Mănăștur, e bine să știi că strict în interiorul acestuia nu vei găsi, din păcate, niciun spital de stat "“ ceea ce nu înseamnă, însă, că vei duce lipsă de opțiuni în materie de servicii medicale. Asta pentru că locuitorii cartierului pot ajunge cu ușurință în zona centrală, unde vor avea acces la o serie de asemenea unități medicale. Un astfel de exemplu este Spitalul Clinic Județean de Urgență Cluj-Napoca, care este deschis 24 de ore din 24 "“ la fel ca și Spitalul Clinic Municipal Cluj-Napoca. De menționat sunt și Spitalul Universitar C.F. Cluj-Napoca, Spitalul de Pediatrie, Spitalul Clinic de Boli Infecțioase Cluj-Napoca, Spitalul de Pneumologie "Leon Daniello", dar și Spitalul Clinic de Recuperare Cluj-Napoca. În cartierul Mănăștur "“ sau în imediata sa apropiere "“ vei găsi, de asemenea, și o serie de clinici private, cum ar fi Medstar, Synevo, Union Medical, Centrul Medical Medexpert sau Centrul Medical "Jamgossian".
La capitolul gastronomie, locuitorii cartierului Mănăștur au la dispoziție, în proximitatea casei, și alte câteva variante demne de luat în seamă. Printre acestea se numără restaurantul "Casa Piraților", amplasat pe Strada Răvașului, nr. 16 (acesta dispune de terasă și oferă și servicii de livrare la domiciliu), dar și restaurantul "Valahia", de pe Strada Govora, nr. 27. În afară de restaurante, în această zonă a Clujului se mai găsesc, desigur, și o serie de fast food-uri, inclusiv o unitate McDonald's (pe Strada Primăverii, nr. 74). Alte opțiuni interesante pentru a lua masa în oraș oferă, desigur, și zona centrală.
La capitolul bănci și ATM-uri, este de așteptat ca această zonă a orașului să fie destul de bine deservită, date fiind dimensiunile sale. Spre exemplu, într-un areal destul de restrâns, anume în apropiere de intersecția dintre Strada Primăverii și Strada Izlazului, vei putea găsi patru sedii de bănci, anume un BRD și un BCR, alături de o sucursală Banca Românească și una a Băncii Transilvania. Consultă harta și află unde sunt localizate și alte bănci sau ATM-uri în cartierul Mănăștur:
Înainte să pleci...
Ești sigur că ai văzut și aceste proprietăți?
410.000 €
Cluj-Napoca, Mănăștur
3 camere
159 mp
523 mp teren
429.550 €
355.000 € +TVA
Cluj-Napoca, Mănăștur
5 camere
196 mp
265 mp teren
410.000 €
Cluj-Napoca, Mănăștur
5 camere
160 mp
357 mp teren
Creează alertă
Salvează căutarea ca să primești pe email ultimele anunțuri publicate
Duplexuri cu 4+ camere de vânzare în zona Mănăștur, Cluj-Napoca
Cere detalii prin email
*
*
*
*
Detaliile tale de contact vor fi partajate cu Napoca Imobiliare