NEGOCIABIL! Duplex modern, 5 camere, 200 mp, teren 1300 mp, Dabaca

135.000 €

Dăbâca, Județul Cluj

Nr. cam.:
5
Sup. utilă:
200 mp
Sup. teren:
1.300 mp
Tip prop.:
Duplex
  • • Locație aproximativă

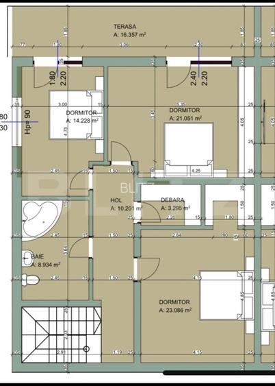
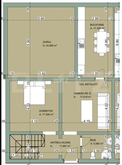
Descriere casă

BLITZ ofera spre vanzare un duplex semifinisat situat in Dabaca, la distanta de 35 km de Cluj-Napoca, edificat pe un teren drept, in apropiere unui parau. O unitate locativa este construita pe o suprafata utila de 200 mp, amplasata pe un teren de 1300 mp, regim de inaltime P+E. Compartimentare: -Parter: hol acces, living generos, 1 dormitor, bucatarie inchisa, baie, garaj; -Etaj: hol acces, 3 camere tip dormitor dintre care 2 cu iesire pe terasa, baie, debara. Detalii tehnice: izolatie exterioara cu polistiren grafitat 15 cm, izolatie interioara 100% naturala pentru o izolatie superioara, incalzire in pardoseala, geamuri Salamander tripan. Exterior: curte mare, ideala pentru amenajare gradina, loc de joaca sau spatiu de relaxare. OPORTUNITATE: pentru fiecare unitate locativa se poate achizitiona suplimentar 3200mp teren la cerere. Situat intr-o zona linistita, cu acces facil la strazi principale, este ideal pentru o familie care cauta spatiu, confort si apropiere de natura. Ambele unitati sunt de vanzare, pretul fiind exprimat per unitate locativa, NEGOCIABIL SUBSTANTIAL! Va asteptam cu drag sa ne contactati pentru mai multe detalii si sa organizam o vizionare. Cod oferta / ID BLITZ: P163708
Citește mai mult Citește mai puțin
Nemobilat Centrală proprie Încălzire prin pardoseală 1 Garaj

Detalii casă

ID anunț: XFTI114S8 Copiat! 274861230 Copiat!
Actualizat în: 07 Martie 2026
Nr. bucătării: 1
Nr. băi: 2
Nr. terase: 2
Front stradal: 30 m
An construcție: 2022 (La gri)
Regim înălțime: P+1E

Utilități

Utilități
Curent Apă Canalizare Curent trifazic
Amenajare străzi
Asfaltate Iluminat stradal
Izolații termice
Exterior Interior
Comision
%

Disponibilitate proprietate:

imediat

Puncte de interes

Recreere
sports-ground
Teren Fotbal
Terenuri sport aprox. 1537 m

Detalii despre preț și costuri

Costuri cu achiziția

Fără credit
7.541 RON
Credit ipotecar
9.227 RON
Noua casă
828 RON+ taxe notariale

i

Costuri adiționale mai puțin știute la achiziție: taxe notariale, comisioane etc.

Proprietăți recomandate

Detalii de contact

BLITZ

BLITZ ROMANIA

4.70(108 review-uri)

BLITZ
PRO

Abonează-te la newsletter să fii primul care primește cele mai noi recomandări de proprietăți și sfaturi de la experți.

CONTACT

Creează alertă

Salvează căutarea ca să primești pe email ultimele anunțuri publicate

Duplexuri cu 4+ camere de vânzare în Județul Cluj