Am facut update, poze in timp real, lucrarile sunt finlizate in proportie de peste 90%.
1700 euro/mp util, constructie noua, semifinisata, materiale de calitate premium, 300 mp teren, zona accesibila, asfalt pana in fata casei, la nici 10 km de Cluj.
Pentru ca esti obisnuit sa traiesti la superlativ, ti-am gasit caminul ideal, astazi, in 10 a 10-a 2025, la doar 10 km de centrul Clujului .
Desigur, asa cum era de asteptat, la constructia acestor doua unitati de duplex s-au folosit materiale de nota 10 pe care le-au organizat, ai ghicit, mesteri cu aceeasi nota la care adaugam si un +.
Iar daca iti doresti sa locuiesti aproape de cei dragi – parinti, frati sau prieteni – dar sa aveti in acelasi timp intimitate si confort, aceste doua unitati de duplex din Dezmir pot fi alegerea perfecta.
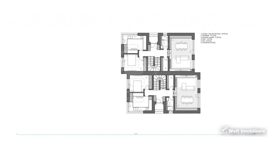
Unitatea 1 – 180 mp utili + subsol 50 mp
- suprafata utila: 180 mp
- subsol: 50 mp (spatiu tehnic, spalatorie/uscator, zona hobby/depozitare)
- parter: living de 30 mp cu iesire spre terasa, bucatarie separata, dormitor/birou, baie si spatiu de depozitare
- etaj: 2 dormitoare cu baie comuna + dormitor matrimonial cu baie proprie
- 2 locuri de parcare amenajate
Pret: 290 000 euro TVA inclus
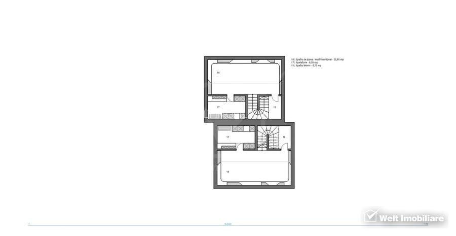
Unitatea 2 – 180 mp utili + subsol 50 mp + mansarda 76 mp
- suprafata utila: 180 mp
- subsol: 50 mp (spatiu tehnic, spalatorie/uscator, zona hobby/depozitare)
- parter: living de 30 mp cu iesire spre terasa, bucatarie separata, dormitor/birou, baie si spatiu de depozitare
- etaj: 2 dormitoare cu baie comuna + dormitor matrimonial cu baie proprie
- mansarda: open-space + baie
- 3 locuri de parcare amenajate
Pret: 349.050 euro TVA inclus
Caracteristici comune pentru ambele unitati
- teren: 300 mp / unitate
- constructie din caramida, izolatie exterioara Sto Premium 15 cm (coeficient termic 0,36)
- tencuiala Baumit, fatada ventilata cu tencuiala decorativa Sto si caramida aparenta
- incalzire in pardoseala cu comanda separata in fiecare incapere
- instalatie electrica trifazica, pregatita pentru panouri solare si statie incarcare auto
- baterie 5kw pentru panouri solare
- centrala termica 28 kw
- sistem de colectare a apei pluviale (rezervor 3000 l + pompa)
- ferestre Salamander – 7 camere, 3 foi de sticla
- pod izolat cu celuloza de 20 cm
- porti actionate electric, pergola acoperita si foisor amenajat in curte
- zid comun cu rost de dilatare si izolatie fonica (polistiren 20 cm)
Termen de finalizare: mai 2026.
Se predau cu peretii finisati, dati cu un strat de lavabil, vase wc si rigole baie incluse in pret!
Vanzare de pe persoana juridica, preturile includ TVA.
Sediul central - Timișoara
Bulevardul Victor Babeș nr. 2, 300230, Timișoara, România
Tel: +40.374.40.44.98 / Fax: +40.256.401.179
Email: suport@imobiliare.ro
Luni - Vineri 08:00 - 20:00
Punct de lucru - București: Iride Business Park, Bld. Dimitrie
Pompeiu 9-9A, Clădirea B2B,
020335, Sector 2, București, România
CONTACT
Sediul central - Timișoara
Bulevardul Victor Babeș nr. 2, 300230, Timișoara, România
Tel: +40.374.40.44.98 / Fax: +40.256.401.179
Email: suport@imobiliare.ro
Luni - Vineri 08:00 - 20:00
Punct de lucru - București: Iride Business Park, Bld. Dimitrie
Pompeiu 9-9A, Clădirea B2B,
020335, Sector 2, București, România
Sună acum și cere detalii sau programează o vizionare.
Cere detalii prin email
*
*
*
*
Parcări
Parcuri
Terenuri sport
Parcare
aprox.
1003 m
Pădurea Dezmir (en)
aprox.
1742 m
Teren sportiv
aprox.
1940 m
Înainte să pleci...
Ești sigur că ai văzut și aceste proprietăți?
310.000 €
Județul Cluj, Dezmir
4 camere
126 mp
500 mp teren
265.000 €
Județul Cluj, Dezmir
4 camere
140 mp
610 mp teren
249.000 €
Județul Cluj, Dezmir
4 camere
127 mp
330 mp teren
250.000 €
Județul Cluj, Dezmir
6 camere
180 mp
300 mp teren
252.000 € + TVA
Județul Cluj, Dezmir
5 camere
180 mp
300 mp teren
268.900 €
Județul Cluj, Dezmir
4 camere
140 mp
610 mp teren
Creează alertă
Salvează căutarea ca să primești pe email ultimele anunțuri publicate
Duplexuri cu 4+ camere de vânzare în Dezmir, Județul Cluj
Cere detalii prin email
*
*
*
*
Detaliile tale de contact vor fi partajate cu Welt Imobiliare
Preț total1.311.111 RON (257.287 €)
Costuri cu achiziția11.657 RON
Preț de achiziție1.299.454 RON
Costuri cu achiziția11.657 RON
Comision agenție Întreabă agenţia
Onorariu notarial9.708 RON
Taxă înscriere OCPI1.949 RON
Preț de achiziție1.299.454 RON
Preț locuință1.299.454 RON
TVA 0%Inclus în prețul cerut
Cost total211.851 RON (41.572 €)
Avans (15%)194.918 RON
Cost achitat în prima lună3.081 RON
Costuri cu achiziția13.852 RON
Cost achitat în prima lună3.081 RON
Comision analiză dosar
400 RON - 900 RON
Taxă evaluare imobil(până la)
900 RON
Rata lunară (variabilă)5.788 RON
Asigurare anuală imobil1.299 RON
Arhivă electronică102 RON
Poliță PAD130 RON
Asigurare de viață/lună Costul este variabil. În funcție de banca aleasă, procentul variază între 0.0259% și 0.035% din soldul creditului.
Costuri cu achiziția13.852 RON
Comision agenție Întreabă agenţia
Onorariu notarial9.708 RON
Taxă întabulare OCPI1.949 RON
Autentificare contract credit2.195 RON
Preț de achiziție1.299.454 RON
Preț locuință1.299.454 RON
TVA 0%Inclus în prețul cerut
Preț de achiziție1.299.454 RON
Preț locuință1.299.454 RON
TVA 0%
Inclus în prețul cerut
Avans minim693.042 RON
Credit pe 30 de ani606.412 RON
Cost achitat în prima lună
Taxa evaluare imobil(până la)
900 RON
Rata lunară (variabilă)4.261 RON
Depozit colateral12.783 RON
Comision de garantare FNGCIMM108 RON
Asigurare anuală imobil1.299 RON
Poliță PAD130 RON
Tarif arhivă electronică102 RON
Costuri adiționale1.439 RON + taxe notariale
Asigurare viață și complexă (opțională)Costul este variabil. În funcție de banca aleasă, procentul variază între 0.0259% și 0.035% din soldul creditului
Onorariu notarialconform tarif notarial
Taxă întabulare OCPI1.439 RON
i
Toate valorile de mai sus sunt estimative și nu reprezintă în mod obligatoriu costurile exacte pe care le veți primi de la companiile/instituțiile prin care veți încheia tranzacția.