Duplex Dumbravita cu 5 camere | 318 mp teren| Comision 0

227.000 €

Dumbrăvița, Județul Timiș

Nr. cam.:
5
Sup. utilă:
107,5 mp
Sup. teren:
318 mp
Tip prop.:
Duplex
  • • Comision 0%
  • • Locație exactă

Descriere casă

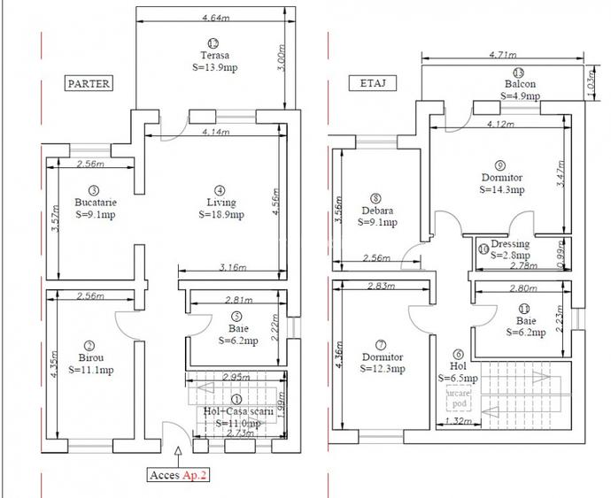
Maximizeaza-ti spatiul si timpul! Proprietatea, situata in Dumbravita, cu suprafata de 107.5 mp utili si teren de 318 mp, configurata inteligent pentru confortul zilnic, ofera balanta perfecta intre spatiul generos si functionalitatea inteligenta, asigurand atat intimitate, cat si flexibilitate, multumita configuratiei cu birou separat la parter. Localizare: Locuinta situata pe strada Ferencz Lehart, aproape de Bd Ion Creanga, este pozitionata intr-o zona linistita, pe o strada asfaltata, oferind acces facil catre: - Comunitate: Proximitate excelenta fata de Profi, restaurant, after school si gradinita. - Facilitati: Conectivitate rapida catre Scoala, Primarie, Parc si zonele de interes major (Aeroport, Autostrada A1, centre de afaceri). Detalii proprietate: - Suprafata Utila 107.5 mp - Suprafata Teren 318 mp - Terasa 13.9 mp - Balcon 4.9 mp - Pod (Spatiu de depozitare generos) Compartimentare Inteligenta - structura casei este gandita pentru a oferi functionalitate maxima familiei: - Parter (Zona Flexibila): Hol si casa scarii, living spatios cu zona de dining, bucatarie separata, un Birou util (ideal pentru home office sau camera de oaspeti) si baie cu dus si bideu, cu acces direct pe terasa de 13.9 mp - Etaj (Zona de Noapte): Hol, trei dormitoare, baie principala cu cada si bideu, loc special pentru masina de spalat, balcon si pod deasupra Dotari Premium pentru confort durabil: - Infrastructura: Utilitati complete (gaz, curent, apa, canalizare) racordate. - Eficienta Termica: Izolatie exterioara de 10 cm si tamplarie de calitate - Finisaje: Scari interioare placate cu piatra naturala ce da o nota eleganta - Climatizare & Confort Termic: Centrala pe gaz Bosch si sistem de incalzire in pardoseala la ambele niveluri - Siguranta: Sistem video exterior si poarta auto electrica - Curte: Curte pavata in zona de acces si parcare, cu spatiu disponibil pentru amenajarea zonei verzi sau de relaxare - Exterior Optimizat: Puncte de apa si curent trase in spatele curtii – pregatite pentru foisor sau zona de hobby - Parcare: 2 locuri de parcare proprii Pret: 227.000 EUR Comision 0% Aceasta proprietate ofera spatiul si dotarile necesare pentru un stil de viata modern, sigur si echilibrat Imaginile mobilate sunt randari de tip virtual staging, create pentru a sugera o posibila amenajare; proprietatea se vinde nemobilata.
Citește mai mult Citește mai puțin
Nemobilat Grădină Centrală proprie Încălzire prin pardoseală 2 Parcări Bine întreținut (Bună)

Detalii casă

ID anunț: XD3P1101P Copiat! 275480352 Copiat!
Actualizat în: 28 Aprilie 2026
Nr. bucătării: 1
Nr. băi: 2
Nr. balcoane / Terase / Logii: 1
Nr. terase: 1
Suprafață terase: 13.9 mp
An construcție: 2025 (Finalizată)
Structură rezistență: Cărămidă
Regim înălțime: P+1E

Utilități

Pereți
Vopsea lavabilă Faianță
Podele
Parchet Gresie
Ușă intrare
PVC
Uși interior
Celulare
Izolații termice
Exterior
Ferestre cu geam termopan
PVC
Contorizare
Contor gaz
Diverse
Telecomandă poartă acces auto
Facilități imobil
Videointerfon
Utilități
Curent Apă Canalizare Gaze
Internet
Fibră optică
Amenajare străzi
Asfaltate Iluminat stradal Mijloace de transport în comun
Comision
0%

Puncte de interes

Școală
kindergarten
Gradinita Scooby
Gradinițe aprox. 1700 m
school
Scoala Gimnaziala Dumbravita
Școli aprox. 1842 m
Recreere
park
Parcul Dvorjak
Parcuri aprox. 561 m
park
Sunflower Field
Parcuri aprox. 1238 m
supermarket
Lidl
Supermarket aprox. 1842 m
sports-ground
Teren sportiv
Terenuri sport aprox. 1856 m

Detalii despre preț și costuri

Costuri cu achiziția

Fără credit
Credit ipotecar
Noua casă

i

Costuri adiționale mai puțin știute la achiziție: taxe notariale, comisioane etc.

Insight premium disponibil după login

Proprietăți similare

Duplex cu 5 camere în Dumbrăvița
209.000 €
Județul Timiș, Dumbrăvița
5 camere
130 mp
300 mp teren
Duplex cu 5 camere în Dumbrăvița
208.990 €
Județul Timiș, Dumbrăvița
5 camere
130 mp
300 mp teren
Duplex cu 4 camere în Dumbrăvița
240.990 €
Județul Timiș, Dumbrăvița
4 camere
110 mp
360 mp teren

Detalii de contact

Minerva Imobiliare

Teona Lupulescu agent imobiliar

4.80(4 review-uri)

Minerva Imobiliare
PRO

Abonează-te la newsletter să fii primul care primește cele mai noi recomandări de proprietăți și sfaturi de la experți.

Feedback apel

CONTACT

Creează alertă

Salvează căutarea ca să primești pe email ultimele anunțuri publicate

Duplexuri cu 4+ camere de vânzare în Dumbrăvița, Județul Timiș