Casa cuplată 4 camere in florești, 92 mp utili, teren 200 mp

195.000 €

Florești, Județul Cluj

Nr. cam.:
4
Sup. utilă:
92 mp
Sup. teren:
200 mp
Tip prop.:
Duplex
  • • Locație aproximativă

Descriere casă

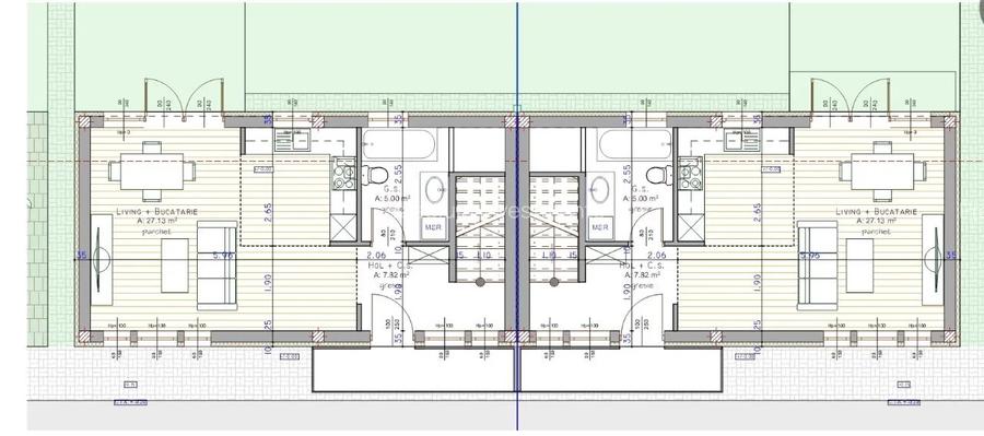
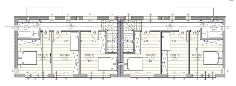
Va oferim spre vanzare casa cuplată singur in curte in cartierul Florești. Casa este compusa din bucatarie,living,3 camere si 2 bai cu geam. Se vinde nemobilata si detine parcare. Constructia este dispusa pe P+E. Casa este finisata modern cu centrala termica, termopane,încălzire în pardoseală, usa metalica, izolatie termica. Utilitati: gaz,curent,apa,canalizare An constructie:februarie 2024 Front: 13 m Suprafata utila:92 mp Teren:200 mp ID 1839 facebook: praedium investments
Citește mai mult Citește mai puțin
Nemobilat Curte Centrală proprie 2 Parcări Renovat

Detalii casă

ID anunț: XAMQ010G9 Copiat! 194920999 Copiat!
Actualizat în: 16 Februarie 2026
Suprafață construită: 55 mp
Nr. bucătării: 1
Nr. băi: 2
Front stradal: 13 m
Învelitoare acoperiș: Tabla
An construcție: 2024 (În construcție)
Structură rezistență: Beton
Regim înălțime: P+1E

Utilități

Destinație
Rezidențial
Pereți
Vopsea lavabilă
Podele
Parchet
Ușă intrare
Metal
Uși interior
Lemn
Izolații termice
Exterior
Ferestre cu geam termopan
PVC
Contorizare
Apometre Contor gaz
Diverse
Scară interioară
Alte spații utile
Spațiu depozitare WC Serviciu
Dotări imobil
Acoperiș
Amenajare străzi
Asfaltate Mijloace de transport în comun Iluminat stradal
Comision
2%

Puncte de interes

Mijloace transport
bus-station
M-Cartier Terra
Stații autobuz aprox. 322 m
bus-station
M-Prof. Dumitru Mocanu
Stații autobuz aprox. 568 m
bus-station
M-Prof. Dumitru Mocanu E
Stații autobuz aprox. 574 m
bus-station
M-Prof. Dumitru Mocanu V
Stații autobuz aprox. 574 m
Recreere
park
Parc
Parcuri aprox. 667 m
restaurant
Il Milanese
Restaurant aprox. 746 m
supermarket
Profi Floresti
Supermarket aprox. 1230 m
sports-ground
Teren Fotbal Sintetic
Terenuri sport aprox. 1456 m

Detalii despre preț și costuri

Costuri cu achiziția

Fără credit
29.474 RON
Credit ipotecar
31.414 RON
Noua casă
1.134 RON+ taxe notariale

i

Costuri adiționale mai puțin știute la achiziție: taxe notariale, comisioane etc.

Proprietăți similare

Duplex cu 4 camere în Florești
200.000 €
Județul Cluj, Florești
4 camere
92 mp
40 mp teren
Duplex cu 4 camere în Florești
210.000 €
Județul Cluj, Florești
4 camere
120 mp
250 mp teren
Duplex cu 4 camere în Florești
200.000 €
Județul Cluj, Florești
4 camere
95 mp
126 mp teren

Detalii de contact

Abonează-te la newsletter să fii primul care primește cele mai noi recomandări de proprietăți și sfaturi de la experți.

CONTACT

Creează alertă

Salvează căutarea ca să primești pe email ultimele anunțuri publicate

Duplexuri cu 4+ camere de vânzare în Florești, Județul Cluj