Casa tip duplex Floresti

187.500 €

Florești, Județul Cluj

Nr. cam.:
4
Sup. utilă:
119 mp
Sup. teren:
471 mp
Tip prop.:
Duplex
  • • Locație aproximativă

Descriere casă

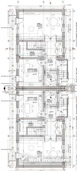
Welt Imobiliare va propune pentru de vanzare o casa tip duplex cu 4 camere, situata optim in Floresti. Casa este pe 2 nivele, P + M, are o suprafata utila de 119 mp si este compartimentata dupa cum urmeaza: Parter: -living -bucatarie -baie -hol -debara Etaj: -3 dormitoare(unul din dormitoare este cu baie proprie si dressing) -2 bai -hol -logie -balcon Suprafata utila este de 119,5mp. Intrarea pe proprietate se face pe un drum privat de 6m latime+trotuar de 1,2m latime. Finalizarea proiectului se va face in luna Iulie 2026. Casa se vinde la stadiul de semifinisat Pentru alte detalii sau o oferta personalizata, va stam la dispozitie. P46737
Citește mai mult Citește mai puțin
Nemobilat Grădină Curte Centrală proprie Bine întreținut (Bună)

Detalii casă

ID anunț: X1KA111TB Copiat! 256308005 Copiat!
Actualizat în: 24 Aprilie 2026
Suprafață construită: 142.8 mp
Nr. băi: 1

Utilități

Pereți
Vopsea lavabilă
Izolații termice
Exterior
Ferestre cu geam termopan
PVC
Contorizare
Apometre Contor căldură Contor gaz
Utilități
Curent Apă Canalizare Gaze

Puncte de interes

Mijloace transport
bus-station
M-Cartier Terra
Stații autobuz aprox. 636 m
bus-station
M-Prof. Dumitru Mocanu
Stații autobuz aprox. 849 m
bus-station
M-Prof. Dumitru Mocanu E
Stații autobuz aprox. 851 m
bus-station
M-Prof. Dumitru Mocanu V
Stații autobuz aprox. 859 m
Recreere
park
Parc
Parcuri aprox. 380 m
restaurant
Pizza Pizza
Restaurant aprox. 508 m
supermarket
Profi Floresti
Supermarket aprox. 1127 m
sports-ground
Teren Fotbal Sintetic
Terenuri sport aprox. 1274 m

Detalii despre preț și costuri

Costuri cu achiziția

Fără credit
Credit ipotecar
Noua casă

i

Costuri adiționale mai puțin știute la achiziție: taxe notariale, comisioane etc.

Insight premium disponibil după login

Proprietăți recomandate

Detalii de contact

WELT IMOBILIARE

Welt Imobiliare

4.35(22 review-uri)

WELT IMOBILIARE
PRO

Abonează-te la newsletter să fii primul care primește cele mai noi recomandări de proprietăți și sfaturi de la experți.

CONTACT

Creează alertă

Salvează căutarea ca să primești pe email ultimele anunțuri publicate

Duplexuri cu 4+ camere de vânzare în Florești, Județul Cluj