3

COMISION 0! Duplex 4 camere, 120mp, 200 teren, proiect finalizat, zona Terra

150.000 € + TVA

Florești, Județul Cluj

Nr. cam.:
4
Sup. utilă:
119,82 mp
Sup. teren:
120 mp
Tip prop.:
Duplex
  • • Locație aproximativă

Descriere casă

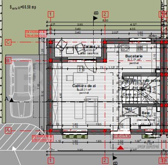
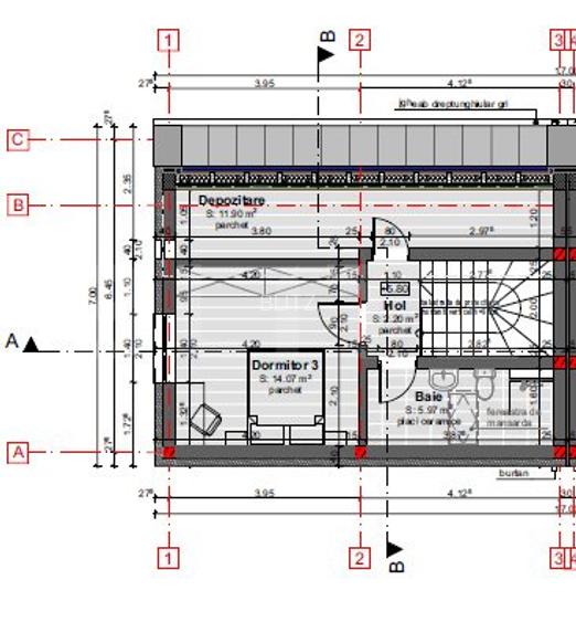
Blitz va propune spre vanzare 9 unitati de duplex intr-un ansamblu privat cu bariera si parc de joaca, din zona strazii Catanelor. Imobilele sunt constructie noua, racordate la toate utilitatile, cu finisaje de foarte buna calitate, stalpi beton armat; pereti exteriori : zidarie caramida 25 cm, sistem termoizolant, polistiren expandat EPS 150 mm, placaj caramida aparenta, tencuiala+glet+zugraveala; piatra naturala pe fatada, acoperis tabla Bilka, sistem fluvial, tamplarie Salamander, incalzire in pardoseala cu centrala proprie pe gaz Immergas, colectare apa de ploaie in camine individuale, fundatie adanca intre 2,10m-1,60m. Totodata dispune si de instalatie pentru montare panuri fotovoltaice si priza pentru incarcare masini electrice. Imobilele se predau la stadiul de semifinisat, cu o mana de glet, iar la cerere se pot finisa contracost punandu-se designer la dispozitie pentru alegerea finisajelor si dessing-ului. Casa este situata pe 3 nivele: P + E+M , in suprafata de 119.82mp cu o gradina de 60.50mp si un loc de parcare in lateralul casei care se poate amenaja in 2 locuri daca se doreste. Casa este compatimentata astfel: Parter - hol acces, spatiu pentru depozitare sub casa scarii, baie, living + bucatarie si terasa de 4.59mp Etaj - hol, 2 dormitoare (unul din ele fiind master bedroom avand un dressing spatios si baie proprie), un balcon cu acces din ambele dormitoare, 2 bai Mansarda - hol, dormitor, baie cu velux si un spatiu de depozitare generos de 11.90mp Pretul nu include TVA !! Pentru mai multe informatii se poate pune la dispozitie jurnal foto din perioada constructiei si proiect tehnic! Pentru mai multe informatii va asteptam la vizionare si nu o sa fiti dezamagiti! Cod oferta / ID BLITZ: P144071
Citește mai mult Citește mai puțin
Nemobilat Centrală proprie Încălzire prin pardoseală 1 Parcare 1 Parcare / Garaj / Parcare subterană

Detalii casă

ID anunț: XFTI11119 Copiat! 261089783 Copiat!
Actualizat în: 27 Februarie 2026
Suprafață construită: 182.45 mp
Nr. bucătării: 1
Nr. băi: 4
Nr. balcoane / Terase / Logii: 1
Nr. terase: 1
Front stradal: 20.5 m
An construcție: 2025 (La gri)
Structură rezistență: Cărămidă
Regim înălțime: P+1E+M

Utilități

Utilități
Curent Apă Canalizare Gaze
Amenajare străzi
Asfaltate
Comision
%

Certificat energetic:

Clasa energetică: B

Disponibilitate proprietate:

imediat

Puncte de interes

Mijloace transport
bus-station
M-Cartier Terra
Stații autobuz aprox. 841 m
bus-station
M-Prof. Dumitru Mocanu
Stații autobuz aprox. 1087 m
bus-station
M-Prof. Dumitru Mocanu E
Stații autobuz aprox. 1092 m
bus-station
M-Prof. Dumitru Mocanu V
Stații autobuz aprox. 1095 m
Recreere
park
Parc
Parcuri aprox. 788 m
restaurant
Pizza Pizza
Restaurant aprox. 916 m
supermarket
Profi
Supermarket aprox. 1527 m
sports-ground
Teren Fotbal Sintetic
Terenuri sport aprox. 1682 m

Detalii despre preț și costuri

Costuri cu achiziția

Fără credit
9.132 RON
Credit ipotecar
11.015 RON
Noua casă
1.065 RON+ taxe notariale

i

Costuri adiționale mai puțin știute la achiziție: taxe notariale, comisioane etc.

Proprietăți recomandate

Detalii de contact

BLITZ

BLITZ ROMANIA

4.70(105 review-uri)

BLITZ
PRO

Abonează-te la newsletter să fii primul care primește cele mai noi recomandări de proprietăți și sfaturi de la experți.

CONTACT

Creează alertă

Salvează căutarea ca să primești pe email ultimele anunțuri publicate

Duplexuri cu 4+ camere de vânzare în Florești, Județul Cluj