Duplex semifinisat - 4 camere I SU 160mp I ST 200mp - Stadionului

189.990 € + TVA

Florești, Județul Cluj

Nr. cam.:
4
Sup. utilă:
160 mp
Sup. teren:
200 mp
Tip prop.:
Duplex
  • • Locație aproximativă

Descriere casă

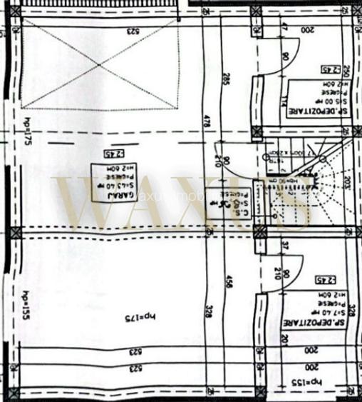
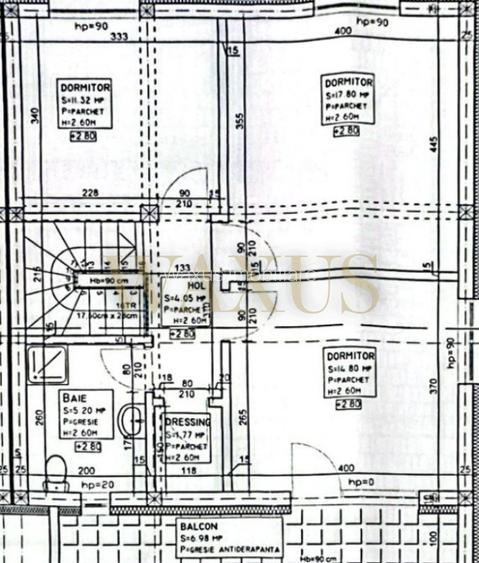
Waxus Imobiliare vă propune spre vânzare un duplex modern, situat pe strada Tineretului, în comuna Florești, compus din două unități dispuse pe 3 niveluri, cu termen de predare în iulie 2026. Fiecare unitate are o suprafață utilă de 160 mp și este amplasată pe un teren de 200 mp. Compartimentarea include spațiu de depozitare, living cu bucătărie open-space, 3 dormitoare, 2 băi, dressing, balcon la etaj și pod pentru depozitare. Detalii tehnice: încălzire în pardoseală, tâmplărie cu geam tripan, acoperiș cu țiglă ceramică și izolație exterioară de 15 cm. În preț sunt incluse garajul propriu și parcări exterioare. La pretul afisat in anunt se adauga TVA. Pentru informații suplimentare sau pentru programarea unei vizionări, vă invităm să ne contactați. ID extern: P144600
Citește mai mult Citește mai puțin
Nemobilat Centrală proprie Încălzire prin pardoseală 1 Parcare 1 Garaj Bine întreținut (Bună)

Detalii casă

ID anunț: XDKC1102I Copiat! 271898792 Copiat!
Actualizat în: 28 Martie 2026
Suprafață construită: 170 mp
Nr. bucătării: 1
Nr. băi: 2
Nr. balcoane / Terase / Logii: 1
Suprafață terase: 1 mp
An construcție: 2026 (În construcție)
Structură rezistență: Cărămidă
Regim înălțime: P+1E

Utilități

Ușă intrare
Metal
Izolații termice
Exterior
Ferestre cu geam termopan
PVC PVC
Contorizare
Apometre Contor căldură Contor gaz
Facilități imobil
Interfon
Utilități
Curent Apă Canalizare Gaze CATV
Internet
Fibră optică
Amenajare străzi
Asfaltate
Comision
2.3%

Puncte de interes

Mijloace transport
bus-station
Somesului
Stații autobuz aprox. 742 m
bus-station
Poligonului E
Stații autobuz aprox. 753 m
bus-station
M-Poligonului E
Stații autobuz aprox. 753 m
bus-station
Oncos N
Stații autobuz aprox. 756 m
Recreere
restaurant
Sara Grand Resort**** (en)
Restaurant aprox. 76 m
bar
City Cafe
Bar aprox. 580 m
supermarket
Diana
Supermarket aprox. 996 m
park
Parc
Parcuri aprox. 1077 m

Detalii despre preț și costuri

Costuri cu achiziția

Fără credit
37.757 RON
Credit ipotecar
39.846 RON
Noua casă
1.312 RON+ taxe notariale

i

Costuri adiționale mai puțin știute la achiziție: taxe notariale, comisioane etc.

Proprietăți recomandate

Detalii de contact

Waxus Imobiliare

Walter Condello Manager Agentie

Waxus Imobiliare
PRO

Abonează-te la newsletter să fii primul care primește cele mai noi recomandări de proprietăți și sfaturi de la experți.

CONTACT

Creează alertă

Salvează căutarea ca să primești pe email ultimele anunțuri publicate

Duplexuri cu 4+ camere de vânzare în Florești, Județul Cluj