Casa tip duplex, semifinisat, 120 mp utili, 150 mp teren, zona Fagului

179.000 €

Florești, Județul Cluj

Nr. cam.:
4
Sup. utilă:
120 mp
Sup. teren:
150 mp
Tip prop.:
Duplex
  • • Locație exactă

Descriere casă

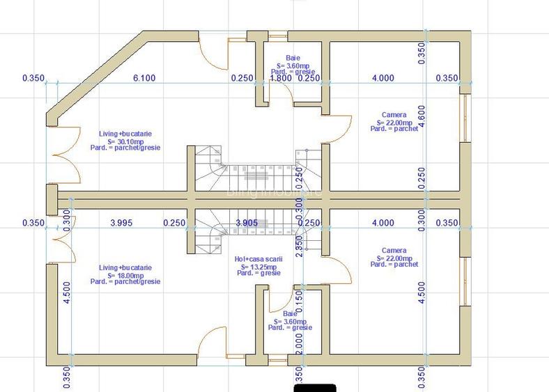
Bling Imobiliare ofera spre vanzare 2 unitati de duplex situat in zona Fagului, intr-o zona linistita si aerisita, ideala pentru familii care isi doresc confort si spatiu. Detalii generale: Suprafata utila: 120 mp Pret: 180.000 € (TVA inclus) Finalizare: iunie–iulie 2026 Compartimentare: • Living spatios cu bucatarie open-space, • 3 dormitoare luminoase, • 2 bai, • Balcon, • Pod pentru depozitare. Dotari si finisaje: • Incalzire in pardoseala, • Geamuri tripan pentru izolatie superioara, • Țigla ceramica de calitate, • Constructie moderna in zona linistita din Floresti. Pentru detalii suplimentare sau vizionari, nu ezitati sa ma contactati! ID Extern: P12205
Citește mai mult Citește mai puțin
Curte Centrală proprie Încălzire prin pardoseală

Detalii casă

ID anunț: XE7D11167 Copiat! 272205133 Copiat!
Actualizat în: 02 Martie 2026
Nr. bucătării: 1
Nr. băi: 2
Nr. balcoane / Terase / Logii: 1
An construcție: 2025 (În construcție)
Structură rezistență: Cărămidă
Regim înălțime: P+1E

Utilități

Utilități
Curent Apă Canalizare Gaze
Ușă intrare
PVC
Ferestre cu geam termopan
PVC
Alte spații utile
Spațiu depozitare
Amenajare străzi
Asfaltate Iluminat stradal Mijloace de transport în comun
Comision
standard

Disponibilitate proprietate:

imediat

Puncte de interes

Mijloace transport
bus-station
Teilor
Stații autobuz aprox. 194 m
bus-station
Stejarului
Stații autobuz aprox. 254 m
bus-station
Cetate
Stații autobuz aprox. 337 m
bus-station
Cetate
Stații autobuz aprox. 402 m
Recreere
park
Parc
Parcuri aprox. 521 m
cafe
Classic Caffe
Cafenea aprox. 561 m
sports-ground
Teren Fotbal Sintetic
Terenuri sport aprox. 657 m
supermarket
Profi
Supermarket aprox. 780 m

Detalii despre preț și costuri

Costuri cu achiziția

Fără credit
9.048 RON
Credit ipotecar
10.920 RON
Noua casă
1.052 RON+ taxe notariale

i

Costuri adiționale mai puțin știute la achiziție: taxe notariale, comisioane etc.

Proprietăți recomandate

Detalii de contact

Bling Imobiliare

Andreea Ciolac Master Broker

Bling Imobiliare

Abonează-te la newsletter să fii primul care primește cele mai noi recomandări de proprietăți și sfaturi de la experți.

CONTACT

Creează alertă

Salvează căutarea ca să primești pe email ultimele anunțuri publicate

Duplexuri cu 4+ camere de vânzare în Florești, Județul Cluj