Duplex semifinisat cu CF la zi P+E zona Terra

200.000 €

Florești, Județul Cluj

Nr. cam.:
4
Sup. utilă:
92 mp
Sup. teren:
126 mp
Tip prop.:
Duplex
  • • Locație aproximativă

Descriere casă

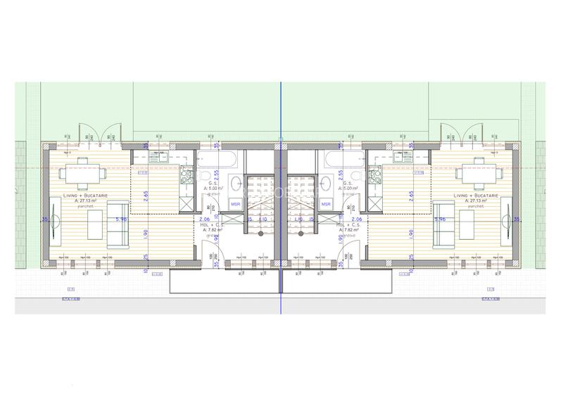
Suprafata duplex 92 mp, teren 131 mp ( in care intra suprafata amprentei, al spatiului verde si 1 loc de parcare), drum de acces si acces la locul de joaca. Finisaje exterioare: Geamuri termopan tripan Salamander cu 3 sticle si 6 camere, izolatie exterioara 10 cm, incalzire prin pardoseala marca Tece la parter si etaj, centrala termica Ariston clas 1 cu 5 ani garantie, culoare decorativa pe fatade, elemente de piatra decorative, acoperis tigla metalica Wetterbest si izolatie cu un strat de celuloza de 15 cm, caramida Cemacon, Finisaje interioare: pereti gletuiti, sape, instalatii termice, sanitare si electrice trase pe pozitie. Locul de parcare este amenajat si pavat cu dale. Compartimentare: -parter: hol, bucatarie+living si acces in gradina, 1 baie, 1 hol si casa scarii. -etaj: 3 dormitoare, 1 hol, 1 baie, casa scarii. Pret de vanzare 200.000 euro include tva 21%. Ocupabil imediat. Comision agentie 2%.
Citește mai mult Citește mai puțin
Centrală proprie Încălzire prin pardoseală 1 Parcare

Detalii casă

ID anunț: X7G101045 Copiat! 274176679 Copiat!
Actualizat în: 04 Martie 2026
Nr. bucătării: 1
Nr. băi: 2
Învelitoare acoperiș: Tabla
An construcție: 2025 (Finalizată)
Structură rezistență: Cărămidă
Regim înălțime: P+1E

Utilități

Destinație
Rezidențial
Ușă intrare
PVC
Izolații termice
Exterior
Ferestre cu geam termopan
PVC
Utilități
Gaze Apă Canalizare Curent
Amenajare străzi
Asfaltate
Comision
2%

Vecinătăți:

zona Terra

Alte detalii despre preț:

include TVA 21%.

Disponibilitate proprietate:

imediat

Puncte de interes

Mijloace transport
bus-station
Primaria Floresti S
Stații autobuz aprox. 154 m
bus-station
Primaria Floresti N
Stații autobuz aprox. 159 m
bus-station
Profi V
Stații autobuz aprox. 542 m
bus-station
Iuliu Hossu
Stații autobuz aprox. 668 m
Recreere
supermarket
Lidl
Supermarket aprox. 38 m
park
Parc
Parcuri aprox. 288 m
restaurant
Da Cristiano
Restaurant aprox. 305 m
sports-ground
Teren Fotbal Sintetic
Terenuri sport aprox. 737 m

Detalii despre preț și costuri

Costuri cu achiziția

Fără credit
30.162 RON
Credit ipotecar
32.124 RON
Noua casă
1.160 RON+ taxe notariale

i

Costuri adiționale mai puțin știute la achiziție: taxe notariale, comisioane etc.

Proprietăți recomandate

Abonează-te la newsletter să fii primul care primește cele mai noi recomandări de proprietăți și sfaturi de la experți.

CONTACT

Creează alertă

Salvează căutarea ca să primești pe email ultimele anunțuri publicate

Duplexuri cu 4+ camere de vânzare în Florești, Județul Cluj