Casa 4 camere de vanzare in Terra, Floresti

160.000 €

Florești, Județul Cluj

Nr. cam.:
4
Sup. utilă:
119 mp
Sup. teren:
60 mp
Tip prop.:
Duplex
  • • Locație aproximativă

Descriere casă

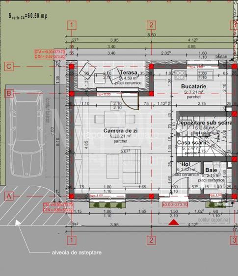
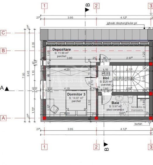
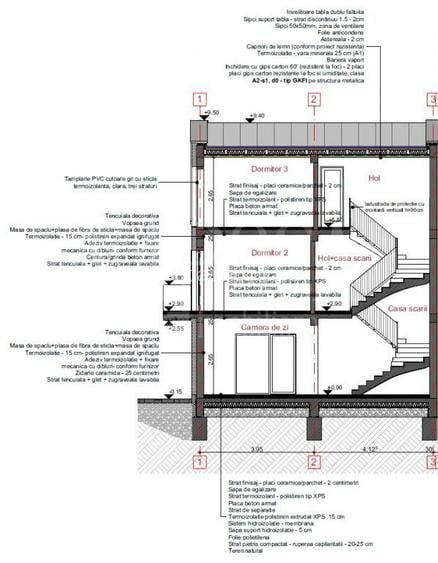
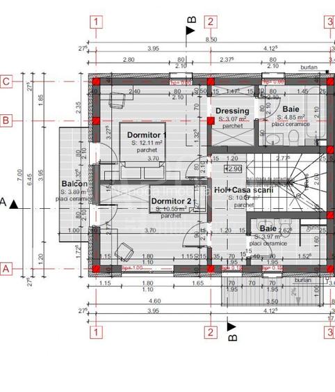
Duplex de vanzare in cartierul Terra, Floresti! Va propunem spre vanzare o casa de tip duplex, stadiul semifinisat, finalizata in anul 2025. Casa dispune de regimul de inaltime P+E+M, cu suprafata utila de 119 mp si prezinta urmatoarea compartimentare: Parter: - 1 hol acces; - 1 baie; - 1 camera de zi; - 1 bucatarie; - 1 spatiu de depozitare; - 1 terasa de 5 mp. Etaj: - 1 hol; - 2 dormitoare, dintre care unul cu dressing si baie; - 1 baie; - 1 balcon de 4 mp. Mansarda: - 1 hol; - 1 baie; - 1 dormitor care poate fi utilizat ca si birou; - 1 spatiu de depozitare. Casa dispune de o gradina privata de 60 mp si 1 loc de parcare. Accesul se face pe drum privat cu latime de 6 m. Receptia se va face in septembrie 2025. Confortul termic este realizat prin incalzire in pardoseala. La cerere, casa se poate finisa, avand la dispozitie o gama variata de materiale. La pretul afisat se adauga TVA de 19%. Pentru mai multe informatii si pentru a stabili o vizionare, va stam cu drag la dispozitie! Echipa Napoca Imobiliare ID oferta: 153520
Citește mai mult Citește mai puțin
Nemobilat 1 Parcare

Detalii casă

ID anunț: X57Q112OO Copiat! 275371619 Copiat!
Actualizat în: 01 Aprilie 2026
Tip tranzacție: De vânzare prin agent
Nr. bucătării: 1
Nr. băi: 4
Nr. balcoane / Terase / Logii: 1
Nr. terase: 1
Front stradal: 13.0 m
Învelitoare acoperiș: Tabla
An construcție: 2025
Regim înălțime: P+1E+M
Modalitate de plată: Cash sau Credit

Utilități

Ferestre cu geam termopan
PVC
Utilități
Curent Apă Canalizare Gaze Telefon
Internet
Cablu Wireless
Amenajare străzi
Iluminat stradal Mijloace de transport în comun Asfaltate
Comision
standard

Disponibilitate proprietate:

Imediata

Puncte de interes

Mijloace transport
bus-station
Eroilor V
Stații autobuz aprox. 730 m
bus-station
Eroilor E
Stații autobuz aprox. 733 m
bus-station
Teilor
Stații autobuz aprox. 740 m
bus-station
Stejarului
Stații autobuz aprox. 747 m
Recreere
park
Parc
Parcuri aprox. 71 m
restaurant
Pizza Pizza
Restaurant aprox. 167 m
supermarket
Profi
Supermarket aprox. 810 m
sports-ground
Teren Fotbal Sintetic
Terenuri sport aprox. 911 m

Detalii despre preț și costuri

Costuri cu achiziția

Fără credit
Credit ipotecar
Noua casă

i

Costuri adiționale mai puțin știute la achiziție: taxe notariale, comisioane etc.

Acces la informații premium după autentificare
Login Gratuit

Proprietăți similare

Duplex cu 5 camere în Florești
159.900 €
Județul Cluj, Florești
5 camere
122,97 mp
88 mp teren
Duplex cu 4 camere în Chinteni
151.250 €
Județul Cluj, Chinteni
4 camere
120 mp
200 mp teren
Duplex cu 5 camere în Chinteni
149.919 €
Județul Cluj, Chinteni
5 camere
110,35 mp
249 mp teren

Detalii de contact

Napoca Imobiliare

Napoca Imobiliare Manager Agentie

Napoca Imobiliare
PRO

Abonează-te la newsletter să fii primul care primește cele mai noi recomandări de proprietăți și sfaturi de la experți.

CONTACT

Creează alertă

Salvează căutarea ca să primești pe email ultimele anunțuri publicate

Duplexuri cu 4+ camere de vânzare în Florești, Județul Cluj