Duplex P+E, 4 camere si gradina, Floresti

235.000 €

Florești, Județul Cluj

Nr. cam.:
4
Sup. utilă:
92 mp
Sup. teren:
200 mp
Tip prop.:
Duplex
  • • Locație aproximativă

Descriere casă

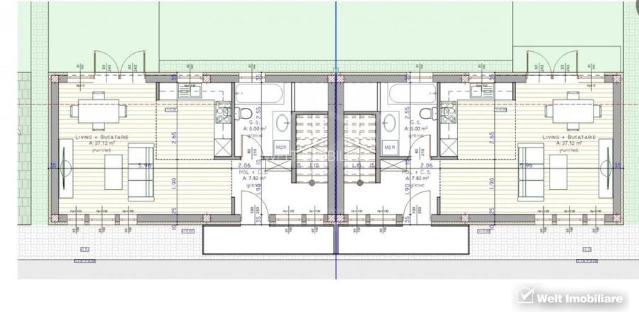
Welt Imobiliare va propune pentru de vanzare o casa cu 4 camere, situata optim in Floresti , la cateva minute de supermarket-uri, statie autobuz si gradinite. Casa este pe 2 niveluri, si are o suprafata utila de 92 mp . Face parte dintr-un ansamblu privat, inchis cu bariera, prevazut cu un un loc de joaca pentru copii, punct gospodaresc ingropat si drum privat. Cu o arhitectura moderna, sunt construite din materiale premium (caramida Cemacon, ferestre tripan Salamander (44 mm, Four Seasons), sistem invelitoare acoperis marca Wetterbest, incalzire in pardoseala atat la parter cat si la etaj marca Rehau, centrala termica marca Bosch, izolatie termica exterioara cu polistiren de 15 cm iar la acoperis cu celuloza de 15 cm, fatada principala fiind placata cu piatra. Le-am denumit case cuplate deoarece spre deosebire de duplexuri, au fundatii diferite si pereti dubli, izolati antifonic. Pretul afisat include TVA. Terenul aferent casei are o suprafata de 200 mp, oferind liniste si o priveliste minunata viitorilor locatari. Pentru alte detalii sau o oferta personalizata, va stam la dispozitie.
Citește mai mult Citește mai puțin
Parțial mobilat Centrală proprie Încălzire prin pardoseală 2 Parcări Bine întreținut (Bună)

Detalii casă

ID anunț: X1KA111I2 Copiat! 204268068 Copiat!
Actualizat în: 01 Aprilie 2026
Suprafață construită: 110 mp
Nr. bucătării: 1
Nr. băi: 2
An construcție: 2025 (Finalizată)
Structură rezistență: Cărămidă
Regim înălțime: P+1E

Utilități

Pereți
Vopsea lavabilă
Podele
Parchet Gresie
Ușă intrare
Metal
Izolații termice
Exterior
Ferestre cu geam termopan
PVC
Bucătărie
Mobilată
Electrocasnice
Hotă
Diverse
Telecomandă poartă acces auto
Utilități
Curent Apă Canalizare Gaze
Amenajare străzi
Asfaltate

Puncte de interes

Mijloace transport
bus-station
M-Cartier Terra
Stații autobuz aprox. 343 m
bus-station
M-Prof. Dumitru Mocanu
Stații autobuz aprox. 508 m
bus-station
M-Prof. Dumitru Mocanu E
Stații autobuz aprox. 509 m
bus-station
M-Prof. Dumitru Mocanu V
Stații autobuz aprox. 518 m
Recreere
park
Parc
Parcuri aprox. 305 m
restaurant
Pizza Pizza
Restaurant aprox. 398 m
supermarket
Profi
Supermarket aprox. 865 m
sports-ground
Teren Fotbal Sintetic
Terenuri sport aprox. 1072 m

Detalii despre preț și costuri

Costuri cu achiziția

Fără credit
10.974 RON
Credit ipotecar
13.085 RON
Noua casă
1.338 RON+ taxe notariale

i

Costuri adiționale mai puțin știute la achiziție: taxe notariale, comisioane etc.

Proprietăți recomandate

Detalii de contact

WELT IMOBILIARE

Welt Imobiliare

4.35(22 review-uri)

WELT IMOBILIARE
PRO

Abonează-te la newsletter să fii primul care primește cele mai noi recomandări de proprietăți și sfaturi de la experți.

CONTACT

Creează alertă

Salvează căutarea ca să primești pe email ultimele anunțuri publicate

Duplexuri cu 4+ camere de vânzare în Florești, Județul Cluj