AX1085 Giroc, 1/2 Duplex Parter Cu Perete Dublu Despartitor

199.999 €

Giroc, Județul Timiș

Nr. cam.:
4
Sup. utilă:
114 mp
Sup. teren:
445 mp
Tip prop.:
Duplex
  • • Locație aproximativă

Descriere casă

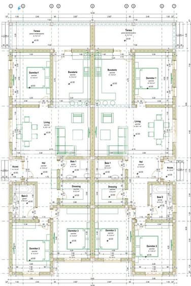
OXIA prezinta spre vanzare 1/2 duplex in Giroc - cu acces de pe Strada Naturii, aproape de primarie, cu suprafata terenului de 445 mp, suprafata connstruita la sol de 150 mp, suprafata utila de 114 mp + terasa acoperita de 15 mp, compartimentata astfel: Hol acces Living + Bucatarie open space (cu posibilitate de inchidere) Trei Dormitoare generoase Baie cu cada si geam de aerisire Baie cu dus Dressing/Camera tehnica Terasa cu acces din bucatarie Imobilul va beneficia de finisaje moderne: geamuri tripan, instalatie electrica pe cupru, parchet, gresie si faianta, lavabil, usi interior din mdf - toate finisajele vor fi la alegerea clientului intr-un anumit buget. Incalzirea se realizeaza prin pardoseala, cu ajutorul cetralei proprii pe gaz. Casa este construita din caramida poroterm, izolata cu polistiren de 10 cm, acoperita cu tigla. Pod generos inalt accesibil cu placa de beton. Pentru o intimitate si izolatie fonica cat mai sporita acest duplex are perete despartitor de 40 cm. Dispune de toate utilitatile iar asfaltul este de 50 m. Termen de predare FEBRUARIE - MARTIE 2026. Pret: 199 999 EURO + comision agentie. Se accepta si achizitionarea prin intermediul unui credit bancar. Oferim consultanta financiara si juridica pe tot parcursul procesului. Pentru stabilirea unei vizionari sau pentru mai multe detalii ne puteti contacta la numarul de telefon ID ANUNT: AX1085
Citește mai mult Citește mai puțin
Nemobilat Grădină Curte Centrală proprie Încălzire prin pardoseală 2 Parcări

Detalii casă

ID anunț: XBU1110QR Copiat! 268641467 Copiat!
Actualizat în: 06 Martie 2026
Suprafață construită: 150 mp
Nr. bucătării: 1
Nr. băi: 2
Nr. terase: 1
Suprafață terase: 15 mp
An construcție: 2025 (În construcție)

Utilități

Pereți
Faianță Vopsea lavabilă
Podele
Gresie Parchet
Ușă intrare
Metal
Uși interior
Celulare
Izolații termice
Exterior
Ferestre cu geam termopan
PVC
Contorizare
Apometre Contor căldură Contor gaz
Alte spații utile
Dressing
Facilități imobil
Acoperiș Interfon Spații agrement
Utilități
Curent Apă Canalizare CATV Gaze Telefon
Internet
Cablu
Amenajare străzi
Iluminat stradal Mijloace de transport în comun Asfaltate
Comision
standard

Disponibilitate proprietate:

Imediat

Puncte de interes

Mijloace transport
bus-station
Giroceana
Stații autobuz aprox. 541 m
bus-station
Giroceana
Stații autobuz aprox. 999 m
bus-station
Giroc
Stații autobuz aprox. 1002 m
train-station
Halta Giroc hc
Stații tren aprox. 1021 m
Școală
school
Scoala Gimnaziala Giroc
Școli aprox. 812 m
school
Scoala Generala si Gradinita Giroc (en)
Școli aprox. 827 m
school
Scoala Gimnaziala Iosif Ciorogariu
Școli aprox. 1193 m
Recreere
supermarket
Profi City
Supermarket aprox. 575 m
park
Parc
Parcuri aprox. 675 m
restaurant
Trio hotel/restaurant (en)
Restaurant aprox. 979 m
sports-ground
Teren sportiv
Terenuri sport aprox. 1300 m

Detalii despre preț și costuri

Costuri cu achiziția

Fără credit
9.771 RON
Credit ipotecar
11.733 RON
Noua casă
1.160 RON+ taxe notariale

i

Costuri adiționale mai puțin știute la achiziție: taxe notariale, comisioane etc.

Proprietăți recomandate

Detalii de contact

Abonează-te la newsletter să fii primul care primește cele mai noi recomandări de proprietăți și sfaturi de la experți.

CONTACT

Creează alertă

Salvează căutarea ca să primești pe email ultimele anunțuri publicate

Duplexuri cu 4+ camere de vânzare în Giroc, Județul Timiș