GIROC - 4 Camere - Toate utilitatile - Zona linistita - Finisaje la alegere

140.000 € + TVA

Giroc, Județul Timiș

Nr. cam.:
4
Sup. utilă:
119 mp
Sup. teren:
260 mp
Tip prop.:
Duplex
  • • Locație aproximativă

Descriere casă

OPORTUNITATE - 4 Camere - Finisaje la alegere - Toate utilitatile   Agentia imobiliara PRIMUM are placerea de a va prezenta spre vanzare un duplex cu 4 camere, situat in Giroc, intr-o zona linistita si in plina dezvoltare. ? Suprafata: 119 mp utili; ? Compartimentare: Decomandat;   Compartimentare interioara: PARTER: - hol de acces; - living cu iesire pe terasa; - bucatarie deschisa; - baie; ETAJ: - hol de acces; - 3 dormitoare; - baie;   ?Confort termic sporit: centrala proprie pe gaz, cu incalzire in pardoseala. ? Duplexul se vinde finisat, cu predare la cheie, respectiv toate utilitatile prezente. ? Loc de parcare in fata imobilului. !!! Pretul nu contine TVA !!! Perfect pentru o familie sau un cuplu care cauta un camin confortabil, duplexul ofera un ambient linistit, intimitate datorita despartirii prin camera si funtionalitate sporita, facilitand nevoile unei vieti moderne. ? Suntem la un telefon distanta pentru detalii suplimentare sau pentru a programa o vizionare. Va asteptam cu drag!
Citește mai mult Citește mai puțin
Încălzire prin pardoseală 2 Parcări

Detalii casă

ID anunț: XCPS113P7 Copiat! 271462285 Copiat!
Actualizat în: 02 Februarie 2026
Suprafață construită: 150 mp
Suprafață desfășurată: 150 mp
Nr. bucătării: 1
Nr. băi: 2
Nr. terase: 2
Suprafață terase: 27 mp
Front stradal: 1 m
Învelitoare acoperiș: Tabla
An construcție: 2025 (Finalizată)
Structură rezistență: Beton
Regim înălțime: P+1E

Utilități

Destinație
Rezidențial
Pereți
Faianță
Podele
Parchet Gresie
Izolații termice
Exterior
Utilități
Curent Apă Canalizare Gaze CATV Telefon
Amenajare străzi
Asfaltate Pietruite
Comision
standard%

Certificat energetic:

Clasa energetică: A

Alte detalii:

OPORTUNITATE - 4 Camere - Finisaje la alegere - Toate utilitatile
 

Agentia imobiliara PRIMUM are placerea de a va prezenta spre vanzare un duplex cu 4 camere, situat in Giroc, intr-o zona linistita si in plina dezvoltare.
? Suprafata: 119 mp utili;
? Compartimentare: Decomandat;
 

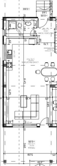
Compartimentare interioara:
PARTER:
- hol de acces;
- living cu iesire pe terasa;
- bucatarie deschisa;
- baie;
ETAJ:
- hol de acces;
- 3 dormitoare;
- baie;
 

?Confort termic sporit: centrala proprie pe gaz, cu incalzire in pardoseala.
? Duplexul se vinde finisat, cu predare la cheie, respectiv toate utilitatile prezente.
? Loc de parcare in fata imobilului.
!!! Pretul nu contine TVA !!!

Perfect pentru o familie sau un cuplu care cauta un camin confortabil, duplexul ofera un ambient linistit, intimitate datorita despartirii prin camera si funtionalitate sporita, facilitand nevoile unei vieti moderne.
? Suntem la un telefon distanta pentru detalii suplimentare sau pentru a programa o vizionare. Va asteptam cu drag!

Puncte de interes

Mijloace transport
bus-station
Giroceana
Stații autobuz aprox. 1322 m
train-station
Halta Giroc hc
Stații tren aprox. 1892 m
bus-station
Giroc
Stații autobuz aprox. 1901 m
train-station
Halta Semenic Hm (en)
Stații tren aprox. 1989 m
Școală
school
Scoala Generala si Gradinita Giroc (en)
Școli aprox. 816 m
school
Scoala Gimnaziala Giroc
Școli aprox. 823 m
Recreere
sports-ground
Teren Giroc
Terenuri sport aprox. 239 m
restaurant
Complex Flonta
Restaurant aprox. 429 m
supermarket
Jelly Market
Supermarket aprox. 907 m
park
Parc
Parcuri aprox. 1610 m

Detalii despre preț și costuri

Costuri cu achiziția

Fără credit
8.718 RON
Credit ipotecar
10.550 RON
Noua casă
1.003 RON+ taxe notariale

i

Costuri adiționale mai puțin știute la achiziție: taxe notariale, comisioane etc.

Proprietăți recomandate

Detalii de contact

PRIMUM

Vlad Stefanescu Team Leader si Consultant Imobiliar

4.88(3 review-uri)

PRIMUM
PRO

Abonează-te la newsletter să fii primul care primește cele mai noi recomandări de proprietăți și sfaturi de la experți.

CONTACT

Creează alertă

Salvează căutarea ca să primești pe email ultimele anunțuri publicate

Duplexuri cu 4+ camere de vânzare în Giroc, Județul Timiș