🏡 Casa noua tip Duplex de vânzare mobilata si utilata – Giroc.
📍 Localizare
Casa este situată într-o zonă liniștită și sigură, ideală pentru familii cu copii.
• Acces pe drum pietruit până în fața casei
• Aproape de grădiniță, în spatele DAF
• Acces facil către Timișoara și centura rutieră
🛋 Compartimentare și dotări
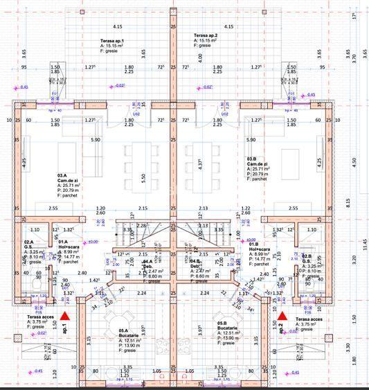
Bucatarie inchisa, 2 bai, 3 dormitoare, living spațios, terasa.
Parter:
• Bucătărie mare, închisă (12,5 mp), cu insulă și loc de luat masa
• Mobilier la comandă
• Electrocasnice premium: plită AEG, cuptor Bosch, hotă Turbionnaire, mașină de spălat vase Whirlpool MaxiSpace, combină frigorifică Samsung 508 L, baterie și chiuvetă Franke
• Baie cu duș
• Hol spațios și scară din lemn masiv cu balustradă și riflaje. Mobilier pentru depozitare și cuier
• Living 26 mp, luminos, cu geamuri mari și ieșire pe terasă; canapea Mobelhaus (material premium, rezistent la lichide și ușor de întreținut)
• Terasă generoasă de aproximativ 18 mp
Etaj:
• Dormitor matrimonial cu dressing (13 mp)
• Două dormitoare secundare (12,2 mp fiecare)
• Baie mare cu cadă și mașină de spălat smart LG
• Hol spațios cu mobilier pentru depozitare și acces la pod înalt, izolat, cu spațiu generos
• Aer condiționat LG 18.000 BTU
• Rulouri exterioare la toate dormitoarele
🏗 Finisaje și instalații
• Izolație cu polistiren și tâmplărie tripan Salamander
• Încălzire în pardoseală, centrală Immergas, distribuitoare cu pompă pe fiecare etaj
• Termostate de ambient în fiecare cameră și bucătărie
• Pardoseală SPC Berry Alloc, dedicată pentru încălzirea în pardoseală și rezistentă la apă
• Gresie și faianță Cersanit – Love you navy
• Uși Porta Doors premium
• Instalație electrică cu panou separat pe fiecare etaj, siguranțe diferențiale, circuite dedicate pentru consumatori mari, aparataj Gewiss
• TV + Internet în fiecare cameră
🌳 Curte și exterior
• Teren total: 250 mp
• Locuri de parcare în curte și în fața casei
• Terasa mare (16mp) acoperita si incasetata, se poate închide
• Partea din față este amenajată cu flori și marmură mărunțită, pentru un aspect elegant și îngrijit
• În spate: gazon, foraj propriu, pompă și aspersor automat programat pentru irigații
• Zonă liniștită, ideală pentru familii cu copii
• Pregătită pentru camere video, video-interfon, automatizare poarta si sistem de alarma
ℹ️ Alte detalii
• Utilități: apă, gaz, curent, fibră optică
• Obiecte sanitare premium: Grohe, Hansgrohe, Ideal Standard – pentru eleganță, calitate și economie
• Mobilier la comandă, inclusiv în băi
• Totul este nou și in garanție
• Se vinde complet mobilată și utilată
Sediul central - Timișoara
Bulevardul Victor Babeș nr. 2, 300230, Timișoara, România
Tel: +40.374.40.44.98 / Fax: +40.256.401.179
Email: suport@imobiliare.ro
Luni - Vineri 08:00 - 20:00
Punct de lucru - București: Iride Business Park, Bld. Dimitrie
Pompeiu 9-9A, Clădirea B2B,
020335, Sector 2, București, România
CONTACT
Sediul central - Timișoara
Bulevardul Victor Babeș nr. 2, 300230, Timișoara, România
Tel: +40.374.40.44.98 / Fax: +40.256.401.179
Email: suport@imobiliare.ro
Luni - Vineri 08:00 - 20:00
Punct de lucru - București: Iride Business Park, Bld. Dimitrie
Pompeiu 9-9A, Clădirea B2B,
020335, Sector 2, București, România
Sună acum și cere detalii sau programează o vizionare.
Cere detalii prin email
*
*
*
*
Stații tren
Stații autobuz
Școli
Supermarket
Parcări
Terenuri sport
Parcuri
Restaurant
Halta Semenic Hm (en)
aprox.
895 m
Halta Giroc hc
aprox.
1453 m
Semenic
aprox.
1123 m
Giroceana
aprox.
1288 m
Giroc
aprox.
1478 m
Giroceana
aprox.
1599 m
Giroceana
aprox.
1913 m
Scoala Generala si Gradinita Giroc (en)
aprox.
1043 m
Scoala Gimnaziala Giroc
aprox.
1059 m
Jelly Market
aprox.
1160 m
Profi City
aprox.
1165 m
Profi City
aprox.
1455 m
Carrefour Market
aprox.
1470 m
Parcare
aprox.
924 m
Parcare
aprox.
1071 m
Parcare
aprox.
1089 m
Parcare
aprox.
1313 m
Parcare pentru clienti
aprox.
1491 m
Parcare
aprox.
1509 m
Teren Giroc
aprox.
1345 m
Parc
aprox.
1396 m
Trio hotel/restaurant (en)
aprox.
959 m
Restaurant Trio
aprox.
962 m
DAF Junior Pizza
aprox.
1039 m
DAF Junior
aprox.
1044 m
Daf Junior Giroc
aprox.
1044 m
Complex Flonta
aprox.
1545 m
casa leone
aprox.
1867 m
Înainte să pleci...
Ești sigur că ai văzut și aceste proprietăți?
189.990 €
Județul Timiș, Giroc
4 camere
101 mp
250 mp teren
180.000 €
Județul Timiș, Giroc
5 camere
122 mp
200 mp teren
199.000 €
Județul Timiș, Giroc
4 camere
136 mp
303 mp teren
154.990 €
Județul Timiș, Giroc
4 camere
110 mp
290 mp teren
194.900 €
Județul Timiș, Giroc
4 camere
109 mp
280 mp teren
194.990 €
Județul Timiș, Moșnița Nouă
4 camere
115 mp
350 mp teren
Creează alertă
Salvează căutarea ca să primești pe email ultimele anunțuri publicate
Duplexuri cu 4+ camere de vânzare în Giroc, Județul Timiș
Cere detalii prin email
*
*
*
*
Detaliile tale de contact vor fi partajate cu Imowest Imobiliare
Preț total962.745 RON (188.829 €)
Costuri cu achiziția9.326 RON
Preț de achiziție953.419 RON
Costuri cu achiziția9.326 RON
Comision agenție Întreabă agenţia
Onorariu notarial7.896 RON
Taxă înscriere OCPI1.430 RON
Preț de achiziție953.419 RON
Preț locuință953.419 RON
TVA 0%Inclus în prețul cerut
Cost total156.981 RON (30.789 €)
Avans (15%)143.013 RON
Cost achitat în prima lună2.735 RON
Costuri cu achiziția11.233 RON
Cost achitat în prima lună2.735 RON
Comision analiză dosar
400 RON - 900 RON
Taxă evaluare imobil(până la)
900 RON
Rata lunară (variabilă)4.247 RON
Asigurare anuală imobil953 RON
Arhivă electronică102 RON
Poliță PAD130 RON
Asigurare de viață/lună Costul este variabil. În funcție de banca aleasă, procentul variază între 0.0259% și 0.035% din soldul creditului.
Costuri cu achiziția11.233 RON
Comision agenție Întreabă agenţia
Onorariu notarial7.896 RON
Taxă întabulare OCPI1.430 RON
Autentificare contract credit1.907 RON
Preț de achiziție953.419 RON
Preț locuință953.419 RON
TVA 0%Inclus în prețul cerut
Preț de achiziție953.419 RON
Preț locuință953.419 RON
TVA 0%
Inclus în prețul cerut
Avans minim346.698 RON
Credit pe 30 de ani606.722 RON
Cost achitat în prima lună
Taxa evaluare imobil(până la)
900 RON
Rata lunară (variabilă)4.263 RON
Depozit colateral12.789 RON
Comision de garantare FNGCIMM79 RON
Asigurare anuală imobil953 RON
Poliță PAD130 RON
Tarif arhivă electronică102 RON
Costuri adiționale1.093 RON + taxe notariale
Asigurare viață și complexă (opțională)Costul este variabil. În funcție de banca aleasă, procentul variază între 0.0259% și 0.035% din soldul creditului
Onorariu notarialconform tarif notarial
Taxă întabulare OCPI1.093 RON
i
Toate valorile de mai sus sunt estimative și nu reprezintă în mod obligatoriu costurile exacte pe care le veți primi de la companiile/instituțiile prin care veți încheia tranzacția.