4

AX1177 Giroc, Vatra Veche, 1/2 Duplex Smart

197.000 €

Giroc, Județul Timiș

Nr. cam.:
4
Sup. utilă:
110 mp
Sup. teren:
275 mp
Tip prop.:
Duplex
  • • Locație aproximativă

Descriere casă

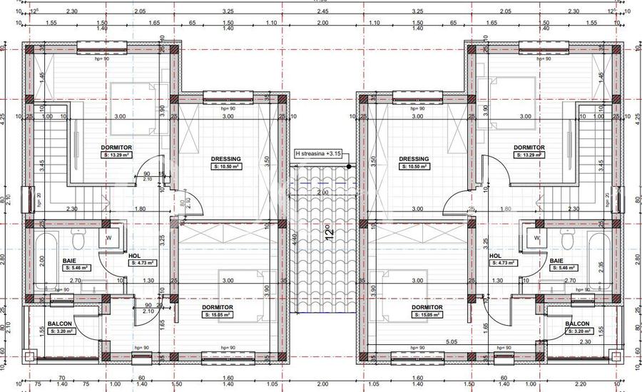
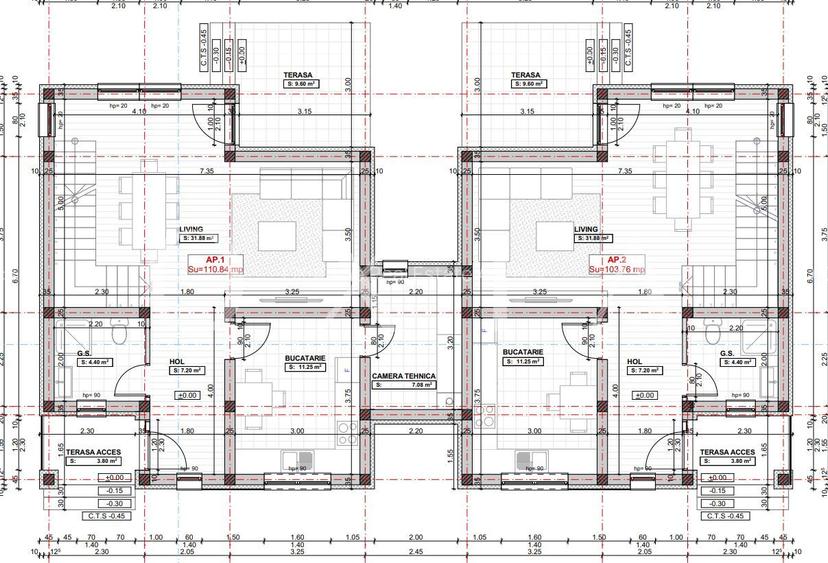
OXIA The Real Estate Agency ofera spre vanzare o proprietate deosebita, amplasata intr-o zona linistita din Giroc, Vatra Veche. Duplexul este unit prin camera tehnica si are un regim de inaltime P+1E+Pod si dispune de o suprafata utila de 110 mp, fiind construita pe un teren de 275 mp. Este o locuinta perfecta pentru cei care cauta confort, eleganta si dotari de ultima generatie. CARACTERISTICI PRINCIPALE: --> Compartimentare functionala: Parter: hol de acces, living spatios, bucatarie inchisa ,baie cu cabina de dus, camera tehnica. Etaj: trei dormitoare, baie cu cada, balcon cu accces dintr-un dormitor. Pod: accesibil, ideal pentru depozitare izolat cu spumă poliuretanică de 15 cm. --> Dotari premium: Incalzire prin pardoseala cu termostate ambientale. Sistem de aparataj Gewiss gama Chorus Smart (interfata Zigbee pentru automatizarea casei si control de la distanță). Supraveghere video, alarma si videointerfon. --> Finisaje de exceptie: Placari ceramice, parchet triplu stratificat, usi interioare celulare, scara din lemn masiv de stejar. Obiecte sanitare incastrate si baterii premim. Ferestre tripan cu glafuri de granit. --> Exterior amenajat cu atentie la detalii: Sistem de irigare automatizat pentru gazon, arbori ornamentali si arbusti. Terasa acoperita Gard din beton si porti automatizate. Proprietatea se vinde la cheie, cu toate contractele pentru utilitati incheiate (apa, canalizare, curent, gaz, internet). Termen de predare APRILIE-MAI 2026. Pozele sunt randar dar proiectul va arata 1-1. PRET: 197 000 EURO + comisionul agentiei. COD ANUNT: AX1177 Echipa OXIA ofera consultanta juridica si financiara pe tot procesul tranzactiei. Pentru mai multe detalii sau pentru programarea unei vizionari, va rugam sa ne contactati la numarul de telefon
0769 **** Vezi tot numărul
.
Citește mai mult Citește mai puțin
Nemobilat Curte Centrală proprie Încălzire prin pardoseală 2 Parcări

Detalii casă

ID anunț: XBU1110SC Copiat! 274116497 Copiat!
Actualizat în: 06 Martie 2026
Nr. bucătării: 1
Nr. băi: 2
Nr. balcoane / Terase / Logii: 1
Nr. terase: 2
Suprafață terase: 10 mp
An construcție: 2026 (În construcție)
Regim înălțime: P+1E

Utilități

Pereți
Faianță Vopsea lavabilă
Podele
Gresie Parchet
Ușă intrare
Metal
Uși interior
Celulare
Izolații termice
Exterior
Ferestre cu geam termopan
PVC
Contorizare
Apometre Contor căldură Contor gaz
Diverse
Telecomandă poartă acces auto
Alte spații utile
Dressing
Utilități
Curent Apă Canalizare CATV Gaze Telefon
Internet
Cablu
Servicii imobil
Supraveghere video
Amenajare străzi
Iluminat stradal Mijloace de transport în comun Asfaltate
Comision
standard

Disponibilitate proprietate:

Imediat

Puncte de interes

Mijloace transport
train-station
Halta Semenic Hm (en)
Stații tren aprox. 969 m
bus-station
Semenic
Stații autobuz aprox. 1061 m
bus-station
Giroceana
Stații autobuz aprox. 1719 m
train-station
Halta Giroc hc
Stații tren aprox. 1964 m
Școală
school
Scoala Generala si Gradinita Giroc (en)
Școli aprox. 1366 m
school
Scoala Gimnaziala Giroc
Școli aprox. 1381 m
Recreere
sports-ground
Teren Giroc
Terenuri sport aprox. 1252 m
restaurant
casa leone
Restaurant aprox. 1349 m
supermarket
Jelly Market
Supermarket aprox. 1494 m
park
Parc
Parcuri aprox. 1872 m

Detalii despre preț și costuri

Costuri cu achiziția

Fără credit
9.663 RON
Credit ipotecar
11.612 RON
Noua casă
1.144 RON+ taxe notariale

i

Costuri adiționale mai puțin știute la achiziție: taxe notariale, comisioane etc.

Proprietăți recomandate

Detalii de contact

Abonează-te la newsletter să fii primul care primește cele mai noi recomandări de proprietăți și sfaturi de la experți.

CONTACT

Creează alertă

Salvează căutarea ca să primești pe email ultimele anunțuri publicate

Duplexuri cu 4+ camere de vânzare în Giroc, Județul Timiș