Duplex cu 4 camere, bucatarie separata, toate utilitatile, la asfalt.

180.000 €

Giroc, Județul Timiș

Nr. cam.:
4
Sup. utilă:
120 mp
Sup. teren:
200 mp
Tip prop.:
Duplex
  • • Locație aproximativă
  • • Vizionare prin apel video

Descriere casă

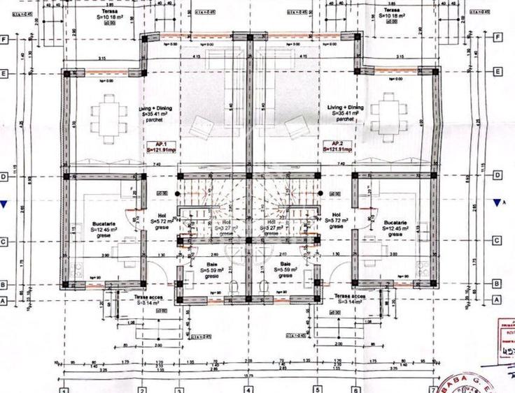
APOSTU ESTATE va propune spre vanzare un duplex situat in Giroc. Drumul de acces este asfaltat. Locatia imobilului se potriveste perfect celor ce isi doresc sa se detaseze de agitatia orasului. In apropiere sunt magazine si supermarket-uri precum Profi, Mega Image, Penny, Lidl, scoala si gradinita la o distanta de 10 minute. Proprietatea se intinde pe un teren de 200 mp imprejmuit cu gard de beton. Imobilul dispune de 120 mp utili + terasa de 10 mp si este compartimentat astfel: Parter: - hol acces - bucatarie - living si dining - baie cu geam si dus - terasa acoperita Etaj: - hol acces - 3 dormitoare dintre care unul cu baie proprie sau dressing - baie cu geam si cada - acces in pod Imobilul se vinde complet finalizat si pregatit pentru noul proprietar, atat in interior cat si in exterior. Termenul de predare fiind luna Mai 2026. Disponibile ambele jumatati. Detalii tehnice: Regim de inaltime Parter + Etaj + Pod. - constructie realizata in anul 2025 din caramida Porotherm de 25 cm. - izolata cu polistiren de 10cm EPS 80, decorativa siliconata. - pereti despartitori complet din caramida (fara rigips) tencuiti mecanizat finisati cu vopsea lavabila alba. - placa de beton peste parter si peste etaj, izolata cu vata de 10 cm, tavanele placate cu rigips. - acoperis de tigla, pod pe toata suprafata. - geamuri termopan cu 3 sticle pentru izolare atat fonica cat si termica superioara foarte mari si luminoase. - usa acces de termopan cu geam de sticla securizata, usi interioare import cu inchidere magnetica. - centrala proprie pe gaz sistem eficient de incalzire in pardoseala distribuitor separat pentru parter si etaj. aparataje modulare Gewis cu sigurante separate pentru fiecare consumator. - finisajele interioare sunt la alegerea noului proprietar. Amenajari exterioare: pavaj in partea din fata, acces auto doua locuri de parcare, alee pietonala perimetrala, poarta auto si poarta pietonala pregatite pentru automatizare. Utilitati: curent, apa de la retea, canalizare, gaz, internet prin fibra optica, cablu Tv. Pentru mai multe detalii nu ezitati sa ne contactati! Acceptam orice fel de credit bancar. Oferim consultanta si solutii financiare prin colaboratorii nostri pentru a obtine cel mai avantajos credit Ipotecar sau Noua Casa. Va asteptam cu drag la o vizionare chiar astazi! CP2538382
Citește mai mult Citește mai puțin
Nemobilat Grădină Curte Centrală proprie Încălzire prin pardoseală 2 Parcări

Detalii casă

ID anunț: XBAF114DG Copiat! 274388461 Copiat!
Actualizat în: 17 Aprilie 2026
Suprafață construită: 70 mp
Suprafață desfășurată: 130 mp
Nr. bucătării: 1
Nr. băi: 2
Nr. terase: 1
Suprafață terase: 10 mp
Front stradal: 10.0 m
Învelitoare acoperiș: Țiglă
An construcție: 2025 (Finalizată)
Structură rezistență: Cărămidă
Regim înălțime: P+1E

Utilități

Pereți
Vopsea lavabilă
Podele
Gresie Parchet
Ușă intrare
PVC
Uși interior
Celulare
Izolații termice
Exterior
Ferestre cu geam termopan
PVC
Contorizare
Apometre Contor gaz
Facilități imobil
Acoperiș
Utilități
Curent Apă Canalizare CATV Gaze Telefon
Internet
Cablu
Amenajare străzi
Iluminat stradal Mijloace de transport în comun Asfaltate
Comision
standard

Disponibilitate proprietate:

Imediat

Puncte de interes

Mijloace transport
bus-station
Giroc
Stații autobuz aprox. 283 m
train-station
Halta Giroc hc
Stații tren aprox. 292 m
bus-station
Giroceana
Stații autobuz aprox. 344 m
bus-station
Giroceana
Stații autobuz aprox. 382 m
Școală
school
Scoala Gimnaziala Giroc
Școli aprox. 849 m
school
Scoala Generala si Gradinita Giroc (en)
Școli aprox. 853 m
university
CENTRU REGIONALDE PREGATIRE PROFESIONALA PENTRU MAGISTRATI, GIROC, tIMISOARA
Universități aprox. 1414 m
school
Scoala Gimnaziala Iosif Ciorogariu
Școli aprox. 1651 m
Recreere
park
Parc
Parcuri aprox. 82 m
supermarket
Carrefour Market
Supermarket aprox. 106 m
restaurant
DAF Junior Pizza
Restaurant aprox. 362 m
sports-ground
Teren sportiv
Terenuri sport aprox. 1729 m

Detalii despre preț și costuri

Costuri cu achiziția

Fără credit
Credit ipotecar
Noua casă

i

Costuri adiționale mai puțin știute la achiziție: taxe notariale, comisioane etc.

Insight premium disponibil după login

Proprietăți similare

Duplex cu 4 camere în Giroc
189.000 €
Județul Timiș, Giroc
4 camere
101 mp
250 mp teren
Duplex cu 4 camere în Giroc
185.000 €
Județul Timiș, Giroc
4 camere
88 mp
323 mp teren
Duplex cu 4 camere în Giroc
170.000 €
Județul Timiș, Giroc
4 camere
124 mp
300 mp teren

Detalii de contact

APOSTU ESTATE

Alexandra Iulia Team Leader

APOSTU ESTATE
PRO

Abonează-te la newsletter să fii primul care primește cele mai noi recomandări de proprietăți și sfaturi de la experți.

Feedback apel

CONTACT

Creează alertă

Salvează căutarea ca să primești pe email ultimele anunțuri publicate

Duplexuri cu 4+ camere de vânzare în Giroc, Județul Timiș