14

DUPLEX 3 CAMERE, 2 BAI, 250 MP TEREN, VOROVESTI-MIROSLAVA

130.075 €

Miroslava, Iași

Nr. cam.:
3
Sup. utilă:
80 mp
Sup. teren:
250 mp
Tip prop.:
Duplex
  • • Locație aproximativă

Descriere casă

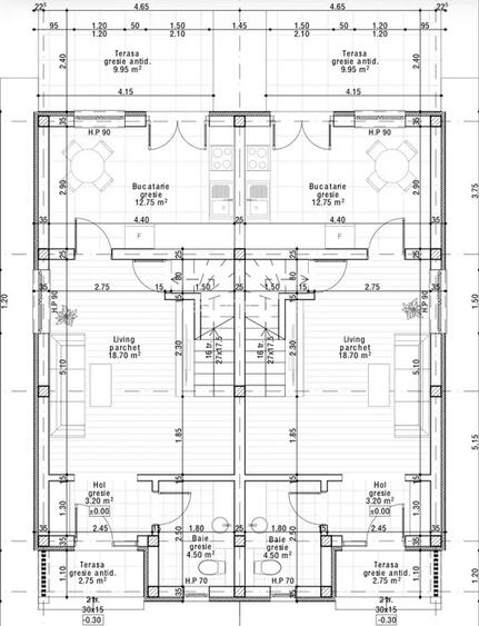
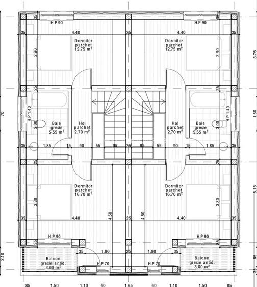
INVEST IMOBILIARE va propune spre vanzare un duplex cu 3 camere situatat in zona VOROVESTI-MIROSLAVA . Imobilul are o suprafata utila de 80 mp si este situat pe un teren aferent de 250 mp . Compartimentarea este urmatoarea : *PARTER: -Baie - 4.5 mp -Living - 19 mp -Bucatarie - 13 mp -Hol - 3 mp -Terasa acoperită intrare - 3 mp -Terasă neacoperită - 10 mp * ETAJ: -Dormitor 1 - 17 mp -Dormitor 3 - 13 mp -Hol - 3 mp -Baie - 6mp Structura constructiei este integral din beton si zidarie de caramida portanta. La pretul afisat se adauga si TVA . Imobilul momentan este in constructie, cu termen de predare luna aprilie 2026 iar momentan exista posibilitatea de alegere a finisajelor . Pentru detalii complete și programarea unei vizionări, contactează-mă telefonic chiar acum! Andrei Hutanu 📞
Citește mai mult Citește mai puțin
Centrală proprie Încălzire prin pardoseală 2 Parcări Bine întreținut (Bună)

Detalii casă

ID anunț: XB8811149 Copiat! 275107410 Copiat!
Actualizat în: 29 Mai 2026
Tip tranzacție: De vânzare prin agent
Suprafață construită: 110 mp
Nr. bucătării: 1
Nr. băi: 2
Nr. balcoane / Terase / Logii: 1
Nr. terase: 1
Suprafață terase: 13 mp
An construcție: 2026 (În construcție)
Structură rezistență: Cărămidă
Regim înălțime: P+1E
Modalitate de plată: Cash sau Credit

Utilități

Pereți
Vopsea lavabilă Var Faianță
Podele
Parchet Gresie
Uși interior
Celulare
Izolații termice
Exterior Interior
Ferestre cu geam termopan
PVC
Contorizare
Apometre Contor căldură Contor gaz
Utilități
Curent Apă Canalizare Gaze

Certificat energetic:

Clasa energetică: B

Istoricul prețurilor

Acces la informații premium după autentificare
Login Gratuit

Detalii despre preț și costuri

Costuri cu achiziția

Fără credit
Credit ipotecar
Noua casă

i

Costuri adiționale mai puțin știute la achiziție: taxe notariale, comisioane etc.

Acces la informații premium după autentificare
Login Gratuit

Proprietăți similare

Duplex cu 3 camere în Bucium
114.000 €
Iași, Bucium
3 camere
85 mp
350 mp teren
Duplex cu 3 camere în Bucium
110.000 €
Iași, Bucium
3 camere
85 mp
350 mp teren
Duplex cu 2 camere în Bucium
110.000 €
Iași, Bucium
2 camere
70 mp
350 mp teren

Detalii de contact

Invest Imobiliare

Andrei Hutanu Agent Imobiliar

Invest Imobiliare
PRO

Abonează-te la newsletter să fii primul care primește cele mai noi recomandări de proprietăți și sfaturi de la experți.

CONTACT

Creează alertă

Salvează căutarea ca să primești pe email ultimele anunțuri publicate

Duplexuri cu 3 camere de vânzare în zona Miroslava, Iași