1

COMISION ZERO - Duplex separat prin baie - toate utilitatile - proiect deosebit

140.900 €

Moșnița Nouă, Județul Timiș

Nr. cam.:
3
Sup. utilă:
75 mp
Sup. teren:
380 mp
Tip prop.:
Duplex
  • • Comision 0%
  • • Locație aproximativă
  • • Vizionare prin apel video

Descriere casă

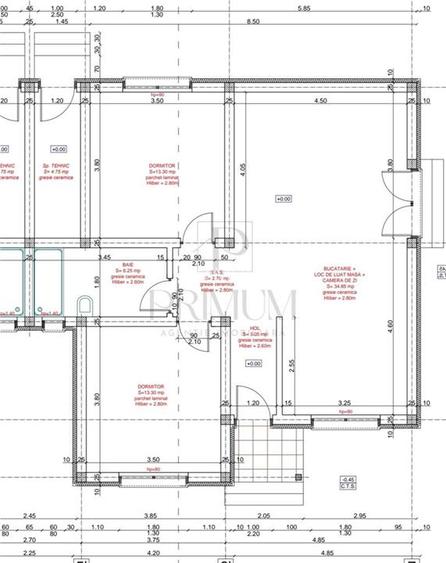
Agentie Imobiliara Primum va ofera spre vanzare 1 2 duplex separat prin baie situat in imediata apropiere a zonei de intrare din Mosnita Noua. Vă prezentăm o locuință tip duplex situată într-o zonă liniștită, ideală pentru familii. Imobilul dispune de o suprafață utilă de 75 mp, amplasat pe un teren generos de 380 mp, cu termen de finalizare în martie 2026. Caracteristici principale: - Compartimentare optimizată, cu cameră tehnică dotată cu toaletă și chiuvetă – perfectă pentru musafiri. - Toate utilitățile racordate. - Încălzire în pardoseală, cu izolație din polistiren de 3 cm. - Tâmplărie Rehau cu profil de 80 mm pentru eficiență termică și fonică sporită. - Izolație fonică între unități, în zona băilor – confort sporit. - Fațadă izolată cu polistiren de 15 cm – eficiență energetică ridicată. Dotări exterioare: - Alei realizate din beton amprentat; - Gard din bolțari în partea frontală între unități și gard de beton în spate – intimitate și rezistență. Locuința oferă combinația perfectă între calitate, funcționalitate și design modern. Contactează-ne pentru mai multe detalii sau pentru a programa o vizionare!
Citește mai mult Citește mai puțin
Centrală proprie Încălzire prin pardoseală 2 Parcări

Detalii casă

ID anunț: XCPS113T4 Copiat! 272172978 Copiat!
Actualizat în: 12 Mai 2026
Tip tranzacție: De vânzare prin agent
Suprafață construită: 90 mp
Suprafață desfășurată: 90 mp
Nr. bucătării: 1
Nr. băi: 1
Nr. terase: 1
Nr. fronturi stradale: 1
Front stradal: 10 m
Învelitoare acoperiș: Țiglă
An construcție: 2025 (La roșu)
Structură rezistență: Cărămidă
Regim înălțime: P+1E
Modalitate de plată: Cash sau Credit

Utilități

Destinație
Rezidențial
Pereți
Faianță Vopsea lavabilă
Podele
Parchet Gresie
Izolații termice
Exterior
Ferestre cu geam termopan
PVC
Utilități
Apă Curent Gaze Canalizare
Internet
Cablu Fibră optică
Amenajare străzi
Asfaltate Pietruite
Comision
0%

Puncte de interes

Mijloace transport
tram-station
Statie Ciarda Rosie Tv4
Stații tramvai aprox. 1641 m
tram-station
Statie I.O.T. Tv4
Stații tramvai aprox. 1937 m
Școală
school
Scoala Generala 20
Școli aprox. 1569 m
kindergarten
Gradinita Program Normal Nr. 6
Gradinițe aprox. 1571 m
school
Scoala Gimnaziala nr. 20
Școli aprox. 1571 m
school
Colegiul Tehnic Electrotimis
Școli aprox. 1976 m
Recreere
restaurant
Valery 3 (en)
Restaurant aprox. 1244 m
park
Parc
Parcuri aprox. 1709 m
park
Parcul Ciarda Rosie
Parcuri aprox. 1718 m
sports-ground
Teren sportiv
Terenuri sport aprox. 1993 m

Istoricul prețurilor

Acces la informații premium după autentificare
Login Gratuit

Detalii despre preț și costuri

Costuri cu achiziția

Fără credit
Credit ipotecar
Noua casă

i

Costuri adiționale mai puțin știute la achiziție: taxe notariale, comisioane etc.

Acces la informații premium după autentificare
Login Gratuit

Proprietăți similare

Duplex cu 3 camere în Moșnița Nouă
134.999 €
Județul Timiș, Moșnița Nouă
3 camere
73 mp
310 mp teren
Duplex cu 4 camere în Moșnița Nouă
145.000 €
Județul Timiș, Moșnița Nouă
4 camere
94 mp
260 mp teren
Duplex cu 3 camere în Moșnița Nouă
127.000 €
Județul Timiș, Moșnița Nouă
3 camere
70 mp
311 mp teren

Detalii de contact

PRIMUM

Cosmin Moisa Consultant Imobiliar

PRIMUM
PRO

Abonează-te la newsletter să fii primul care primește cele mai noi recomandări de proprietăți și sfaturi de la experți.

Feedback apel

CONTACT

Creează alertă

Salvează căutarea ca să primești pe email ultimele anunțuri publicate

Duplexuri cu 3 camere de vânzare în Moșnița Nouă, Județul Timiș