3

Duplex Premium pentru o familie pretentioasa.

176.800 €

Moșnița Nouă, Județul Timiș

Nr. cam.:
3
Sup. utilă:
84 mp
Sup. teren:
322 mp
Tip prop.:
Duplex
  • • Comision 0%
  • • Exclusivitate
  • • Locație aproximativă

Descriere casă

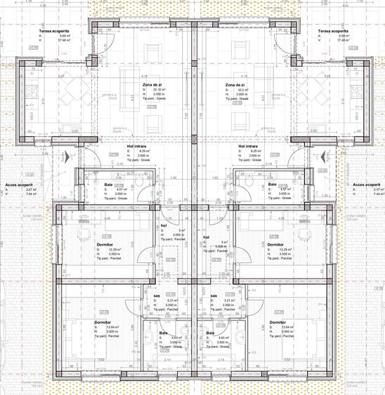
De vanzare duplex Premium,situat intr-o zona foarte accesibila din Mosnita Noua,intre Lidl si M City. Finalizata in cursul anului 2025, este compartimentat astfel: -hol acces -zona de zi,dinning si bucatarie,open space foarte bine luminat natural.Iesire pe terasa exterioara -hol tranzit -baie -primul dormitor -acces pod -al doilea hol care separa dormitorul principal si baia acestuia de restul casei,oferind o zona de intimitate crescuta Duplexul este construit integral din caramida de 25 cm cu izolatie termica exterioara,placaje exterioara din piatra decorativa,glafuri exterioare si interioare din travertin Rocas Dotari si finisaje: -ferestre tripan Rehau,alb la interior si bej la mentionat este ca, suprafetele vitrate sunt generoase si ofera multa lumina naturala -incalzirea este asigurata de centrala termica Viessmann si incalzire prin pardoseala cu termostate de ambient in fiecare incapere -usile de interior Coco Tinoli -bai : ceramica si obiecte sanitare sunt import Italia,importator ItalCeram -in zona de zi si cele doua dormitoare sunt pregatite instalatiile pentru aer conditionat -inaltimea interioara este de 3 m -gradina beneficiaza de sistem de irigatii,alimentat conectat la foraj de mare adancime,plantele ornamentale sunt irigate cu picuratoare In pretul de vanzare beneficiati gratuit de consilierea in amenajare, asigurata de catre designerul de proiect coform acest sent,regasiti in galeria foto,randari cu variante de amenajare propuse. In opinia mea,este o proprietate foarte calitativa,proprietarul punand accent mare pe detalii ,dotari si finisaje de osebite pentru a oferii viitorilor locatari,un confort maxim.
Citește mai mult Citește mai puțin
Nemobilat Grădină Curte Centrală proprie Încălzire prin pardoseală 2 Parcări

Detalii casă

ID anunț: X3TR01006 Copiat! 274683055 Copiat!
Actualizat în: 07 Mai 2026
Suprafață construită: 112.24 mp
Nr. bucătării: 1
Nr. băi: 2
Nr. terase: 1
Suprafață terase: 5.7 mp
Nr. fronturi stradale: 1
Front stradal: 11 m
Învelitoare acoperiș: Țiglă
An construcție: 2025 (Finalizată)
Structură rezistență: Cărămidă
Regim înălțime: P

Utilități

Destinație
Rezidențial
Pereți
Faianță Vopsea lavabilă
Podele
Parchet Gresie
Ușă intrare
Metal
Uși interior
Lemn
Izolații termice
Exterior
Ferestre cu geam termopan
PVC
Contorizare
Contor gaz Apometre
Diverse
Senzor de fum
Alte spații utile
WC Serviciu
Facilități imobil
Acoperiș
Utilități
CATV Gaze Telefon Curent Fosa septică Apă
Internet
Cablu
Amenajare străzi
Asfaltate Pietruite Iluminat stradal Mijloace de transport în comun
Comision
0%

Certificat energetic:

Clasa energetică: A

Vecinătăți:

Lidl,M City

Puncte de interes

Recreere
restaurant
Valery 3 (en)
Restaurant aprox. 382 m
restaurant
La Paul
Restaurant aprox. 1424 m

Detalii despre preț și costuri

Costuri cu achiziția

Fără credit
Credit ipotecar
Noua casă

i

Costuri adiționale mai puțin știute la achiziție: taxe notariale, comisioane etc.

Insight premium disponibil după login

Proprietăți similare

Duplex cu 5 camere în Moșnița Nouă
169.000 €
Județul Timiș, Moșnița Nouă
5 camere
117 mp
380 mp teren
Duplex cu 4 camere în Moșnița Nouă
175.000 €
Județul Timiș, Moșnița Nouă
4 camere
105 mp
255 mp teren
Duplex cu 4 camere în Moșnița Nouă
159.500 €
Județul Timiș, Moșnița Nouă
4 camere
107 mp
379 mp teren

Detalii de contact

The House

Sorin Traian Bratu Consultant Imobiliar

The House
PRO

Abonează-te la newsletter să fii primul care primește cele mai noi recomandări de proprietăți și sfaturi de la experți.

Feedback apel

CONTACT

Creează alertă

Salvează căutarea ca să primești pe email ultimele anunțuri publicate

Duplexuri cu 3 camere de vânzare în Moșnița Nouă, Județul Timiș