18

COMISION 0% Duplex individual de lux in cea mai buna zona din Mosnita Noua

194.000 € + TVA

Moșnița Nouă, Județul Timiș

Nr. cam.:
4
Sup. utilă:
99 mp
Sup. teren:
374 mp
Tip prop.:
Duplex
  • • Comision 0%
  • • Locație aproximativă

Descriere casă

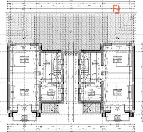
COMISION 0% – Duplex individual de lux, proiect unicat realizat de designer, in cea mai buna zona din Mosnita Noua Foxfort propune spre vanzare cel mai frumos proiect rezidential din Mosnita Noua – un duplex individual conceput de un dezvoltator cu experienta si amenajat in cele mai mici detalii de un designer de interior. Finisajele premium, compartimentarea functionala si localizarea excelenta il transforma intr-o alegere ideala pentru cei care apreciaza eleganta si confortul. Proprietatea este amplasata in zona centrala, aproape de magazine, scoli si gradinite, oferind acces facil la toate punctele de interes. Desi este duplex, casele sunt complet separate prin camera tehnica, oferind intimitatea si confortul unei locuinte individuale. Detalii generale: - Suprafata utila: 99 mp - Suprafata teren: 374 mp - Regim de inaltime: Parter + Etaj + Pod depozitare - An constructie: 2025 - Structura: beton, zidarie din caramida portanta Dotari premium: - Incalzire in pardoseala cu termostat independent pentru fiecare incapere - Sistem de securitate: camere video, senzori de miscare si alarma - Videointerfon - Poarta auto automatizata - Curte complet amenajata cu gazon, sistem de irigatii si plante ornamentale - Sistem de climatizare integrat - Finisaje interioare atent selectionate, semnate de designer Compartimentare: - Parter: hol, living spatios, baie, bucatarie inchisa, dormitor/birou, camera tehnica, terasa acoperita. - Etaj: hol, 2 dormitoare, baie, balcon. - Pod: spatiu de depozitare. Preturi: 194.000 € + TVA 21% - 235.000 € (TVA inclus) – varianta nemobilata 260.000 € (TVA inclus) – varianta complet mobilata si amenajata exact ca in prezentare COMISION 0% pentru cumparator. Se accepta plata din surse proprii sau prin credit bancar. ID intern: V8743
Citește mai mult Citește mai puțin
Nemobilat Grădină Curte Aer condiționat Centrală proprie Încălzire prin pardoseală 2 Parcări 2 Parcări / Garaje / Parcări subterane

Detalii casă

ID anunț: XBE7112QM Copiat! 270225328 Copiat!
Actualizat în: 16 Aprilie 2026
Suprafață construită: 131 mp
Nr. bucătării: 1
Nr. băi: 2
Nr. terase: 1
Front stradal: 11 m
An construcție: 2025 (Finalizată)
Structură rezistență: Beton
Regim înălțime: P+1E

Utilități

Pereți
Vopsea lavabilă Faianță
Podele
Parchet Gresie
Ușă intrare
PVC
Uși interior
Celulare
Izolații termice
Exterior Interior
Ferestre cu geam termopan
PVC
Contorizare
Apometre Contor gaz
Diverse
Sistem de alarmă Telecomandă poartă garaj
Alte spații utile
Spațiu depozitare
Facilități imobil
Videointerfon
Utilități
Curent Apă Canalizare Gaze CATV
Amenajare străzi
Asfaltate Iluminat stradal Mijloace de transport în comun

Certificat energetic:

Clasa energetică: B

Vecinătăți:

Lidl, Penny, Statie autobuz

Disponibilitate proprietate:

imediat

Puncte de interes

Recreere
restaurant
Valery 3 (en)
Restaurant aprox. 692 m
restaurant
La Paul
Restaurant aprox. 1426 m

Detalii despre preț și costuri

Costuri cu achiziția

Fără credit
Credit ipotecar
Noua casă

i

Costuri adiționale mai puțin știute la achiziție: taxe notariale, comisioane etc.

Insight premium disponibil după login

Proprietăți recomandate

Detalii de contact

FOXFORT

Nicu Usurelu Team leader si Broker imobiliar senior

4.89(3 review-uri)

FOXFORT
PRO

Abonează-te la newsletter să fii primul care primește cele mai noi recomandări de proprietăți și sfaturi de la experți.

Feedback apel

CONTACT

Creează alertă

Salvează căutarea ca să primești pe email ultimele anunțuri publicate

Duplexuri cu 4+ camere de vânzare în Moșnița Nouă, Județul Timiș