Duplex 4 camere - zid dublu - bucatarie inchisa

180.000 €

Moșnița Nouă, Județul Timiș

Nr. cam.:
4
Sup. utilă:
105 mp
Sup. teren:
290 mp
Tip prop.:
Duplex
  • • Locație aproximativă
  • • Vizionare prin apel video

Descriere casă

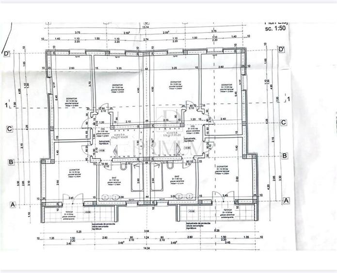
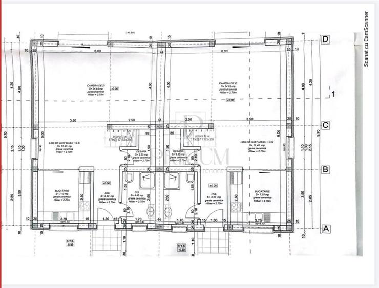
Agentia Imobiliara Primum va ofera spre vanzare 1 2 duplex spatios separat prin zid dublu, perfect pentru familii care cauta liniste si confort. Compartimentare: - Living luminos - Bucatarie inchisa - 3 dormitoare la etaj - 2 bai - Spatiu de depozitare atat in pod cat si sub scari Constructie solida: placa de beton peste etaj, despartit prin zid dublu pentru izolatie fonica si termica Stadiu constructie: la gri, se preda la cheie. Mai multe detalii telefonic.
Citește mai mult Citește mai puțin
Centrală proprie Încălzire prin pardoseală 2 Parcări

Detalii casă

ID anunț: XCPS11410 Copiat! 273461932 Copiat!
Actualizat în: 12 Martie 2026
Suprafață construită: 120 mp
Suprafață desfășurată: 120 mp
Nr. bucătării: 1
Nr. băi: 2
Nr. balcoane / Terase / Logii: 1
Nr. terase: 1
Nr. fronturi stradale: 1
Front stradal: 10 m
Învelitoare acoperiș: Țiglă
An construcție: 2025 (Finalizată)
Structură rezistență: Altele
Etaj: Etaj 1 / 1
Regim înălțime: P+1E

Utilități

Destinație
Rezidențial
Podele
Parchet Gresie
Izolații termice
Exterior
Ferestre cu geam termopan
PVC
Utilități
Apă Curent Gaze Fosa septică
Internet
Cablu Fibră optică
Amenajare străzi
Asfaltate Pietruite

Certificat energetic:

Clasa energetică: A

Puncte de interes

Mijloace transport
tram-station
Statie Ciarda Rosie Tv4
Stații tramvai aprox. 1907 m
Școală
school
Scoala Generala 20
Școli aprox. 1795 m
kindergarten
Gradinita Program Normal Nr. 6
Gradinițe aprox. 1798 m
school
Scoala Gimnaziala nr. 20
Școli aprox. 1798 m
Recreere
restaurant
Valery 3 (en)
Restaurant aprox. 1025 m
park
Parc
Parcuri aprox. 1895 m
park
Parcul Ciarda Rosie
Parcuri aprox. 1902 m

Detalii despre preț și costuri

Costuri cu achiziția

Fără credit
9.086 RON
Credit ipotecar
10.963 RON
Noua casă
1.058 RON+ taxe notariale

i

Costuri adiționale mai puțin știute la achiziție: taxe notariale, comisioane etc.

Proprietăți recomandate

Detalii de contact

PRIMUM

Alina Moisa Consultant Imobiliar

5.00(4 review-uri)

PRIMUM
PRO

Abonează-te la newsletter să fii primul care primește cele mai noi recomandări de proprietăți și sfaturi de la experți.

Feedback apel

CONTACT

Creează alertă

Salvează căutarea ca să primești pe email ultimele anunțuri publicate

Duplexuri cu 4+ camere de vânzare în Moșnița Nouă, Județul Timiș