3

Duplex 4 camere Comision 0 Mosnita Veche

155.000 €

Moșnița Nouă, Județul Timiș

Nr. cam.:
4
Sup. utilă:
95 mp
Sup. teren:
300 mp
Tip prop.:
Duplex
  • • Locație aproximativă

Descriere casă

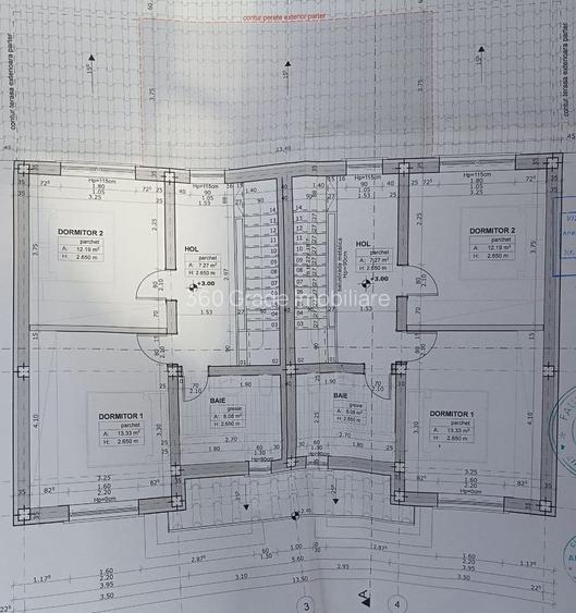
Confort, spațiu generos și construcție de calitate! Suprafață utilă: 95 mp Teren: aproximativ 300 mp Construcție: cărămidă Cemacon 25 cm, țiglă beton Dotări: încălzire în pardoseală, tâmplărie PVC cu 3 sticle Utilități: gaz, apă, curent, canalizare Compartimentare: Parter: Hol acces Baie Dormitor birou Living cu ieșire pe terasă acoperită de 11 mp Bucătărie Scară acces etaj Etaj: Hol acces 2 dormitoare Baie Bugetele pentru gresie, faianta,parchet,tamplarie,usi interior, bai etc se vor stabili impreuna cu dezvoltatorul! Termen de finalizare: sfârșitul lunii decembrie Preț solicitat: 155.000 Euro Comision 0! Pentru mai multe detalii și pentru a stabili o vizionare: Rusanda Dorin
Citește mai mult Citește mai puțin
Curte Centrală proprie Încălzire prin pardoseală 2 Parcări

Detalii casă

ID anunț: XBV50123V Copiat! 275344226 Copiat!
Actualizat în: 30 Martie 2026
Nr. bucătării: 1
Nr. băi: 2
Nr. terase: 1
Suprafață terase: 11 mp
Front stradal: 8.0 m
Învelitoare acoperiș: Țiglă
An construcție: 2025 (Finalizată)

Utilități

Destinație
Rezidențial
Pereți
Faianță Vopsea lavabilă
Podele
Gresie Parchet
Ușă intrare
Metal
Uși interior
Celulare
Ferestre cu geam termopan
PVC
Contorizare
Apometre Contor gaz
Utilități
Curent Apă Canalizare CATV Gaze Telefon
Internet
Cablu
Amenajare străzi
Iluminat stradal Mijloace de transport în comun Asfaltate Pietruite
Comision
standard

Disponibilitate proprietate:

data_properties.property_availability.Imediat

Puncte de interes

Recreere
restaurant
La Paul
Restaurant aprox. 535 m
restaurant
Valery 3 (en)
Restaurant aprox. 1361 m

Detalii despre preț și costuri

Costuri cu achiziția

Fără credit
8.227 RON
Credit ipotecar
9.998 RON
Noua casă
930 RON+ taxe notariale

i

Costuri adiționale mai puțin știute la achiziție: taxe notariale, comisioane etc.

Proprietăți similare

Duplex cu 5 camere în Moșnița Nouă
167.000 €
Județul Timiș, Moșnița Nouă
5 camere
111 mp
323 mp teren
Duplex cu 3 camere în Moșnița Nouă
150.000 €
Județul Timiș, Moșnița Nouă
3 camere
78 mp
315 mp teren
Duplex cu 4 camere în Moșnița Nouă
165.000 €
Județul Timiș, Moșnița Nouă
4 camere
115 mp
250 mp teren

Detalii de contact

360 Grade Imobiliare

Dorin Rusanda Agent

360 Grade Imobiliare
PRO

Abonează-te la newsletter să fii primul care primește cele mai noi recomandări de proprietăți și sfaturi de la experți.

Feedback apel

CONTACT

Creează alertă

Salvează căutarea ca să primești pe email ultimele anunțuri publicate

Duplexuri cu 4+ camere de vânzare în Moșnița Nouă, Județul Timiș