1

Duplex spatios - zid dublu despartitor - zona in plina dezvoltare.

184.999 €

Moșnița Nouă, Județul Timiș

Nr. cam.:
4
Sup. utilă:
105 mp
Sup. teren:
290 mp
Tip prop.:
Duplex
  • • Locație aproximativă
  • • Vizionare prin apel video

Descriere casă

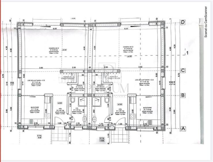
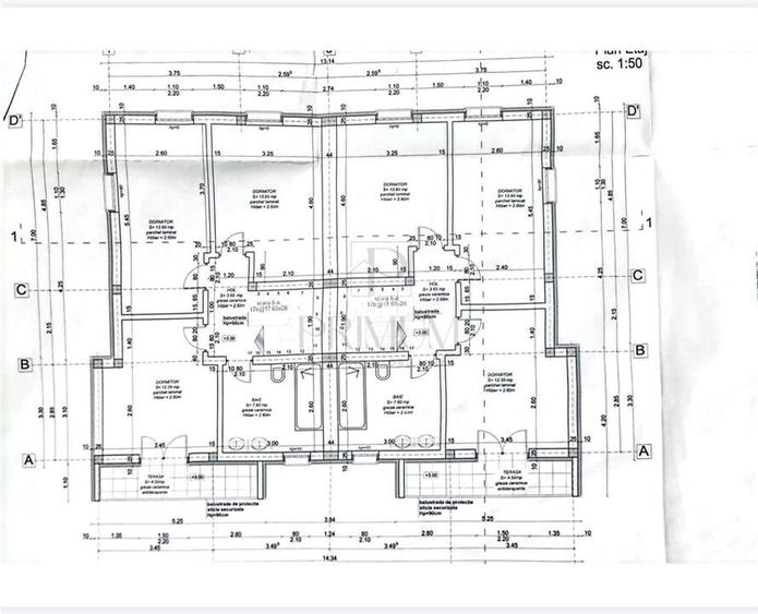
Agentia Imobiliara Primum va ofera spre vanzare 1 2 duplex spatios separat prin zid dublu , perfect pentru familii care cauta liniste si confort. Compartimentare: -Living luminos -Bucătărie închisă -3 dormitoare la etaj - 2 băi -spatiu de depozitare atat in pod cat si sub scari Construcție solidă: placă de beton peste etaj, despartit prin zid dublu pentru izolație fonică și termică Stadiu construcție la gri, se preda la cheie. Detalii la telefon.
Citește mai mult Citește mai puțin
Centrală proprie Încălzire prin pardoseală 2 Parcări

Detalii casă

ID anunț: XCPS114CJ Copiat! 275408147 Copiat!
Actualizat în: 08 Mai 2026
Tip tranzacție: De vânzare prin agent
Suprafață construită: 120 mp
Suprafață desfășurată: 120 mp
Nr. bucătării: 1
Nr. băi: 2
Nr. balcoane / Terase / Logii: 1
Nr. terase: 1
Nr. fronturi stradale: 1
Front stradal: 10 m
Învelitoare acoperiș: Țiglă
An construcție: 2025 (La gri)
Structură rezistență: Cărămidă
Etaj: Etaj 1 / 1
Regim înălțime: P+1E
Modalitate de plată: Cash sau Credit

Utilități

Destinație
Rezidențial
Pereți
Faianță Vopsea lavabilă
Podele
Parchet Gresie
Izolații termice
Exterior
Ferestre cu geam termopan
PVC
Utilități
Apă Curent Gaze Fosa septică
Internet
Cablu Fibră optică
Amenajare străzi
Asfaltate Pietruite

Certificat energetic:

Clasa energetică: A

Puncte de interes

Mijloace transport
tram-station
Statie Ciarda Rosie Tv4
Stații tramvai aprox. 1850 m
Școală
school
Scoala Generala 20
Școli aprox. 1644 m
kindergarten
Gradinita Program Normal Nr. 6
Gradinițe aprox. 1650 m
school
Scoala Gimnaziala nr. 20
Școli aprox. 1650 m
Recreere
restaurant
Valery 3 (en)
Restaurant aprox. 1414 m
park
Parc
Parcuri aprox. 1658 m
park
Parcul Ciarda Rosie
Parcuri aprox. 1661 m

Istoricul prețurilor

Acces la informații premium după autentificare
Login Gratuit

Detalii despre preț și costuri

Costuri cu achiziția

Fără credit
Credit ipotecar
Noua casă

i

Costuri adiționale mai puțin știute la achiziție: taxe notariale, comisioane etc.

Acces la informații premium după autentificare
Login Gratuit

Proprietăți similare

Duplex cu 4 camere în Moșnița Nouă
177.990 €
Județul Timiș, Moșnița Nouă
4 camere
104 mp
250 mp teren
Duplex cu 4 camere în Moșnița Nouă
175.000 €
Județul Timiș, Moșnița Nouă
4 camere
110 mp
255 mp teren
Duplex cu 4 camere în Moșnița Nouă
177.990 €
Județul Timiș, Moșnița Nouă
4 camere
105 mp
300 mp teren

Detalii de contact

PRIMUM

Cosmin Moisa Consultant Imobiliar

PRIMUM
PRO

Abonează-te la newsletter să fii primul care primește cele mai noi recomandări de proprietăți și sfaturi de la experți.

Feedback apel

CONTACT

Creează alertă

Salvează căutarea ca să primești pe email ultimele anunțuri publicate

Duplexuri cu 4+ camere de vânzare în Moșnița Nouă, Județul Timiș