Duplex nou pe parter. Mosnita Noua. 2026

136.000 €

Moșnița Nouă, Județul Timiș

Nr. cam.:
4
Sup. utilă:
78,75 mp
Sup. teren:
500 mp
Tip prop.:
Duplex
  • • Locație aproximativă

Descriere casă

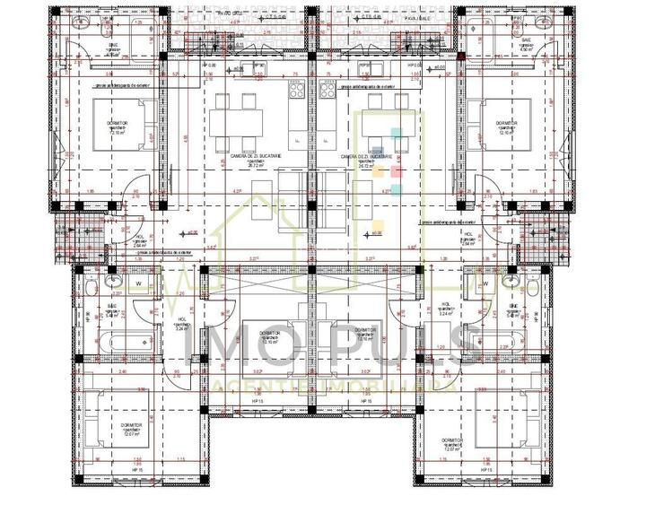
Detalii RELEVANTE oferta : - 1/2 duplex in zona Mosnita Noua,cu regim de inaltime Parter, finalizata in 2026. - suprafata utila de 78.85 mp. - teren de 500 mp, cu front stradal de 11.5 m. - detalii constructive : ziduri exterioare si interioare din caramida porotherm, termoizolata exterior, acoperis de tigla. - compartimentare: hol acces, dormitor matrimonial cu baie proprie, living + bucatarie, hol, 2 dormitoare, baie; - detalii AMENAJARE interioara : parchet laminat, gresie, faianta, ferestre cu tamplarie PVC si geam termopan, usa PVC la intrare, usi interioare noi, vopsea lavabila, corpuri sanitare noi - CENTRALA termica PROPRIE si incalzire in pardoseala; Detalii suplimentare : teren imprejmuit, poarta acces auto si poarta acces pietonal, acoperis din tigla. - dispune de toate utilitatile (apa, gaz, canal, curent). Dispune de acces auto asfaltat, drumul fiind pietruit pe o portiune restransa. Detalii pret : Pretul solicitat de proprietar este de 136.000 Eur. Se accepta si varianta de achizitionare prin intermediul unui credit bancar.
Citește mai mult Citește mai puțin
Grădină Curte Centrală proprie Încălzire prin pardoseală 2 Parcări

Detalii casă

ID anunț: X9B91114E Copiat! 275484493 Copiat!
Actualizat în: 27 Aprilie 2026
Suprafață construită: 103 mp
Suprafață desfășurată: 94.62 mp
Nr. bucătării: 1
Nr. băi: 2
Nr. terase: 1
Front stradal: 11.5 m
Învelitoare acoperiș: Țiglă
An construcție: 2026 (În construcție)
Structură rezistență: Cărămidă

Utilități

Pereți
Faianță Vopsea lavabilă
Podele
Gresie Parchet
Ușă intrare
PVC
Uși interior
Celulare
Izolații termice
Exterior
Ferestre cu geam termopan
PVC
Contorizare
Apometre Contor gaz
Facilități imobil
Acoperiș
Utilități
Curent Apă Canalizare CATV Gaze Telefon
Internet
Cablu
Amenajare străzi
Iluminat stradal Mijloace de transport în comun Asfaltate
Comision
standard

Vecinătăți:

Shopping:
- Profi, Lidl
Educatie:
- Scoala Gimnaziala Mosnita Noua
- Gradinita Lumea Piticilor Mosnita Noua
Spatii Recreere:
- Parcul Industrial si Parcul de Copii Mosnita Noua
Autobuze : M22

Disponibilitate proprietate:

Iunie 2026

Puncte de interes

Recreere
restaurant
La Paul
Restaurant aprox. 638 m
restaurant
Valery 3 (en)
Restaurant aprox. 1953 m

Detalii despre preț și costuri

Costuri cu achiziția

Fără credit
Credit ipotecar
Noua casă

i

Costuri adiționale mai puțin știute la achiziție: taxe notariale, comisioane etc.

Insight premium disponibil după login

Proprietăți similare

Duplex cu 3 camere în Moșnița Nouă
129.900 €
Județul Timiș, Moșnița Nouă
3 camere
75 mp
309 mp teren
Duplex cu 3 camere în Moșnița Nouă
127.000 €
Județul Timiș, Moșnița Nouă
3 camere
70 mp
311 mp teren
Duplex cu 4 camere în Moșnița Nouă
145.000 €
Județul Timiș, Moșnița Nouă
4 camere
94 mp
260 mp teren

Detalii de contact

ImoPuls

Alexandru Mechetenici Consultant Imobiliar

4.67(3 review-uri)

ImoPuls

Abonează-te la newsletter să fii primul care primește cele mai noi recomandări de proprietăți și sfaturi de la experți.

Feedback apel

CONTACT

Creează alertă

Salvează căutarea ca să primești pe email ultimele anunțuri publicate

Duplexuri cu 4+ camere de vânzare în Moșnița Nouă, Județul Timiș