2

Duplex cu 5 camere, Mosnita Noua - Pozitie excelenta - zona MCity!

184.990 €

Moșnița Nouă, Județul Timiș

Nr. cam.:
5
Sup. utilă:
120 mp
Sup. teren:
299 mp
Tip prop.:
Duplex
  • • Locație aproximativă

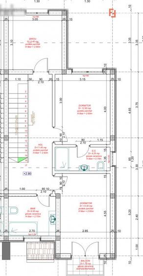
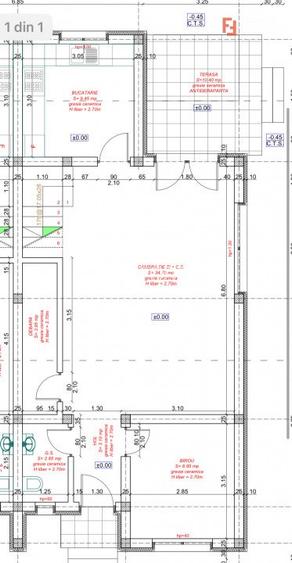
Descriere casă

Duplex cu 5 camere de vanzare in localitatea Mosnita Noua, zona MCity. FOXFORT propune spre vanzare casa tip duplex, cu un regim de inaltime Parter + 1 Etaj, situata in Mosnita Noua, avand un numar de 5 camere, cu o suprafata utila de 120 mp si teren 299 mp. Anul constructiei este 2023, structura beton, material zidarie caramida. Imobilul dispune de urmatoarele utilitati: curent electric, apa, gaz, fosa septica ecologica. Casa dispune de centrala proprie cu incalzire prin pardoseala si 4 locuri de parcare. Curte se va preda cu gazon si sistem de irigare. Acesta este situat la doar 4 minute de Mcity si de statie de transport in comun. Compartimentarea este dispusa dupa cum urmeaza: - Parter: hol, living, baie, dormitor, bucatarie inchisa, terasa acoperita; - Etaj: hol, 3 dormitoare, 2 bai, balcon. - Pod de depozitare. Finisajele interioare sunt moderne: - Usa intrare: pvc; - Usi interioare: celulare; - Tamplarie ferestre: pvc; - Podele: parchet, gresie. Pretul este de 184.990€ - COMISION 0%. Se accepta ca si modalitate de plata surse proprii sau credit bancar. Indicator performanta energetica: Clasa B ID intern: V6548
Citește mai mult Citește mai puțin
Nemobilat Curte Centrală proprie Încălzire prin pardoseală 4 Parcări

Detalii casă

ID anunț: XBE711213 Copiat! 224845564 Copiat!
Actualizat în: 02 Februarie 2026
Suprafață construită: 144 mp
Nr. bucătării: 1
Nr. băi: 3
Nr. balcoane / Terase / Logii: 1
Nr. terase: 1
Front stradal: 12 m
An construcție: 2023 (Finalizată)
Structură rezistență: Beton
Regim înălțime: P+1E

Utilități

Pereți
Vopsea lavabilă Faianță
Podele
Parchet Gresie
Ușă intrare
PVC
Uși interior
Celulare
Izolații termice
Exterior
Ferestre cu geam termopan
PVC
Contorizare
Apometre Contor gaz
Alte spații utile
Spațiu depozitare
Utilități
Curent Apă Gaze Fosa septică
Amenajare străzi
Pietruite Iluminat stradal Mijloace de transport în comun
Comision
standard

Certificat energetic:

Clasa energetică: B

Disponibilitate proprietate:

data_properties.property_availability.imediat

Puncte de interes

Recreere
restaurant
Valery 3 (en)
Restaurant aprox. 692 m
restaurant
La Paul
Restaurant aprox. 1426 m

Detalii despre preț și costuri

Costuri cu achiziția

Fără credit
9.257 RON
Credit ipotecar
11.155 RON
Noua casă
1.083 RON+ taxe notariale

i

Costuri adiționale mai puțin știute la achiziție: taxe notariale, comisioane etc.

Proprietăți recomandate

Detalii de contact

FOXFORT

FOXFORT Promovare Broker Imobiliar

FOXFORT
PRO

Abonează-te la newsletter să fii primul care primește cele mai noi recomandări de proprietăți și sfaturi de la experți.

Feedback apel

CONTACT

Creează alertă

Salvează căutarea ca să primești pe email ultimele anunțuri publicate

Duplexuri cu 4+ camere de vânzare în Moșnița Nouă, Județul Timiș