Casă duplex SMART de vânzare – complet mobilată - Cartier Europa

250.000 €

Moșnița Nouă, Județul Timiș

Nr. cam.:
5
Sup. utilă:
120 mp
Sup. teren:
275 mp
Tip prop.:
Duplex
  • • Comision 0%
  • • Locație aproximativă

Descriere casă

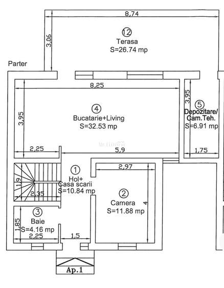
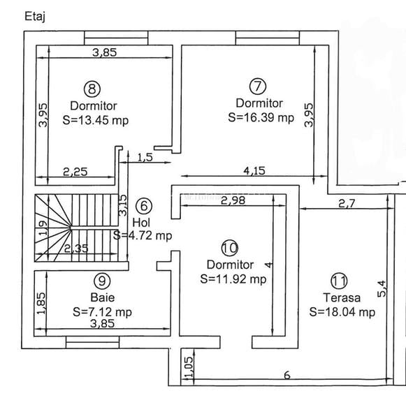
Descoperă o locuință modernă, pregătită pentru mutare imediată, situată într-o zonă liniștită și bine dezvoltată din cartierul Europa, Moșnița Nouă. Proprietate vândută direct de la proprietar, ideală pentru o familie care caută confort, eficiență și acces rapid către Timișoara. Casa este de tip duplex, foarte bine compartimentată, luminoasă și separată de unitatea vecină prin garaj și cameră tehnică la parter, respectiv dressing și terasă la etaj, oferind intimitate și liniște. Compartimentare: • 4 dormitoare • Living spațios • 2 băi • Garaj • Cameră tehnică • 2 terase, perfecte pentru relaxare Suprafețe: • Suprafață utilă: 120 mp • Suprafață teren: 275 mp Utilități: • Apă, canalizare, fosă • Curent electric, gaz • Internet prin fibră optică • Foraj pentru apă • Izolație cu vată bazaltică • Asfaltare prevăzută în proiect pentru anul 2026 Dotări premium: • Panouri solare 3 kW • Încălzire în pardoseală automatizată, cu termostate în fiecare încăpere • Climatizare • Ventilație cu recuperare de căldură • Sistem de iluminat smart, cu întrerupătoare tactile și comandă vocală • Rulouri și perdele electrice • Trepte iluminate • Sistem de securitate cu supraveghere video și alarmă • Sistem de irigație Casa se vinde complet mobilată, exact ca în poze, fiind o soluție ideală pentru cei care doresc o locuință modernă, eficientă energetic și fără investiții suplimentare.
Citește mai mult Citește mai puțin
Aer condiționat 2 Parcări

Detalii casă

ID anunț: XG2T1100I Copiat! 274756273 Copiat!
Actualizat în: 03 Februarie 2026
Nr. băi: 2
Nr. terase: 2

Utilități

Izolații termice
Exterior Interior
Electrocasnice
Frigider Hotă Mașină de spălat Mașină spălat vase TV
Diverse
Scară interioară Sistem de alarmă
Alte spații utile
Dressing
Utilități
Curent Apă Canalizare CATV Gaze Telefon
Internet
Cablu
Amenajare străzi
Iluminat stradal Mijloace de transport în comun Pietruite
Comision
0%

Disponibilitate proprietate:

Imediat

Puncte de interes

Recreere
restaurant
Valery 3 (en)
Restaurant aprox. 832 m

Detalii despre preț și costuri

Costuri cu achiziția

Fără credit
11.484 RON
Credit ipotecar
13.658 RON
Noua casă
1.414 RON+ taxe notariale

i

Costuri adiționale mai puțin știute la achiziție: taxe notariale, comisioane etc.

Proprietăți recomandate

Detalii de contact

MR. FLO REAL ESTATE

Florin Cornea Manager

MR. FLO REAL ESTATE

Abonează-te la newsletter să fii primul care primește cele mai noi recomandări de proprietăți și sfaturi de la experți.

CONTACT

Creează alertă

Salvează căutarea ca să primești pe email ultimele anunțuri publicate

Duplexuri cu 4+ camere de vânzare în Moșnița Nouă, Județul Timiș