3

Proprietar - Casa Duplex Primaverii ODAI

255.000 €

Odăile, Județul Ilfov

Nr. cam.:
5
Sup. utilă:
135 mp
Sup. teren:
294 mp
Tip prop.:
Duplex
  • • Comision 0%
  • • Locație exactă

Descriere casă

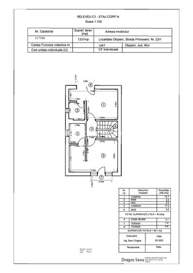
Proprietar - casa amplasata intr-un complex cochet de 6 case, cuplate doua cate doua , P+1E+M, Suprafata teren 294mp, SCD - 179 mp din care pod 23 mp, Parter : Living, Bucatarie inchisa, debara, grup sanitar; Etaj 1 : Dormitor matrimonial cu dressing si baie, 1 dormitor cu baie ; Mansarda: 2 dormitoare cu baie pe hol, loc parcare pentru 2 autoturisme, terasa acoperita, se preda cu bucatarie mobilata si complet utilata, dormitor matrimonial mobilat, dressing si dormitor copil mobilat, incalzire in pardoseala cu distribuitor pe fiecare etaj si termostat in fiecare camera; tamplarie pvc cu geam tripan, aer conditionat in camere. Casa se preda proaspat igienizata - culoare alb. Bransamente individuale la energie, gaz, apa . In prezent este bransata la o fosa cara deserveste intregul complex ( se vidanjeaza la aproximativ 4 luni), pe strada urmeaza sa inceapa lucrarile la reteaua de canalizare; accesul la casa se face pe un drum privat de servitute (aproximativ 50 ml) cu poarta auto si pietonala actionata prin telefon/telecomanda. Zona retrasa, fara trafic auto si cu multa verdeata. Vanzator persoana fizica - NU se aplica TVA.
Citește mai mult Citește mai puțin

Detalii casă

ID anunț: XVBU010KR Copiat! 271104125 Copiat!
Actualizat în: 20 Noiembrie 2025
Nr. băi: 4
An construcție: 2023 (Finalizată)
Regim înălțime: P+1E+M

Utilități

Comision
0%

Puncte de interes

Mijloace transport
bus-station
Statia Sat Odai, linia 304
Stații autobuz aprox. 720 m
bus-station
Statia I.C.S.I.M, linia 304
Stații autobuz aprox. 1024 m
bus-station
Statia Amco, linia 783
Stații autobuz aprox. 1083 m
bus-station
Statia Pasaj Otopeni, linia 149,304
Stații autobuz aprox. 1092 m
Școală
kindergarten
Gradinita cu program prelungit nr. 2 Otopeni
Gradinițe aprox. 395 m
university
Academia Națională de Informații "Mihai Viteazul"
Universități aprox. 1307 m
school
Liceul Teoretic Ioan Petrus - Corp 1
Școli aprox. 1864 m
school
Liceul Teoretic Ioan Petrus - Corp 2
Școli aprox. 1903 m
Recreere
restaurant
Complexul Ambasad'Or
Restaurant aprox. 376 m
sports-ground
Teren sportiv
Terenuri sport aprox. 389 m
park
Loc de joaca
Parcuri aprox. 1467 m
sports-ground
Teren sportiv
Terenuri sport aprox. 1478 m

Detalii despre preț și costuri

Costuri cu achiziția

Fără credit
11.657 RON
Credit ipotecar
13.852 RON
Noua casă
1.439 RON+ taxe notariale

i

Costuri adiționale mai puțin știute la achiziție: taxe notariale, comisioane etc.

Proprietăți recomandate

Detalii de contact

New Life Estate SRL

Gherghina Liviu

Abonează-te la newsletter să fii primul care primește cele mai noi recomandări de proprietăți și sfaturi de la experți.

CONTACT

Creează alertă

Salvează căutarea ca să primești pe email ultimele anunțuri publicate

Duplexuri cu 4+ camere de vânzare în Odăile, Județul Ilfov