Casa stil duplex - zona Corbeanca

210.000 €

Ostratu, Județul Ilfov

Nr. cam.:
4
Sup. utilă:
121,4 mp
Sup. teren:
261 mp
Tip prop.:
Duplex
  • • Locație aproximativă

Descriere casă

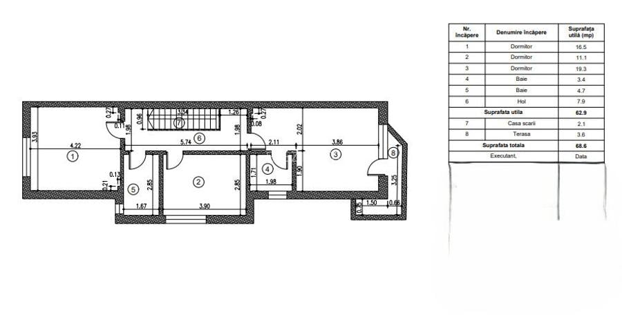
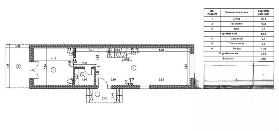
Cod proprietate: P481 Agentia imobiliara ERezidential va propune spre vanzare o vila, tip duplex, situata in localitatea Ostratu -Corbeanca Regim de inaltime: P+1 casa este construita in anul 2024 si este alcatuita din 3 dormitoare , 1- living , 1 -bucatarie , 3 - bai ,. In curte este amenajata un loc de relaxare -terasa Are o suprafata utila de 120.80 mp + terasa 11 mp+ balcon 3.60 mp+ holuri si alte spatii- 8.60 mp - Suprafata totala 144 mp . Amprenta la sol este de 77.50 mp suprafata totala a terenului este de 261 mp, din care 183.50 mp teren liber. Are 1 front stradal de 7.30 m . Casa este are centrala proprie,incalzire in pardoseala Accesul pe strada este privat, cu bariere iar parcare in fata curtii sau in curte , In imediata apropiere intalnim: spatii comerciale, financiare, educationale, medicale, de relaxare etc. Informatiile tehnice prezentate in anunt au caracter orietativ, ele fiind expuse in conformitate cu datele declarate de proprietari. Agentia imobiliara ERezidential va sta la dispozitie pentru informatii suplimentare si vizionari!
Citește mai mult Citește mai puțin
Nemobilat Aer condiționat Centrală proprie Încălzire prin pardoseală 1 Parcare 1 Parcare / Garaj / Parcare subterană

Detalii casă

ID anunț: XFKB1100T Copiat! 257116783 Copiat!
Actualizat în: 24 Februarie 2026
Suprafață construită: 162 mp
Nr. bucătării: 1
Nr. băi: 3
Nr. balcoane / Terase / Logii: 1
Nr. terase: 1
Front stradal: 7.4 m
An construcție: 2024 (Finalizată)
Structură rezistență: Beton
Regim înălțime: P+1E

Utilități

Pereți
Vopsea lavabilă Faianță
Podele
Parchet Gresie
Ușă intrare
Metal
Uși interior
Lemn
Contorizare
Apometre Contor gaz
Alte spații utile
WC Serviciu
Utilități
Curent Apă Canalizare Gaze
Amenajare străzi
Asfaltate Iluminat stradal
Comision
standard

Vecinătăți:

Paradisul Verde,Therme Bucuresti, Aeroportul Otopeni Lidl,

Disponibilitate proprietate:

imediat

Detalii despre preț și costuri

Costuri cu achiziția

Fără credit
10.111 RON
Credit ipotecar
12.115 RON
Noua casă
1.210 RON+ taxe notariale

i

Costuri adiționale mai puțin știute la achiziție: taxe notariale, comisioane etc.

Proprietăți recomandate

Detalii de contact

EREZIDENTIAL

Alexandru Dan Manager

4.92(4 review-uri)

EREZIDENTIAL
PRO

Abonează-te la newsletter să fii primul care primește cele mai noi recomandări de proprietăți și sfaturi de la experți.

CONTACT

Creează alertă

Salvează căutarea ca să primești pe email ultimele anunțuri publicate

Duplexuri cu 4+ camere de vânzare în Ostratu, Județul Ilfov